Contact met de makelaar

Deze woning is gevonden buiten ons eigen netwerk. Met de knop hieronder kom je direct bij de aanbieder terecht.

Beekstraat 60 c

Bekijk kaart
6231 LH Meerssen (Meerssen)
€ 175.000 k.k.
  • 40 m²
  • 2 kamers
  • 1813

Samenvatting

  • Deze woning wordt sinds 7 weken aangeboden door KH-Solutions Makelaars;
  • De galerijflat heeft een woonoppervlakte van 40 m² en beschikt over 2 kamers, waarvan 1 slaapkamer;
  • De woning is gebouwd In 1813 en ligt in de buurt Meerssen in Meerssen.

Beschrijving

IN DE VERKOOP BIJ KH-SOLUTIONS MAKELAARS.
Dit centraal gelegen 1 slaapkamer appartement bevindt zich in het historische centrum Meerssen, pal boven de CIGO. Het biedt een gezellig ingedeelde woonkamer met basic opgestelde open keuken, 1 ruime slaapkamer, een functionele badkamer met een ruimte berging inclusief witgoedopstelling en boiler.

INDELING

Begane grond
Gemeenschappelijke entree en toegang tot 3 appartementen, op elke verdieping één appartement. 60C ligt op de derde verdieping (bovenste). In de algemene ruimtes bevinden zich de meterkast en technische opstelling.

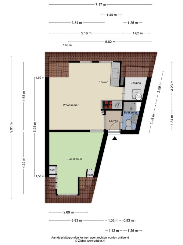
Het één slaapkamer appartement (ca. 40m2) beschikt over een ruime woonkamer met open keuken, een ruime slaapkamer, een badkamer en tussenportaal en een ruime berging. De open keuken is voorzien van de volgende elementen; een afzuiginstallatie, een koelkast, een inductie kookplaat, een spoelbak en opbergkasten. De functionele badkamer beschikt over een douche, een wastafel, een toilet en een radiator. Mogelijkheid: opbergzolder creëren.

Aanvullende informatie
• Geen buitenruimte
• Gelijkvloers
• Centrale locatie in Meerssen
• Boiler eigendom
• Dit appartement beschikt over een energielabel G, geldig tot 22-11-2035
• Perfect voor starters, pied-à-terre

Bezichtiging inplannen?
Uitsluitend op afspraak via makelaarskantoor KH-Solutions Makelaars.

Ter bescherming van de belangen van zowel koper als verkoper, wordt uitdrukkelijk gesteld dat een koopovereenkomst met betrekking tot deze onroerende zaak eerst dan tot stand komt nadat koper en verkoper de koopovereenkomst hebben getekend. De termijn die wordt opgenomen voor eventuele (overeengekomen) ontbindende voorwaarden (bv. financiering) is in de regel 4 tot 6 weken na het sluiten van de mondelinge overeenkomst.

De waarborgsom/bankgarantie is 10% van de koopsom. De koper dient deze 1 week ná het vervallen van de ontbindende voorwaarden bij de notaris te deponeren.
Koper is te allen tijde gerechtigd voor eigen rekening een bouwkundige keuring te (laten) verrichten dan wel andere adviseurs te raadplegen teneinde een goed inzicht te verkrijgen over de staat van onderhoud. Deze informatie is door KH-Solutions Makelaars met de nodige zorgvuldigheid samengesteld. Onzerzijds wordt echter geen enkele aansprakelijkheid aanvaard voor enige onvolledigheid, onjuistheid of anderszins, dan wel de gevolgen daarvan. Alle opgegeven maten en oppervlakten zijn indicatief. Koper is uitgenodigd de opgegeven oppervlakte(s) van het gekochte op juistheid te controleren.

Overdracht

Vraagprijs
€ 175.000 k.k.
Aangeboden sinds
09-12-2025
Status
Beschikbaar
Beschikbaar
In overleg
Onderhoudsstaat
Goed

Oppervlakte en inhoud

Woonoppervlakte
40 m²
Inhoud
133 m³

Bouw

Type woning
Appartement
Soort woning
Galerijflat
Soort bouw
Bestaande bouw
Bouwjaar
1813

Indeling

Aantal kamers
2
Aantal slaapkamers
1
Aantal badkamers
1
Aantal woonlagen
1
Voorzieningen
  • Douche
  • Toilet

Buitenruimte

Balkon
Niet aanwezig
Tuin
Niet aanwezig
Dakterras
Niet aanwezig

Energie

Energielabel
G

Parkeergelegenheid

Aanwezig
Ja
Soort parkeergelegenheid
Openbaar

Garage

Aanwezig
Nee
Meld een probleem met deze woning