Contact met de makelaar

Deze woning is gevonden buiten ons eigen netwerk. Met de knop hieronder kom je direct bij de aanbieder terecht.

Maaskade

Bekijk kaart
3071 NA Rotterdam (Noordereiland)
€ 295.000 k.k.
  • 59 m²
  • 3 kamers
  • 1953

Samenvatting

  • Deze woning wordt sinds 3 maanden aangeboden door Woonvisie NVM Makelaars;
  • De galerijflat heeft een woonoppervlakte van 59 m² en beschikt over 3 kamers, waarvan 1 slaapkamer;
  • De woning is gebouwd In 1953 en ligt in de buurt Noordereiland in Rotterdam.

Beschrijving

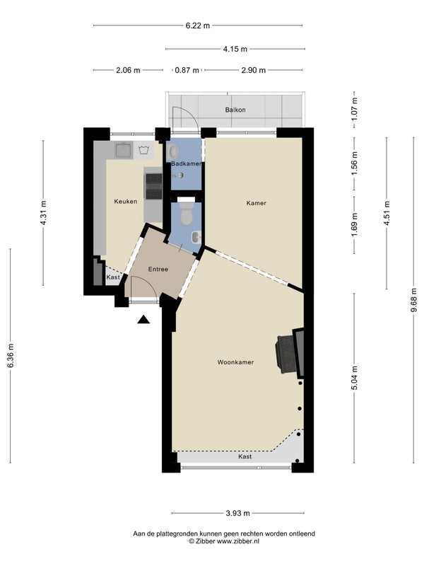
Dit mooie 3-kamer appartement aan de Maaskade biedt een prachtig uitzicht op de skyline van Rotterdam en de passerende schepen op de Nieuwe Maas. Met een woonoppervlakte van 47m² (plus 12m² zolder) heeft het een praktische indeling en is gelegen op de 3e verdieping van een net appartementencomplex. De vierde verdieping herbergt een studio, ideaal als extra slaap- of werkkamer. De centrale hal leidt naar de ruime woonkamer met prachtig uitzicht, een open keuken met inbouwapparatuur, en een (slaap)kamer met toegang tot de badkamer. Het appartement beschikt ook over een balkon voor buitenruimte. Met een actieve VVE en een centrale ligging nabij het centrum van Rotterdam is dit appartement een unieke kans.

Overdracht

Vraagprijs
€ 295.000 k.k.
Aangeboden sinds
30-10-2025
Status
Beschikbaar
Beschikbaar
Per direct

Oppervlakte en inhoud

Woonoppervlakte
59 m²

Bouw

Type woning
Appartement
Soort woning
Galerijflat
Soort bouw
Bestaande bouw
Bouwjaar
1953

Indeling

Aantal kamers
3
Aantal slaapkamers
1
Aantal badkamers
2

Buitenruimte

Dakterras
Niet aanwezig

Energie

Energielabel
F
Meld een probleem met deze woning