- 71 m²
- 3 kamers
- 1993
Samenvatting
- Deze woning wordt sinds 23 januari 2026 aangeboden door Kok Makelaars;
- De galerijflat heeft een woonoppervlakte van 71 m² en beschikt over 3 kamers, waarvan 2 slaapkamers;
- De woning is gebouwd In 1993 en ligt in de buurt Feijenoord in Rotterdam;
- De woning beschikt onder andere over de volgende voorzieningen: Lift, Douche, Toilet.
Beschrijving
Rustig wonen en toch binnen een paar minuten in hartje Rotterdam?
Het kan met dit leuke 3-kamer APPARTEMENT met heerlijk balkon aan de Oranjeboomstraat! Praktisch naast de Nieuwe Maas met de iconische ‘Hef’ en iets verderop de Erasmusbrug, met vrijwel alle voorzieningen in de buurt.
Een licht en zonnig appartement, waar het na een lange (werk)dag heerlijk thuiskomen is. Wie gaat er van dit plekje genieten?
Zie onderstaande hoofdkenmerken met nadere omschrijving en de uitgebreide fotoreportage. Zelf sfeer proeven in de woning? Bel met Kok Makelaars voor een bezichtiging!
Hoofdkenmerken:
- Ruime woonkamer met uitzicht
- Open keuken met basisinrichting
- Badkamer met douche
- 2 goed formaat slaapkamers
- Zonnig balkon op het zuidwesten
- Privé-berging in de onderbouw
- Woonoppervlakte ca. 71 m²
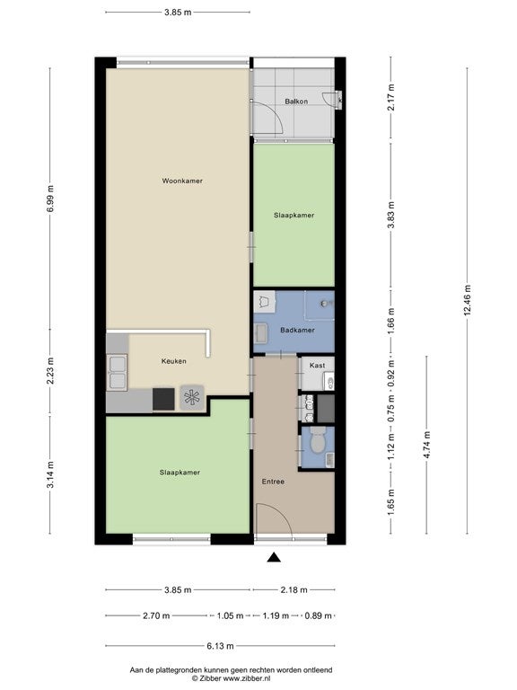
INDELING (voor de afmetingen, zie de plattegrondtekeningen)
Gelegen in de levendige wijk Feijenoord, waar het centrum van Rotterdam en toch het wonen in een gezellige buurt samenkomen! Op korte (loop)afstand zijn er veel voorzieningen: winkels, supermarkten, horecagelegenheden, openbaar vervoer, scholen, kinderdagopvang, gezondheidszorg, sportfaciliteiten, en nog veel meer.
Begane grond:
Gesloten entree met brievenbussen en bellentableau, met toegang tot het trappenhuis, liftinstallatie en bergingen.
Tweede verdieping:
Het appartement is grotendeels voorzien van laminaat vloerafwerking.
Entree/hal, met toegang tot de keuken/woonkamer, toilet, badkamer, slaapkamer 1, vaste kast met opstelling cv-ketel en de meterkast.
Woonkamer, een ruime woonkamer, met een leuk uitzicht over de Oranjeboomstraat. Vanuit de woonkamer is er toegang tot slaapkamer 2 en het balkon.
Keuken, een eenvoudige keuken met een keukenblok in L-vormige opstelling. De keuken is voorzien van een dubbele spoelbak, kookplaat, oven en koel-vriescombinatie.
Slaapkamer 1, een ruime slaapkamer, gelegen aan de achterzijde.
Slaapkamer 2, eveneens een slaapkamer van goed formaat, grenzend aan het balkon.
Badkamer, welke grotendeels is betegeld en voorzien van een douchecabine, wastafel met onderkastje en spiegel, badkamerradiator en een wasmachineaansluiting.
Toilet, gedeeltelijk betegeld, voorzien van een staand closet en een fonteintje.
Balkon, een heerlijk zonnig balkon op het zuidwesten, met ook hier een altijd levend uitzicht over de Oranjeboomstraat, met in de verte de Erasmusbrug!
Bijzonderheden:
- Cv-ketel Vaillant (2012)
- Houten kozijnen met dubbele beglazing
- Energielabel B
- Actieve VvE, bijdrage € 262,40 per maand
- Privé berging (ca. 5 m²) in de onderbouw
- Erfpachtgrond, eindigend op 3 februari 2092
- Canonverplichting afgekocht tot en met 6 november 2053
- Bouwjaar ca. 1993
Oplevering: in nader overleg met de verkoper, op korte termijn mogelijk.
Bij het samenstellen van deze verkoopinformatie en (plattegrond)tekeningen zijn we nauwkeurig te werk gegaan, aan onjuistheden en/of onvolkomenheden kunt u echter geen rechten ontlenen. Daarnaast aanvaardt de makelaar of zijn opdrachtgever geen aansprakelijkheid voor de in de verkoopinformatie en (plattegrond)tekeningen verstrekte informatie.
Overdracht
- Vraagprijs
- € 300.000 k.k.
- Aangeboden sinds
- 23-01-2026
- Status
- Beschikbaar
- Beschikbaar
- In overleg
- Bijzonderheden
- Seniorenwoning
- Onderhoudsstaat
- Goed
Oppervlakte en inhoud
- Woonoppervlakte
- 71 m²
- Inhoud
- 235 m³
VvE informatie
- Inschrijving KvK
- Ja
- Jaarlijkse vergadering
- Ja
- Periodieke bijdrage
- Ja (€ 262 per maand)
- Reservefonds aanwezig
- Ja
- Opstalverzekering
- Ja
Bouw
- Type woning
- Appartement
- Soort woning
- Galerijflat, Appartement
- Soort bouw
- Bestaande bouw
- Bouwjaar
- 1993
- Ligging
-
- Nabij het openbaar vervoer
- Nabij een school
- Nabij een winkelcentrum
Indeling
- Aantal kamers
- 3
- Aantal slaapkamers
- 2
- Aantal badkamers
- 1
- Aantal woonlagen
- 1
- Verdieping
- 3
- Voorzieningen
-
- Lift
- Douche
- Toilet
Buitenruimte
- Balkon
- Aanwezig
- Dakterras
- Niet aanwezig
Energie
- Isolatie
- Dubbele beglazing
- Verwarming
- CV-ketel
- Warm water
- CV-ketel
- Cv-ketel
- Vaillant (Gas, uit 2012, Eigendom)
- Energielabel
- B
Bergruimte
- Schuur/Berging
- Aanwezig
Parkeergelegenheid
- Aanwezig
- Ja
- Soort parkeergelegenheid
- Vergunning