Contact met de makelaar

Deze woning is gevonden buiten ons eigen netwerk. Met de knop hieronder kom je direct bij de aanbieder terecht.

Nieuw

Bovenstraat

Bekijk kaart
3077 BC Rotterdam (Oud IJsselmonde)
€ 479.500 k.k.
  • 126 m²
  • 4 kamers
  • 1913

Samenvatting

  • Deze woning wordt sinds 22 januari 2026 aangeboden door Woonvisie NVM Makelaars;
  • De tussenwoning heeft een woonoppervlakte van 126 m² en beschikt over 4 kamers, waarvan 3 slaapkamers;
  • De woning is gebouwd In 1913 en ligt in de buurt Oud IJsselmonde in Rotterdam.

Beschrijving

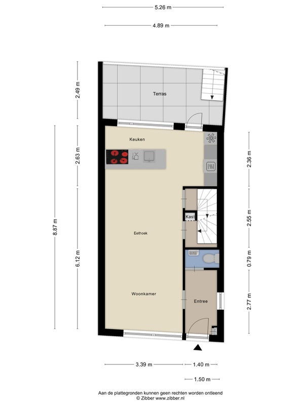
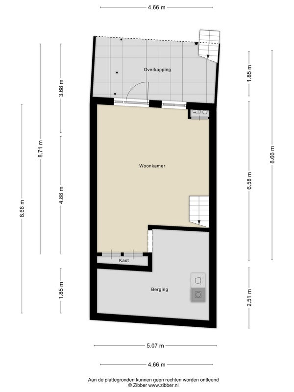
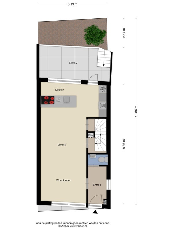
Deze dijkwoning in Rotterdam-IJsselmonde is een unieke instapklare woning die eind 2023/begin 2024 volledig gerenoveerd is. De woning heeft een woonoppervlakte van 126 m² en beschikt over een luxe keuken met inbouwapparatuur en een ruime badkamer met inloopdouche. Op dijkniveau ligt de royale woonkamer en boven zijn er twee slaapkamers. Het souterrain is multifunctioneel en biedt toegang tot een zonnige achtertuin. De woning is geïsoleerd, heeft vloerverwarming en vernieuwde elektra. Gelegen aan een rustige weg, dicht bij voorzieningen en het park 'De Twee Heuvels'. Met 3 slaapkamers en moderne afwerking is dit een ideale gezinswoning. Gemakkelijk bereikbaar met snelweg en openbaar vervoer. Bezichtiging welkom!

Overdracht

Vraagprijs
€ 479.500 k.k.
Aangeboden sinds
22-01-2026
Status
Beschikbaar
Beschikbaar
Per direct

Oppervlakte en inhoud

Woonoppervlakte
126 m²
Perceeloppervlakte
72 m²

Bouw

Type woning
Huis
Soort woning
Tussenwoning (rijtjeshuis), Eengezinswoning
Soort bouw
Bestaande bouw
Bouwjaar
1913

Indeling

Aantal kamers
4
Aantal slaapkamers
3
Aantal badkamers
1

Buitenruimte

Dakterras
Niet aanwezig

Energie

Energielabel
C
Meld een probleem met deze woning