Contact met de makelaar

Deze woning is gevonden buiten ons eigen netwerk. Met de knop hieronder kom je direct bij de aanbieder terecht.

Schiedamsedijk

Bekijk kaart
3011 EN Rotterdam (Stadsdriehoek)
€ 365.000 k.k.
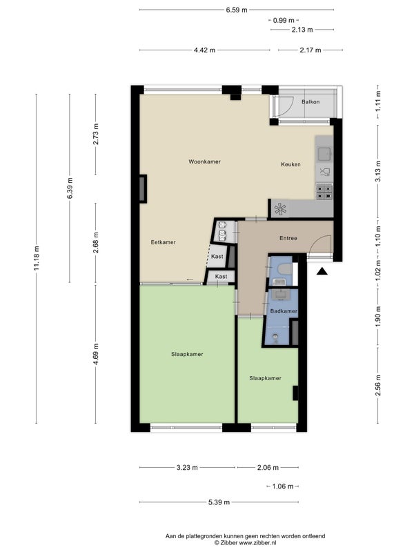
  • 64 m²
  • 3 kamers
  • 1952

Samenvatting

  • Deze woning wordt sinds 30 oktober 2025 aangeboden door Schildtvoorde NVM Makelaardij;
  • De galerijflat heeft een woonoppervlakte van 64 m² en beschikt over 3 kamers, waarvan 2 slaapkamers;
  • De woning is gebouwd In 1952 en ligt in de buurt Stadsdriehoek in Rotterdam.

Beschrijving

Meer woninginformatie bekijken?

Log in of registreer gratis.

Overdracht

Vraagprijs
€ 365.000 k.k.
Aangeboden sinds
30-10-2025
Status
Beschikbaar
Beschikbaar
In overleg

Oppervlakte en inhoud

Woonoppervlakte
64 m²

Bouw

Type woning
Appartement
Soort woning
Galerijflat
Soort bouw
Bestaande bouw
Bouwjaar
1952

Indeling

Aantal kamers
3
Aantal slaapkamers
2
Aantal badkamers
1

Buitenruimte

Dakterras
Niet aanwezig
Meld een probleem met deze woning