Contact met de makelaar

Deze woning is gevonden buiten ons eigen netwerk. Met de knop hieronder kom je direct bij de aanbieder terecht.

Weena 1157

Bekijk kaart
3013 AL Rotterdam (Cs Kwartier)
€ 525.000 k.k.
  • 110 m²
  • 4 kamers
  • 1981

Samenvatting

  • Deze woning wordt sinds 6 weken aangeboden door Match Makelaars;
  • De portiekflat heeft een woonoppervlakte van 110 m² en beschikt over 4 kamers, waarvan 3 slaapkamers;
  • De woning is gebouwd In 1981 en ligt in de buurt Cs Kwartier in Rotterdam;
  • De woning beschikt onder andere over de volgende voorzieningen: Kabel TV, Internetaansluiting, Mechanische ventilatie, Douche, Toilet.

Beschrijving

4 kamer hoek appartement - Dubbele bewoning mogelijk

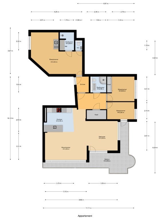
Dit is een uitzonderlijk 4 kamer appartement op de 7e etage met lang balkon op het zuiden en westen en parkeerplaats in de ondergelegen parkeergarage. Wat het uniek maakt is een slaapkamer die je kunt gebruiken als “zelfstandige” studio met eigen keuken en badkamer. De grote raampartijen geven je een goed uitzicht en veel lichtinval waardoor het ruimtelijke effect goed tot zijn recht komt.
Het appartement is smaakvol, modern en wordt compleet gemeubileerd opgeleverd. Ideaal als je snel wilt verhuizen en niets wilt doen

Indeling
Kom binnen in de ontvangsthal en laat je verrassen door de speelse en ruime indeling van dit heerlijk lichte
appartement, brede verkeersruimte waar alle kamers op uitkomen en direct de ruim opgezette woonkamer in loopt en als je gaat zitten op de bank of eethoek je elke dag gaat genieten van het unieke stadse uitzicht.
De luxe open keuken heeft een keurige afwerking met een stoere gietvloer en is voorzien van diverse inbouwapparatuur zoals combi-oven, vaatwasser, koelkast, vriezer, inductie kookplaat én een spoeleiland waar je gasten of gezinsleden plaats kunnen nemen terwijl jij lekker staat de koken. Met lekker weer kun je buiten eten op het balkon of met vrienden genieten van een wijntje en het geweldige uitzicht.

Bij de verkeersruimte na de entree, is een inpandige berging, badkamer met douchecabine, toilet met hangend closet, wastafelmeubel en designradiator en zijn 2 slaapkamers waarbij 1 slaapkamer toegang heeft tot het balkon.

De Studio is feitelijk de grootste 3e slaapkamer en vanuit de entree naar de andere zijde te bereiken. In deze studio staat een kitchenette met koelkast, wasemkap en elektrische kookplaat, badkamer voorzien van een douche, wastafel met eronder een wasmachine en droger, separaat is het toilet met fonteintje gesitueerd. Dit maakt dat deze slaapkamer, badkamer en toilet samen perfect
zijn te verhuren als afgesloten studio!

Begane grond
Entree van het complex is afgesloten met glazen puien en brievenbussen aan de buitenzijde. Via alle entrees van het complex zijn de appartementen bereikbaar. In de onderbouw is een gezamenlijke fietsenstalling en containerruimte voor afval.

Parkeergarage
In de kelder is grote parkeergarage waar je de auto kunt neerzetten waar je wilt. Deze parkeergarage is afgesloten voor vreemden middels hekwerken

Locatie
De omgeving van het Centraal Station en Weena is een druk gebied. Het leven gaat hier 24u per dag door en geeft je energie. Het winkelhart van de stad is vlakbij en binnen loopafstand zijn grote winkelstraten zoals de West Kruiskade en 1e Middelland-straat. Je kunt eindeloos shoppen en bovendien elke dag open.
Er is ontzettend veel te doen binnen loopafstand zoals vele restaurants en cafés, bioscopen, Schouwburg, sportscholen, de Doelen, theaters etc. Of je kunt wandelen, trimmen of fietsen langs de havens, parken en door de stad zelf.
Rotterdam wordt steeds onbegaanbaarder gemaakt met de auto dus geen gedoe met duur parkeren want je fietst overal zo naartoe en de auto laat je in de parkeergarage staan.
Voor de dagelijkse boodschappen zijn er genoeg supermarkten in de buurt.
Openbaar Vervoer is uitstekend met het Centraal Station naast het complex. Hier stoppen trein, bus, metro en trams.

Bijzonderheden
NEN 2580 meetrapport aanwezig
Gebruiksoppervlakte wonen 110m²
Gebruiksoppervlakte buitenruimte 18.6m²
Inhoud 359m³
Bouwjaar 1981
Appartement gelegen op erfpachtgrond t/m 31-10-2053 afgekocht t/m 30-10-2035
Energielabel A
Actieve VVE
VVE appartement € 318,14 per maand
VVE parkeerplaats € 77,09 per kwartaal
Er zal een niet bewonersclausule en ouderdomsclausule worden opgenomen
Wordt gemeubileerd opgeleverd
Te aanvaarden per februari 2026

Log in bij Eerlijk Bieden op onze website om toegang te krijgen tot alle documenten

Overdracht

Vraagprijs
€ 525.000 k.k.
Aangeboden sinds
24-12-2025
Status
Beschikbaar
Beschikbaar
In overleg
Onderhoudsstaat
Goed

Oppervlakte en inhoud

Woonoppervlakte
110 m²
Inhoud
359 m³

VvE informatie

Inschrijving KvK
Ja
Jaarlijkse vergadering
Ja
Periodieke bijdrage
Ja (€ 318 per maand)
Reservefonds aanwezig
Ja
Onderhoudsplan
Ja
Opstalverzekering
Ja

Bouw

Type woning
Appartement
Soort woning
Portiekflat, Appartement
Soort bouw
Bestaande bouw
Bouwjaar
1981
Ligging
  • In het centrum
  • Nabij het openbaar vervoer
  • Nabij een school
  • Vrij uitzicht

Indeling

Aantal kamers
4
Aantal slaapkamers
3
Aantal badkamers
2
Aantal woonlagen
1
Verdieping
7
Voorzieningen
  • Kabel TV
  • Internetaansluiting
  • Mechanische ventilatie
  • Douche
  • Toilet

Buitenruimte

Balkon
Niet aanwezig
Dakterras
Niet aanwezig

Energie

Energielabel
A

Parkeergelegenheid

Aanwezig
Ja
Soort parkeergelegenheid
Openbaar

Garage

Aanwezig
Nee
Meld een probleem met deze woning