Contact met de makelaar

Deze woning is gevonden buiten ons eigen netwerk. Met de knop hieronder kom je direct bij de aanbieder terecht.

Nieuw

Oranjeboomstraat 50 B

Bekijk kaart
3071 BB Rotterdam (Feijenoord)
€ 450.000 k.k.
  • 124 m²
  • 3 kamers
  • 1993

Samenvatting

  • Deze woning wordt sinds 12 november 2025 aangeboden door Woonvisie NVM Makelaars;
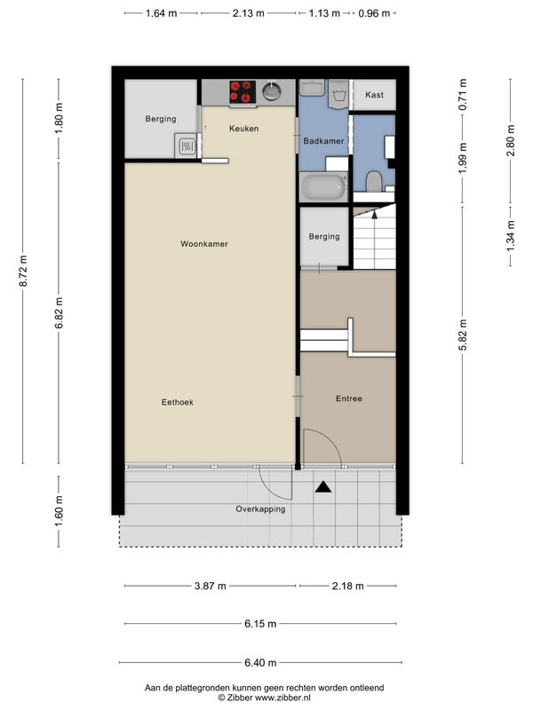
  • De maisonnette heeft een woonoppervlakte van 124 m² en beschikt over 3 kamers, waarvan 1 slaapkamer;
  • De woning is gebouwd In 1993 en ligt in de buurt Feijenoord in Rotterdam;
  • De woning beschikt onder andere over de volgende voorzieningen: Bad, Mechanische ventilatie, Douche, Bergruimte, Toilet.

Beschrijving

Meer woninginformatie bekijken?

Log in of registreer gratis.

Overdracht

Vraagprijs
€ 450.000 k.k.
Aangeboden sinds
12-11-2025
Status
Beschikbaar
Beschikbaar
In overleg
Onderhoudsstaat
Goed

Oppervlakte en inhoud

Woonoppervlakte
124 m²
Inhoud
410 m³

VvE informatie

Inschrijving KvK
Ja
Jaarlijkse vergadering
Ja
Periodieke bijdrage
Ja (€ 313 per maand)
Reservefonds aanwezig
Ja
Onderhoudsplan
Ja
Opstalverzekering
Ja

Bouw

Type woning
Appartement
Soort woning
Maisonnette, Appartement
Soort bouw
Bestaande bouw
Bouwjaar
1993
Ligging
  • Aan een rustige weg
  • In een woonwijk

Indeling

Aantal kamers
3
Aantal slaapkamers
1
Aantal badkamers
2
Aantal woonlagen
2
Voorzieningen
  • Bad
  • Mechanische ventilatie
  • Douche
  • Bergruimte
  • Toilet

Buitenruimte

Balkon
Niet aanwezig
Tuin
Niet aanwezig
Dakterras
Niet aanwezig

Energie

Isolatie
Dubbele beglazing, Vloerisolatie
Verwarming
CV-ketel
Warm water
CV-ketel
Cv-ketel
Intergas (Gas, uit 2019, Eigendom)
Energielabel
B

Bergruimte

Schuur/Berging
Aanwezig
Omschrijving
Inpandig

Parkeergelegenheid

Aanwezig
Ja
Soort parkeergelegenheid
Vergunning

Garage

Aanwezig
Nee
Meld een probleem met deze woning
Contact met de makelaar Bel