Contact met de aanbieder

Deze woning is gevonden buiten ons eigen netwerk. Via de knop hieronder ga je direct naar de website van de aanbieder.

Beijerlandselaan 10 J

Bekijk kaart
3074 EJ Rotterdam (Hillesluis)
€ 425.000 k.k.
  • 102 m²
  • 4 kamers
  • 2009

Samenvatting

  • Deze woning wordt sinds 3 maanden aangeboden door Woonvisie NVM Makelaars;
  • De portiekflat heeft een woonoppervlakte van 102 m² en beschikt over 4 kamers, waarvan 3 slaapkamers;
  • De woning is gebouwd In 2009 en ligt in de buurt Hillesluis in Rotterdam;
  • De woning beschikt onder andere over de volgende voorzieningen: Bad, Lift, Douche, Bergruimte, Toilet.

Beschrijving

Luxe 4-kamerappartement op de 13e verdieping met eigen parkeerplaats, energielabel A en adembenemend uitzicht!

Welkom in dit stijlvolle en energiezuinige appartement, gelegen op de 13e verdieping van een modern complex. Hier geniet je dagelijks van een fantastisch panoramisch uitzicht Rotterdam en de Maas.

Middels de hal krijgt u toegang tot de verschillende vertrekken van de woning. In de hal bevindt zich een moderne toiletruimte met wandcloset en fonteintje. De ruime en lichte woonkamer biedt een open verbinding met de eetkamer en de moderne keuken. De keuken is volledig uitgerust met hoogwaardige inbouwapparatuur waaronder: een inductiekookplaat met geïntegreerde afzuiging, een koel-vriescombinatie, een combimagnetron, een oven en een vaatwasser. Alles wat je nodig hebt om in stijl te koken! In de inpandige berging bevinden zich de opstelling van de cv-ketel en de aansluiting voor de wasmachine. De luxe badkamer is een oase van rust en beschikt over een ligbad, een inloopdouche en een wastafelmeubel. Daarnaast beschikt het appartement over drie ruime slaapkamers.

Voor wie op zoek is naar een centrale woonplek, is deze locatie werkelijk fantastisch! Op een steenworp afstand vind je het winkelcentrum Zuidplein, het metro- en busstation, de evenementenhal Ahoy, scholen en het Ikazia ziekenhuis. Bovendien bevindt zich in de directe omgeving het recreatiegebied 'het Zuiderpark', waar je kunt genieten van heerlijke wandelingen. Dankzij de uitstekende bereikbaarheid via het openbaar vervoer en de auto, ben je in no time in het bruisende centrum van Rotterdam. De belangrijke verbindingswegen liggen bovendien op korte afstand. Kortom, dit is de ideale locatie! Welkom op Zuid!

Interesse?
Wij nodigen u graag uit voor een bezichtiging van deze woning!

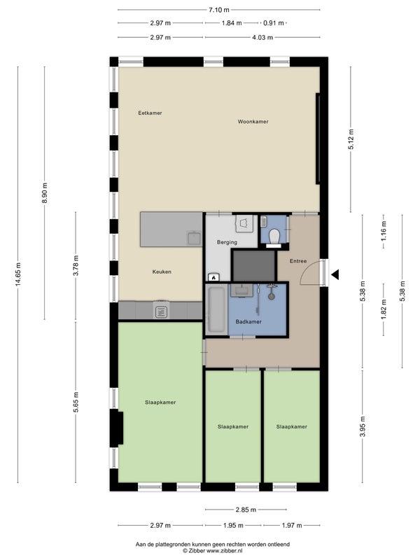
De indeling van de woning is als volgt:

Dertiende verdieping:

  • Middels de hal krijgt u toegang tot de verschillende vertrekken van de woning;
  • De hal is voorzien van een toiletruimte welke beschikt over een wandcloset en een fonteintje;
  • De ruime woonkamer is gelegen aan de voorzijde van de woning en staat in open verbinding met de eetkamer en de keuken;
  • De inpandige berging is voorzien van een wasmachineaansluiting en de opstelling van de cv-ketel;
  • De keuken is voorzien van een aanrecht in wandopstelling en beschikt over diverse inbouwapparatuur waaronder een: inductiekookplaat met afzuiging, koel/-vriescombinatie, een magnetron, een oven en een vaatwasser;
  • De badkamer is voorzien van een ligbad met bubbels, een inloopdouche, en een wastafelmeubel met wastafel;
  • Slaapkamer 1 (ca. 5.65m x 2.97);
  • Slaapkamer 2 (ca. 3.95m x 1.95m);
  • Slaapkamer 3 (ca. 3.95m x 1.97m).

Overig:

  • De parkeerplaats (ca. 4.43m x 2.43m);

Bijzonderheden:

  • Bouwjaar: 2009;
  • Woonoppervlakte: ca. 102m²;
  • Inhoud: ca. 337m³;
  • Energielabel A;
  • Gelegen op eigen grond;
  • Het appartementen complex is voorzien van een lift;
  • De woning is voorzien van kunststof kozijnen en dubbele beglazing;
  • De woning is voorzien van een stenen vloer met vloerverwarming;
  • De woning valt onder de opkoopbescherming van de Gemeente Rotterdam;
  • VvE bijdrage van €29,91,- voor de parkeerplaats en € 194,12,- voor de woning;

De oplevering vindt plaats in overleg/kan snel.

Alle verstrekte informatie moet beschouwd worden als een uitnodiging tot het doen van een bod of om in onderhandeling te treden.

Deze informatie is door ons met de nodige zorgvuldigheid samengesteld. Onzerzijds wordt echter geen enkele aansprakelijkheid aanvaard voor enige onvolledigheid, onjuistheid of anderszins, dan wel de gevolgen daarvan. Alle opgegeven maten en oppervlakten zijn indicatief. Van toepassing zijn de NVM voorwaarden.

Koopovereenkomst pas rechtsgeldig na ondertekening:
Een mondelinge overeenstemming tussen de particuliere verkoper en de particuliere koper is niet rechtsgeldig. Met andere woorden: er is geen koop. Er is pas sprake van een rechtsgeldige koop als de particuliere verkoper en de particuliere koper de koopovereenkomst hebben ondertekend. Dit vloeit voort uit artikel 7:2 Burgerlijk Wetboek. Een bevestiging van de mondelinge overeenstemming per e-mail of een toegestuurd concept van de koopovereenkomst wordt overigens niet gezien als een 'ondertekende koopovereenkomst'.

Toelichtingsclausule NEN2580:
De Meetinstructie is gebaseerd op de NEN2580. De Meetinstructie is bedoeld om een meer eenduidige manier van meten toe te passen voor het geven van een indicatie van de gebruiksoppervlakte. De Meetinstructie sluit verschillen in meetuitkomsten niet volledig uit, door bijvoorbeeld interpretatieverschillen, afrondingen of beperkingen bij het uitvoeren van de meting.

Overdracht

Vraagprijs
€ 425.000 k.k.
Prijs per m²
€ 4.167
Aangeboden sinds
12-11-2025
Status
Beschikbaar
Beschikbaar
In overleg
Onderhoudsstaat
Zeer goed

Oppervlakte en inhoud

Woonoppervlakte
102 m²
Inhoud
337 m³

VvE informatie

Inschrijving KvK
Ja
Jaarlijkse vergadering
Ja
Periodieke bijdrage
Ja (€ 224 per maand)
Reservefonds aanwezig
Ja
Onderhoudsplan
Ja
Opstalverzekering
Nee

Bouw

Type woning
Appartement
Soort woning
Portiekflat, Appartement
Soort bouw
Bestaande bouw
Bouwjaar
2009
Ligging
  • Aan een drukke weg
  • Vrij uitzicht

Indeling

Aantal kamers
4
Aantal slaapkamers
3
Aantal badkamers
1
Aantal woonlagen
1
Verdieping
13
Voorzieningen
  • Bad
  • Lift
  • Douche
  • Bergruimte
  • Toilet

Buitenruimte

Balkon
Niet aanwezig
Tuin
Niet aanwezig
Dakterras
Niet aanwezig

Energie

Isolatie
Dubbele beglazing
Verwarming
CV-ketel
Warm water
CV-ketel
Cv-ketel
Remeha (Gas, uit 2009, Eigendom)
Energielabel
A

Bergruimte

Schuur/Berging
Aanwezig
Omschrijving
Box

Parkeergelegenheid

Aanwezig
Ja
Soort parkeergelegenheid
Betaald

Garage

Aanwezig
Nee
Meld een probleem met deze woning