Contact met de makelaar

Deze woning is gevonden buiten ons eigen netwerk. Met de knop hieronder kom je direct bij de aanbieder terecht.

Nieuw

Zuidplein 454

Bekijk kaart
3083 CX Rotterdam (Zuidplein)
€ 350.000 k.k.
  • 90 m²
  • 3 kamers
  • 1991

Samenvatting

  • Deze woning wordt sinds 9 januari 2026 aangeboden door Schildtvoorde;
  • De galerijflat heeft een woonoppervlakte van 90 m² en beschikt over 3 kamers, waarvan 2 slaapkamers;
  • De woning is gebouwd In 1991 en ligt in de buurt Zuidplein in Rotterdam;
  • De woning beschikt onder andere over de volgende voorzieningen: Lift, Douche, Toilet.

Beschrijving

Heerlijk wonen met alle faciliteiten van de stad binnen handbereik?

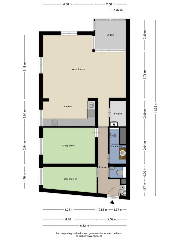
Middels de hal krijgt u toegang tot de verschillende vertrekken van de woning. De toiletruimte is vernieuwd in 2022 en beschikt over een zwevend closet en een fonteintje. De ruime woonkamer biedt toegang tot de inpandige serre. Een heerlijke plek om het hele jaar door te genieten. De keuken tevens gerenoveerd in 2022 beschikt over diverse inbouwapparatuur waaronder een: inductiekookplaat met geïntegreerde afzuiging, een koel-vriescombinatie, een oven en een vaatwasser. Dankzij de vele lades en kastruimte is er bovendien geen gebrek aan opbergruimte. De badkamer is ingericht met een ruime inloop(regen)douche, een wastafelmeubel en een designradiator. In de inpandige berging vindt u aansluitingen voor wasmachine en droger, evenals de ventilatie-unit. Het appartement beschikt over twee slaapkamers. Tot slot is er in de onderbouw een eigen berging van ca. 2 m² aanwezig en beschikt u over een privéparkeerplaats.

Voor wie op zoek is naar een centrale woonplek, is deze locatie werkelijk fantastisch! Op een steenworp afstand vind je het winkelcentrum Zuidplein , het metro- en busstation, de evenementenhal Ahoy, scholen en het Ikazia ziekenhuis. Bovendien bevindt zich in de directe omgeving het recreatiegebied 'het Zuiderpark', waar je kunt genieten van heerlijke wandelingen. Dankzij de uitstekende bereikbaarheid via het openbaar vervoer en de auto, ben je in no time in het bruisende centrum van Rotterdam. De belangrijke verbindingswegen liggen bovendien op korte afstand. Kortom, dit is de ideale locatie! Welkom op Zuid!

Ben jij op zoek naar een instapklaar appartement met ruimte en comfort? Maak dan snel een afspraak voor een bezichtiging en laat je verrassen door de mogelijkheden!

Begane grond:

  • Ontvangsthal met brievenbussen en liftinstallatie naar de verdiepingen.

Vijfde verdieping:

  • Middels de entree krijgt u toegang tot de verschillende vertrekken van de woning;
  • De hal is voorzien van een toiletruimte gerenoveerd in 2022 en uitgerust met een zwevend closet en een fontein;
  • De ruime woonkamer is voorzien van veel lichtinval en biedt toegang tot de inpandige serre;
  • De open keuken komt uit 2022 en is voorzien van diverse inbouwapparatuur zoals: een inductieplaat met geïntegreerde afzuiging, een koel/vries combinatie, een oven, een vaatwasser en voldoende lades en kastruimte;
  • De badkamer tevens uit 2022 is voorzien van een ruime douche (regendouche), een wastafelmeubel en een designradiator;
  • De inpandige bergruimte beschikt over een wasmachine- en drogeraansluiting en een ventilatie-unit;
  • Slaapkamer 1 (ca. 2.94m x 4.25m);
  • Slaapkamer 2 (ca. 1.76m x 4.40m).

Overig:

  • In de onderbouw is een eigen berging (ca. 2m²) aanwezig en de woning is voorzien van één eigen parkeerplaats!!

Verplichte afname parkeerplaats

Bijzonderheden

  • Bouwjaar: 1991;
  • Woonoppervlakte: ca. 90m² (incl. serre en inpandige berging);
  • Inhoud: ca. 297m³;
  • Energielabel A;
  • Gelegen op erfpacht grond. De erfpachtcanon is afgekocht tot en met 4 september 2089;
  • De woning is voorzien van dubbele beglazing;
  • De woning is voorzien van een gietvloer;
  • Centrale verwarming door middel van stadsverwarming;
  • Bijdrage VvE: € 326- per maand (VVE verhoogd i.v.m. omzetting gasketel naar Stadsverwarming);
  • Gezien het bouwjaar van de woning zal er een asbest en ouderdomsclausule worden opgenomen in de koopakte;

De oplevering vindt plaats in overleg.

De koopovereenkomst wordt conform het NVM model opgemaakt met de daarbij behorende clausules (asbest en ouderdom) die gebruikelijk zijn voor een woning uit deze bouwperiode.

Alle verstrekte informatie moet beschouwd worden als een uitnodiging tot het doen van een bod of om in onderhandeling te treden.

Deze informatie is door ons met de nodige zorgvuldigheid samengesteld. Onzerzijds wordt echter geen enkele aansprakelijkheid aanvaard voor enige onvolledigheid, onjuistheid of anderszins, dan wel de gevolgen daarvan. Alle opgegeven maten en oppervlakten zijn indicatief. Van toepassing zijn de NVM voorwaarden.

Koopovereenkomst pas rechtsgeldig na ondertekening:
Een mondelinge overeenstemming tussen de particuliere verkoper en de particuliere koper is niet rechtsgeldig. Met andere woorden: er is geen koop. Er is pas sprake van een rechtsgeldige koop als de particuliere verkoper en de particuliere koper de koopovereenkomst hebben ondertekend. Dit vloeit voort uit artikel 7:2 Burgerlijk Wetboek. Een bevestiging van de mondelinge overeenstemming per e-mail of een toegestuurd concept van de koopovereenkomst wordt overigens niet gezien als een 'ondertekende koopovereenkomst'.

Toelichtingsclausule NEN2580:
De Meetinstructie is gebaseerd op de NEN2580. De Meetinstructie is bedoeld om een meer eenduidige manier van meten toe te passen voor het geven van een indicatie van de gebruiksoppervlakte. De Meetinstructie sluit verschillen in meetuitkomsten niet volledig uit, door bijvoorbeeld interpretatieverschillen, afrondingen of beperkingen bij het uitvoeren van de meting.

Reageer op tijd op nieuw woningaanbod

Meer dan de helft van de reacties komt binnen 48 uur. Ontvang direct notificaties bij nieuw aanbod en reageer sneller met Pararius+.

Probeer Pararius+ 14 dagen € 0,01

Overdracht

Vraagprijs
€ 350.000 k.k.
Aangeboden sinds
09-01-2026
Status
Beschikbaar
Beschikbaar
In overleg
Onderhoudsstaat
Goed

Oppervlakte en inhoud

Woonoppervlakte
90 m²
Inhoud
297 m³

VvE informatie

Inschrijving KvK
Ja
Jaarlijkse vergadering
Ja
Periodieke bijdrage
Ja (€ 326 per maand)
Reservefonds aanwezig
Ja
Onderhoudsplan
Ja
Opstalverzekering
Ja

Bouw

Type woning
Appartement
Soort woning
Galerijflat, Appartement
Soort bouw
Bestaande bouw
Bouwjaar
1991
Ligging
  • Aan een drukke weg
  • In een woonwijk
  • Vrij uitzicht

Indeling

Aantal kamers
3
Aantal slaapkamers
2
Aantal badkamers
1
Aantal woonlagen
1
Verdieping
5
Voorzieningen
  • Lift
  • Douche
  • Toilet

Buitenruimte

Balkon
Niet aanwezig
Tuin
Niet aanwezig
Dakterras
Niet aanwezig

Energie

Isolatie
Dubbele beglazing
Verwarming
Stadsverwarming
Warm water
Centrale verwarming
Energielabel
A

Bergruimte

Schuur/Berging
Aanwezig
Omschrijving
Box

Parkeergelegenheid

Aanwezig
Ja
Soort parkeergelegenheid
Garage

Garage

Aanwezig
Ja
Omschrijving
Parkeerplaats
Meld een probleem met deze woning