Contact met de makelaar

Deze woning is gevonden buiten ons eigen netwerk. Met de knop hieronder kom je direct bij de aanbieder terecht.

Nieuw

Poelenburg 35

Bekijk kaart
3085 KS Rotterdam (Zuidwijk)
€ 475.000 k.k.
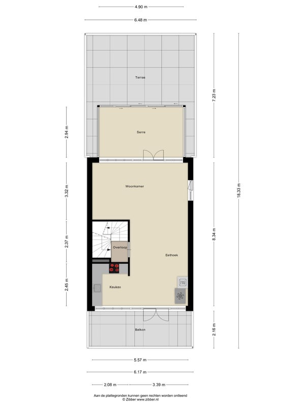
  • 105 m²
  • 4 kamers
  • 2008

Samenvatting

  • Deze woning wordt sinds 10 november 2025 aangeboden door Woonvisie NVM Makelaars;
  • De beneden + bovenwoning heeft een woonoppervlakte van 105 m² en beschikt over 4 kamers, waarvan 3 slaapkamers;
  • De woning is gebouwd In 2008 en ligt in de buurt Zuidwijk in Rotterdam;
  • De woning beschikt onder andere over de volgende voorzieningen: Mechanische ventilatie, Dakterras, Douche, Bergruimte, Toilet.

Beschrijving

Overdracht

Vraagprijs
€ 475.000 k.k.
Aangeboden sinds
10-11-2025
Status
Beschikbaar
Beschikbaar
In overleg
Onderhoudsstaat
Goed

Oppervlakte en inhoud

Woonoppervlakte
105 m²
Inhoud
371 m³

VvE informatie

Inschrijving KvK
Nee
Jaarlijkse vergadering
Nee
Periodieke bijdrage
Ja (€ 149 per maand)
Reservefonds aanwezig
Nee
Onderhoudsplan
Nee
Opstalverzekering
Nee

Bouw

Type woning
Appartement
Soort woning
Beneden + bovenwoning, Appartement
Soort bouw
Bestaande bouw
Bouwjaar
2008
Ligging
  • Aan een rustige weg
  • In een woonwijk

Indeling

Aantal kamers
4
Aantal slaapkamers
3
Aantal badkamers
1
Aantal woonlagen
2
Voorzieningen
  • Mechanische ventilatie
  • Dakterras
  • Douche
  • Bergruimte
  • Toilet

Buitenruimte

Balkon
Aanwezig
Tuin
Niet aanwezig
Dakterras
Aanwezig

Energie

Isolatie
Dubbele beglazing
Verwarming
CV-ketel
Warm water
CV-ketel
Cv-ketel
Remeha (Gas, uit 2020, Eigendom)
Energielabel
A++

Bergruimte

Schuur/Berging
Aanwezig
Omschrijving
Aangebouwd steen

Parkeergelegenheid

Aanwezig
Ja
Soort parkeergelegenheid
Vergunning

Garage

Aanwezig
Nee
Meld een probleem met deze woning
Contact met de makelaar Bel