Contact met de makelaar

Deze woning is gevonden buiten ons eigen netwerk. Met de knop hieronder kom je direct bij de aanbieder terecht.

Pleinweg 209 C

Bekijk kaart
3081 JN Rotterdam (Tarwewijk)
€ 401.500 v.o.n.
  • 73 m²
  • 3 kamers
  • 2025

Samenvatting

  • Deze woning wordt sinds 3 maanden aangeboden door DWM Makelaardij;
  • De bovenwoning heeft een woonoppervlakte van 73 m² en beschikt over 3 kamers, waarvan 2 slaapkamers;
  • De woning is gebouwd In 2025 en ligt in de buurt Tarwewijk in Rotterdam.

Beschrijving

Tweede verdieping

Nieuwbouw aan de Pleinweg 209 – Modern wonen in het bruisende Rotterdam-Zuid

5 stijlvolle appartementen | Prijzen vanaf €365.000 v.o.n.

Welkom op de Pleinweg 209 – een kleinschalig én modern nieuwbouwproject met vijf comfortabele appartementen. Gelegen op een centrale locatie in Rotterdam-Zuid, nabij winkels, openbaar vervoer en belangrijke uitvalswegen. Hier woon je stads, comfortabel en met veel oog voor kwaliteit.

Woningen & Prijzen (v.o.n.):

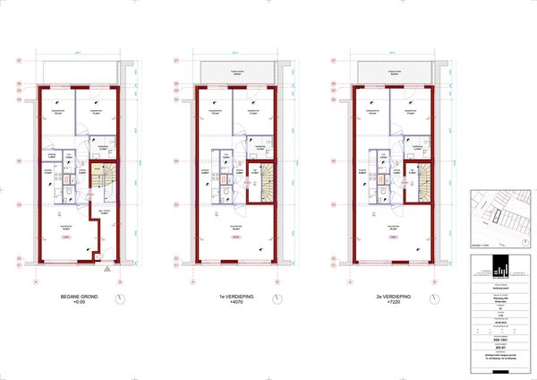
-Begane grond
ca. 65 m² – 2 slaapkamers, balkon/tuin – € 365.000 v.o.n.

-Eerste verdieping
ca. 73 m² – 2 slaapkamers, balkon – € 401.500 v.o.n.

-Tweede verdieping
ca. 73 m² – 2 slaapkamers, balkon – € 401.500 v.o.n.

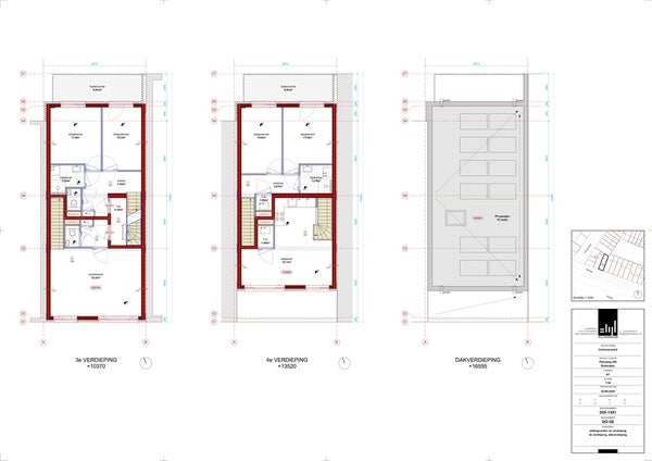
-Derde verdieping
ca. 67 m² verdeeld over twee verdiepingen – maisonnettewoning, 2 slaapkamers en een balkon – € 368.500 v.o.n.

-Vierde verdieping
ca. 67 m² verdeeld over twee verdiepingen – maisonnettewoning, 2 slaapkamers en een balkon – € 368.500 v.o.n.

Waarom kiezen voor Pleinweg 209?
• Ruim balkon aan de achterzijde bij elke woning – heerlijk buiten zitten in eigen privacy.
• Slim ingedeelde plattegronden met veel lichtinval en moderne leefkwaliteit.
• Gezamenlijke berging op de begane grond – ideaal voor fietsen en extra opslag.
• Vrije keuze uit hoogwaardige materialen voor keuken, badkamer en vloer – stel je woning volledig naar eigen smaak samen.
• Twee unieke maisonnettes met eigen entree over meerdere verdiepingen.

Locatie & Voorzieningen
• Gelegen nabij winkelcentrum Zuidplein, het Zuiderpark, en op loopafstand van openbaar vervoer (metro, bus).
• Snelle toegang tot uitvalswegen A15 en A29.
• Parkeren in de directe omgeving met mogelijkheid tot bewonersvergunning.

Planning & Vooruitzicht
De bouw van dit project start na verkoop van 70% van de woningen. Naar verwachting kan de oplevering plaatsvinden binnen ongeveer 12 maanden na start bouw.
Er wordt een VvE opgericht voor gezamenlijk beheer, met lage maandlasten en professioneel onderhoud.

Duurzaam & Toekomstgericht
• Energiezuinige bouw volgens de nieuwste eisen.
• Goede isolatie en moderne installaties voor comfortabel en verantwoord wonen.
• Voorbereid op een duurzame toekomst.

Deze informatie is met zorg samengesteld door DWM Makelaardij. Aan de inhoud, foto’s en plattegronden kunnen echter geen rechten worden ontleend. Alle opgegeven maten zijn indicatief

New Construction at Pleinweg 209 – Modern Living in the Vibrant Rotterdam-South

5 stylish apartments | Prices from €365,000 free of transfer tax

Welcome to Pleinweg 209 – a small-scale yet modern new-build project featuring five comfortable apartments. Located in a central area of Rotterdam-South, close to shops, public transport, and major roads. Here, you can enjoy city living with comfort and a strong focus on quality.

Apartments & Prices (free of transfer tax):

-Ground floor
Approx. 65 m² – 2 bedrooms, balcony/garden – €365,000

-First floor
Approx. 73 m² – 2 bedrooms, balcony – €401,500

-Second floor
Approx. 73 m² – 2 bedrooms, balcony – €401,500

-Third floor
Approx. 67 m² over two floors – maisonette apartment, 2 bedrooms, balcony – €368,500

-Fourth floor
Approx. 67 m² over two floors – maisonette apartment, 2 bedrooms, balcony – €368,500

Why Choose Pleinweg 209?

-Spacious balcony at the rear of each apartment – enjoy outdoor living in your own privacy.
-Cleverly designed layouts with plenty of natural light and modern living quality.
-Shared storage on the ground floor – perfect for bicycles and extra storage.
-Full choice of high-quality materials for kitchen, bathroom, and flooring – customize your home entirely to your taste.
-Two unique maisonettes with private entrances over multiple floors.

Location & Amenities

-Close to Zuidplein shopping center, Zuiderpark, and within walking distance of public transport (metro, bus).
-Quick access to highways A15 and A29.
-Parking nearby with the option of a residents’ permit. Planning & Outlook
Construction of the project will start after 70% of the apartments are sold. Delivery is expected approximately 12 months after the start of construction.
A homeowners’ association (VvE) will be established for joint management, with low monthly costs and professional maintenance.

Sustainable & Future-Oriented

-Energy-efficient construction in line with the latest standards.
-Excellent insulation and modern installations for comfortable and responsible living.
-Prepared for a sustainable future.

This information has been carefully compiled by DWM Real Estate. No rights can be derived from the content, photos, or floor plans. All stated measurements are indicative.

Overdracht

Vraagprijs
€ 401.500 v.o.n.
Aangeboden sinds
14-10-2025
Status
Beschikbaar
Beschikbaar
In overleg
Onderhoudsstaat
Goed

Oppervlakte en inhoud

Woonoppervlakte
73 m²
Inhoud
180 m³

Bouw

Type woning
Appartement
Soort woning
Bovenwoning, Appartement
Soort bouw
Nieuwbouw
Bouwjaar
2025

Indeling

Aantal kamers
3
Aantal slaapkamers
2
Aantal badkamers
1
Aantal woonlagen
1
Voorzieningen
Toilet

Buitenruimte

Balkon
Aanwezig
Dakterras
Niet aanwezig

Energie

Isolatie
Dubbele beglazing, Volledig geïsoleerd
Verwarming
Stadsverwarming
Energielabel
A+
Meld een probleem met deze woning