Contact met de makelaar

Deze woning is gevonden buiten ons eigen netwerk. Met de knop hieronder kom je direct bij de aanbieder terecht.

3e Carnissestraat

Bekijk kaart
3083 JL Rotterdam (Carnisse)
€ 285.000 k.k.
  • 117 m²
  • 6 kamers
  • 1938

Samenvatting

  • Deze woning wordt sinds 7 weken aangeboden door Woonvisie NVM Makelaars;
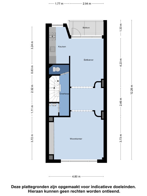
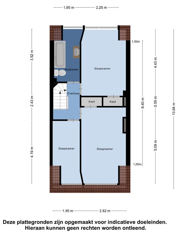
  • De galerijflat heeft een woonoppervlakte van 117 m² en beschikt over 6 kamers, waarvan 4 slaapkamers;
  • De woning is gebouwd In 1938 en ligt in de buurt Carnisse in Rotterdam.

Beschrijving

Dit huis biedt een comfortabele en ruime leefomgeving met 120 vierkante meter woonoppervlak. Het beschikt over drie slaapkamers, perfect voor gezinnen of als werkruimtes. De keuken is praktisch en functioneel, terwijl de woonkamer een uitnodigende plek is om tijd door te brengen. De tuin biedt een ideale ruimte voor buitenactiviteiten of gewoon om te ontspannen. Met goede verbindingen naar het openbaar vervoer en nabijgelegen voorzieningen, is dit huis bijzonder aantrekkelijk voor iedereen die op zoek is naar gemak en comfort in de buurt.

Overdracht

Vraagprijs
€ 285.000 k.k.
Aangeboden sinds
12-11-2025
Status
Beschikbaar
Beschikbaar
In overleg

Oppervlakte en inhoud

Woonoppervlakte
117 m²

Bouw

Type woning
Appartement
Soort woning
Galerijflat
Soort bouw
Bestaande bouw
Bouwjaar
1938

Indeling

Aantal kamers
6
Aantal slaapkamers
4
Aantal badkamers
1

Buitenruimte

Dakterras
Niet aanwezig

Energie

Energielabel
F
Meld een probleem met deze woning