Contact met de makelaar

Deze woning is gevonden buiten ons eigen netwerk. Met de knop hieronder kom je direct bij de aanbieder terecht.

Nieuw

Heenvlietstraat

Bekijk kaart
3081 SR Rotterdam (Tarwewijk)
€ 425.000 k.k.
  • 132 m²
  • 6 kamers
  • 1928

Samenvatting

  • Deze woning wordt sinds 19 januari 2026 aangeboden door Schildtvoorde NVM Makelaardij;
  • De galerijflat heeft een woonoppervlakte van 132 m² en beschikt over 6 kamers, waarvan 4 slaapkamers;
  • De woning is gebouwd In 1928 en ligt in de buurt Tarwewijk in Rotterdam.

Beschrijving

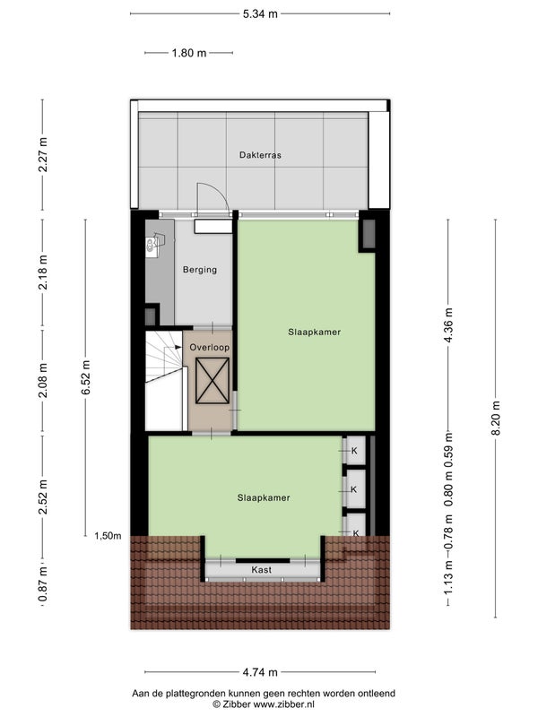
Aan de Heenvlietstraat 40 in Rotterdam vindt u een ruime eengezinswoning met zowel een tuin als een dakterras. Het huis is verdeeld over drie woonlagen en beschikt over vijf kamers, perfect voor gezinnen. Gelegen in de kindvriendelijke wijk Charlois, geniet u hier van de rust van een dorp terwijl de stadsvoorzieningen om de hoek liggen. Winkels, eetgelegenheden, en sportfaciliteiten zijn in de directe omgeving te vinden, met uitstekende bereikbaarheid naar het openbaar vervoer en de snelwegen. De indeling bestaat uit een hal met toegang tot de open keuken en een ruime living met trapkast. Op de eerste verdieping zijn twee slaapkamers, een zijkamer en een geheel betegelde badkamer. De tweede verdieping heeft nog twee slaapkamers, een wasruimte, en toegang tot het dakterras.

Overdracht

Vraagprijs
€ 425.000 k.k.
Aangeboden sinds
19-01-2026
Status
Beschikbaar
Beschikbaar
Per direct

Oppervlakte en inhoud

Woonoppervlakte
132 m²
Perceeloppervlakte
105 m²

Bouw

Type woning
Appartement
Soort woning
Galerijflat
Soort bouw
Bestaande bouw
Bouwjaar
1928

Indeling

Aantal kamers
6
Aantal slaapkamers
4
Aantal badkamers
1

Buitenruimte

Dakterras
Niet aanwezig

Energie

Energielabel
F
Meld een probleem met deze woning