Contact met de aanbieder

Deze woning is gevonden buiten ons eigen netwerk. Via de knop hieronder ga je direct naar de website van de aanbieder.

Nieuw

Wilhelminalaan 21

Bekijk kaart
6301 GG Valkenburg (Valkenburg)
€ 345.000 k.k.
  • 120 m²
  • 7 kamers
  • 1925

Samenvatting

  • Deze woning wordt sinds 20 februari 2026 aangeboden door VAQS;
  • De bovenwoning heeft een woonoppervlakte van 120 m² en beschikt over 7 kamers, waarvan 2 slaapkamers;
  • De woning is gebouwd In 1925 en ligt in de buurt Valkenburg in Valkenburg;
  • De woning beschikt onder andere over de volgende voorzieningen: Airconditioning, Kabel TV, Glasvezelaansluiting, Mechanische ventilatie, Rolluiken, Dakraam, Schuifdeuren, Zonnepanelen, Terras.

Beschrijving

Comfortabel wonen in het historische centrum van het bruisende stadje Valkenburg aan de Geul in Zuid-Limburg! In de luwte daarvan ligt deze riante, recent gerenoveerde en energiezuinige, instapklare bovenwoning met maar liefst ca.120 m2 woonoppervlakte, 2 slaapkamers, luxe badkamer, een ruim bemeten extra toilet met witgoedaansluitingen (eenvoudig te transformeren naar 2e badkamer), een fijn dakterras met goede bezonning, een authentieke kelder en een royale bergzolder onder een nieuw, geïsoleerd dak! Parkeerplaatsen zijn beschikbaar in de parkeergarage in het complex (abonnement) of op loopafstand (parkeervergunning 1e auto gratis). Overtuig jezelf en kom deze mooie woning op je gemak bekijken. Bel (043-4506028) of mail (******) ons voor een uitgebreide bezichtiging. Je bent van harte welkom!

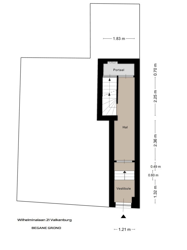
BEGANE GROND
De zelfstandige entree van deze bovenwoning bevindt zich op de begane grond. Je loopt naar binnen en komt dan eerst in de vestibule ofwel voorportaal die toegang geeft naar de feitelijke ontvangsthal/gang. Aan het einde daarvan bevindt zich een portaal van waaruit de kelder te bereiken is (daarover later meer). In het portaal bevindt zich tevens de volledig vernieuwde, uitgebreide 3-fasen meterkast met glasvezelkabelaansluiting. Terug naar de hal. Via de prachtige, authentieke houten trap gaan we naar boven.

VERDIEPING 1
Je komt uit op een royale L-vormige overloop voorzien van een mooie houten plankenvloer en een authentieke, houten trapbalustrade. Aan de achterzijde van de woning bevindt zich in een gerenoveerde aanbouw een volledig gemoderniseerde badkamer van ca. 2.90 x 2.30m ( volledig geïsoleerd; voorzien van verduurzaamde houten gevelpanelen, nieuw bitumen plat dak en kunststof raamkozijn met HR++ beglazing). Deze badkamer is uitgerust met een luxe wastafelmeubel met verwarmbare en verlichte spiegel, een ruime inloopdouche, een wandcloset en infrarood verwarming. Alles hoogwaardig afgewerkt met modern tegel- en stucwerk en bronzen designkranen met bijpassend douche- c.q. toiletgarnituur.
Via de overloop lopen we naar de leefruimte van ca. 35 m2 bestaande uit de woonkamer, eetkamer en open keuken. Je woont dus op de eerste verdieping en dat geeft je optimale privacy. De sfeervolle living is afgewerkt met een moderne pvc-visgraatvloer en strakke wand- en plafondafwerking. Het fijne ruimtelijke gevoel wordt nog eens versterkt door de aanwezige hoge plafonds. Aan de achterzijde bevindt zich de zitkamer. Voorzien van een moderne airco (2025) en een grote schuifpui naar een aangenaam dakterras van ca. 3.80 x 3.50 m met ligging op het noordwesten (dus met bezonning vanaf de middag tot zonsondergang) en voorzien van buitenstopcontacten. Aan de voorzijde van de woning bevindt zich de eetkamer met een open verbinding naar de keuken. Hier is een moderne, eenvoudige inbouwkeuken geplaatst, voorzien van een spoelbak, keramische kookplaat, 90cm rvs-afzuigkap, oven-/magnetroncombinatie en vaatwasser.
Via de overloop vervolgen we onze weg en lopen door middel van een authentieke bordestrap naar de tweede verdieping.

VERDIEPING 2
Aldaar komen we wederom uit op een ruimbemeten overloop van waaruit 2 slaapkamers en een extra toilet te bereiken zijn. De grootste slaapkamer van ca. 15 m2 is voorzien van een praktische inloopkast van aanvullend ca. 10 m2. Deze kamer is smaakvol afgewerkt met een authentieke plankenvloer. De inloopkast is volledig ingericht voor het praktisch kunnen opbergen van je garderobe en is voorzien van een nieuw kunststof Velux dakraam. Vanaf de overloop is tevens de tweede slaapkamer van ca. 12 m2 bereikbaar. Met natuurlijk dezelfde mooie afwerking als bij de eerste slaapkamer! Tot slot is via de overloop nog een extra toiletruimte toegankelijk. Deels betegeld en voorzien van een laminaatvloer, wandcloset, wastafelmeubel, nieuw kunststof Velux dakraam en de mogelijkheid (en ruimte) om hier een inloopdouche te plaatsen (thans is deze ruimte benut voor de wasmachine en droger). Achter deze ruimte bevindt zich een berging waar tevens de cv-combiketel is geplaatst (Remeha, bouwjaar 2021, eigendom). Desgewenst is de inloopkast te transformeren naar een extra slaapkamer met een eigen toegang. Wij vertellen je daar graag meer over tijdens de bezichtiging.

ZOLDER
Via de overloop op de tweede verdieping is, door middel van een houten vlizotrap, een bergzolder van ca. 14,5 m2 bereikbaar. In deze ruimte heb je goed zicht op het het recent volledig vernieuwde en geïsoleerde hoofddak dat tevens is voorzien van 7 zonnepanelen (bouwjaar 2025, eigendom).

KELDER
Tot slot gaan we weer helemaal naar beneden naar de hal op de begane grond. Via het portaal in de hal en een vaste, open houten trap is de kelder van ca. 8.00 x 1.80/1.20 m toegankelijk. Een ideale provisie- en/of bergruimte.

KORT SAMENGEVAT
-Locatie aan de rand van het historisch centrum;
-Op loopafstand van alle voorzieningen;
-Kleinschalig complex met 4 appartementsrechten;
-Ruime bovenwoning met veel leefruimte;
-In de periode 2022 t/m 2025 gerenoveerd en gemoderniseerd;
-Fijne living met dakterras;
-Moderne, open keuken;
-Hoge plafonds;
-Twee slaapkamers;
-Luxe badkamer;
-Eenvoudig te realiseren tweede badkamer;
-Moderne afwerking in combinatie met authentieke elementen;
-Modern leidingwerk en elektra;
-Kunststof kozijnen met dubbele HR++ beglazing en rolluiken;
-Energielabel C, geldig tot 26-10-2035;
-Airconditioning, bouwjaar 2025;
-Zonnepanelen, 7 stuks, bouwjaar 2025, eigendom (3.050Wp);
-Remeha, HR cv-combiketel, bouwjaar 2021, eigendom;
-Parkeren op loopafstand (gratis parkeervergunning 1e auto) of
in parkeergarage in complex (abonnement tegen betaling);
-Servicekosten VvE: ca. € 75,- per maand.

OMGEVING
De bovenwoning ligt aan de rand en dus in de luwte van het centrum van Valkenburg aan de Geul. In dit historische stadje heb je altijd een vakantiegevoel. Naast een grote diversiteit aan gezellige restaurantjes en cafés zijn er veel bezienswaardigheden en een groot aanbod aan recreatiemogelijkheden. Door de ligging van Valkenburg temidden van het prachtige Zuid-Limburgse heuvelland kun je in de omgeving heerlijk wandelen of fietsen en genieten van de natuur. Qua voorzieningenniveau (winkels, scholen, medische voorzieningen, openbaar vervoer etc.) is vrijwel alles beschikbaar en vanuit de woning op loopafstand bereikbaar. Last but not least ben je met de auto in slechts enkele minuten bij de oprit van de autosnelweg naar Heerlen of naar Maastricht.

OVERIG
Ter bescherming van de belangen van zowel koper als verkoper wordt uitdrukkelijk gesteld dat een koopovereenkomst met betrekking tot deze onroerende zaak eerst dan tot stand komt nadat de koper en verkoper de koopovereenkomst hebben getekend ("schriftelijkheidsvereiste").
De termijn die wordt opgenomen voor eventuele (overeengekomen) ontbindende voorwaarden (bv. financiering) is in de regel 6 tot 8 weken na het sluiten van de mondelinge wilsovereenkomst.
De waarborgsom/bankgarantie is 10% van de koopsom. De koper dient deze 1 week ná het vervallen van de ontbindende voorwaarden bij de desbetreffende notaris te deponeren.
Koper is te allen tijde gerechtigd voor eigen rekening een bouwkundige keuring te (laten) verrichten dan wel andere adviseurs te raadplegen teneinde een goed inzicht te verkrijgen over de staat van onderhoud.
Deze informatie is door ons met de nodige zorgvuldigheid samengesteld. Onzerzijds wordt echter geen enkele aansprakelijkheid aanvaard voor enige onvolledigheid, onjuist of anderszins, dan wel de gevolgen daarvan. Alle opgegeven maten en oppervlakten zijn indicatief.

Overdracht

Vraagprijs
€ 345.000 k.k.
Prijs per m²
€ 2.875
Aangeboden sinds
20-02-2026
Status
Beschikbaar
Beschikbaar
In overleg
Onderhoudsstaat
Zeer goed

Oppervlakte en inhoud

Woonoppervlakte
120 m²
Inhoud
456 m³

Bouw

Type woning
Appartement
Soort woning
Bovenwoning, Appartement
Soort bouw
Bestaande bouw
Bouwjaar
1925
Ligging
In het centrum

Indeling

Aantal kamers
7
Aantal slaapkamers
2
Aantal badkamers
2
Aantal woonlagen
5
Woonlagen complex
2
Voorzieningen
  • Airconditioning
  • Kabel TV
  • Glasvezelaansluiting
  • Mechanische ventilatie
  • Rolluiken
  • Dakraam
  • Schuifdeuren
  • Zonnepanelen
  • Terras

Buitenruimte

Balkon
Niet aanwezig
Tuin
Aanwezig (13 m², gelegen op het noordwesten)
Tuinbeschrijving
zonneterras
Dakterras
Niet aanwezig

Energie

Isolatie
HR glas, Dakisolatie, Muurisolatie
Verwarming
CV-ketel
Warm water
CV-ketel
Cv-ketel
Remeha HR (Gas, uit 2021, Eigendom)
Energielabel
C

Parkeergelegenheid

Aanwezig
Ja
Soort parkeergelegenheid
Vergunning
Omschrijving
Parkeervergunning voor 1e auto gratis; parkeren ook mogelijk (abonnement tegen betaling) in parkeergarage in complex.

Garage

Aanwezig
Nee
Meld een probleem met deze woning