Contact met de makelaar

Deze woning is gevonden buiten ons eigen netwerk. Met de knop hieronder kom je direct bij de aanbieder terecht.

Oranjelaan 1

Bekijk kaart
6301 GW Valkenburg (Valkenburg)
€ 295.000 k.k.
  • 70 m²
  • 2 kamers
  • 1991

Samenvatting

  • Deze woning wordt sinds 3 maanden aangeboden door Pooters Makelaardij;
  • De benedenwoning heeft een woonoppervlakte van 70 m² en beschikt over 2 kamers, waarvan 1 slaapkamer;
  • De woning is gebouwd In 1991 en ligt in de buurt Valkenburg in Valkenburg;
  • De woning beschikt onder andere over de volgende voorzieningen: Mechanische ventilatie, Douche, Bergruimte, Toilet.

Beschrijving

DEZE WONING WORDT AANGEBODEN DOOR POOTERS MAKELAARDIJ
Dit voormalige bankgebouw is het afgelopen jaar volledig getransformeerd naar kleinschalig appartementencomplex. Dit appartement bevindt zich op de begane grond met ca.70m² gebruiksoppervlakte wonen en beschikt over een royale open keuken met living, badkamer, berging en 1 slaapkamer. Dit appartement is reeds voorzien van een compleet afgewerkte badkamer. De overige ruimtes bieden nog alle vrijheid om naar eigen smaak en stijl ingericht te worden. Denk dan aan het kiezen van je eigen keuken, vloerafwerking en wandkleuren. Aan de voorzijde van het appartement is nog een terras, hier wordt nog een afscheiding gerealiseerd. Ook beschikt dit appartement over een privéparkeerplaats en gezamenlijke fietsenberging.

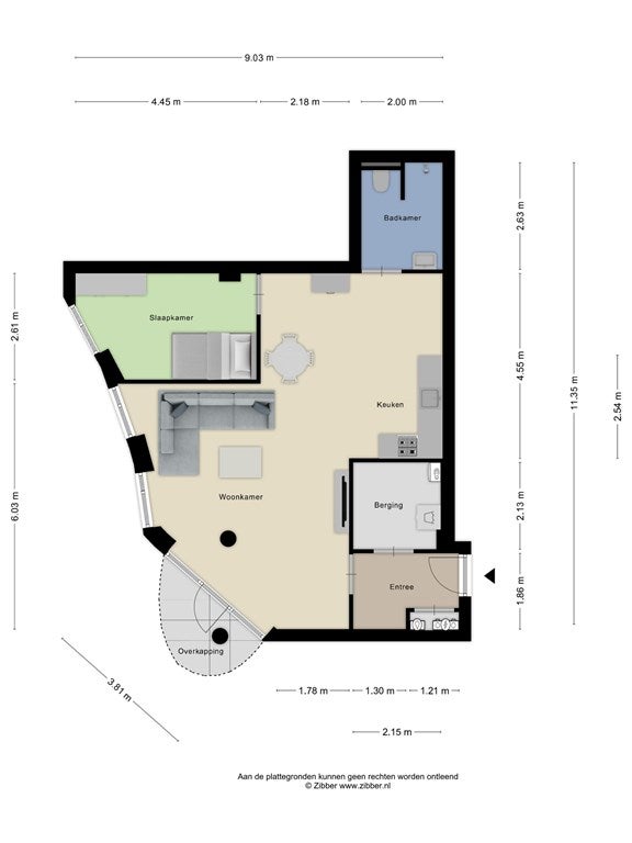
Indeling:
Centrale inkom met brievenbussen. Aan de linkerzijde van de entree bevindt zich de voordeur van Oranjelaan 1. Hal (ca.4m²) die toegang biedt tot de berging, living en de overige ruimtes. De meterkast bevindt zich in de hal en beschikt over een 3 fase aansluiting. Aan de rechterzijde gelegen de royale berging (ca.4m²), hier bevinden zich de cv-ketel, mechanische ventilatie en de wasmachine aansluiting. Vanuit de living met open keuken (ca.43m²) heeft men toegang tot alle overige ruimtes. Aan de linkerzijde van het woongedeelte ligt de slaapkamer (ca.10m²) Ernaast bevindt zich de geheel betegelde badkamer (ca.5m²) die beschikt over een inloopdouche, zwevend toilet en wastafel.

Vanuit de Oranjelaan heeft men via de poort toegang tot de achtergelegen parkeerplaatsen, hier heeft men een vaste parkeerplek. De centrale hal is ook via de achterzijde van het complex (parkeerplaatsen) bereikbaar.

Extra informatie:

  • Gezamenlijke fietsenberging;
  • Vaste parkeerplaats buiten op afgesloten terrein;
  • Meterkast, 3 fase aansluiting;
  • Nefit cv-ketel, eigendom, bouwjaar 2024;
  • Aluminiumkozijnen met HR+ beglazing;
  • Mechanische ventilatie;
  • Energielabel A, geldig tot 24-04-2034:
  • Bij overdracht notaris wordt er €3500,- in mindering gebracht i.v.m. aanschaf keuken;

De Oranjelaan gelegen in het bruisende centrum van Valkenburg aan de Geul op loopafstand van winkels, restaurants, terrassen en het NS-station. Op korte afstand van natuur voor wandel- en fietsuitstapjes. Op korte afstand van de uitvalswegen richting Maastricht, Heerlen en Eindhoven.

Ter bescherming van de belangen van zowel koper als verkoper, wordt uitdrukkelijk gesteld dat een koopovereenkomst met betrekking tot deze onroerende zaak eerst dan tot stand komt nadat koper en verkoper de koopovereenkomst hebben getekend ("schriftelijkheidsvereiste").De termijn die wordt opgenomen voor eventuele (overeengekomen) ontbindende voorwaarden (bv. Financiering) is in de regel 4 tot 6 weken na het sluiten van de mondelinge wilsovereenkomst.

De waarborgsom/bankgarantie is 10% van de koopsom. De koper dient deze 2 weken ná het vervallen van de ontbindende voorwaarden bij de desbetreffende notaris te deponeren.
Koper is te allen tijde gerechtigd voor eigen rekening een bouwkundige keuring te (laten) verrichten dan wel andere adviseurs te raadplegen teneinde een goed inzicht te verkrijgen over de staat van onderhoud.

Bovenstaande vrijblijvende informatie is door Pooters Makelaardij met de nodige zorgvuldigheid samengesteld. Echter aanvaardt Pooters Makelaardij geen enkele aansprakelijkheid voor enige onvolledigheid, onjuistheid of anderszins, dan wel de gevolgen daarvan. Oppervlakten en maten zijn indicatief.

Reageer op tijd op nieuw woningaanbod

Meer dan de helft van de reacties komt binnen 48 uur. Ontvang direct notificaties bij nieuw aanbod en reageer sneller met Pararius+.

Probeer Pararius+ 14 dagen € 0,01

Overdracht

Vraagprijs
€ 295.000 k.k.
Aangeboden sinds
07-10-2025
Status
Beschikbaar
Beschikbaar
In overleg
Onderhoudsstaat
Goed

Oppervlakte en inhoud

Woonoppervlakte
70 m²
Inhoud
233 m³

Bouw

Type woning
Appartement
Soort woning
Benedenwoning, Appartement
Soort bouw
Bestaande bouw
Bouwjaar
1991
Ligging
  • Nabij het openbaar vervoer
  • Nabij een school

Indeling

Aantal kamers
2
Aantal slaapkamers
1
Aantal badkamers
1
Aantal woonlagen
1
Voorzieningen
  • Mechanische ventilatie
  • Douche
  • Bergruimte
  • Toilet

Buitenruimte

Balkon
Niet aanwezig
Dakterras
Niet aanwezig

Energie

Isolatie
Vloerisolatie
Verwarming
CV-ketel
Warm water
CV-ketel
Cv-ketel
Nefit (Gas, uit 2024, Eigendom)
Energielabel
A

Parkeergelegenheid

Aanwezig
Ja
Soort parkeergelegenheid
Betaald

Garage

Aanwezig
Nee
Meld een probleem met deze woning