Contact met de aanbieder

Deze woning is gevonden buiten ons eigen netwerk. Via de knop hieronder ga je direct naar de website van de aanbieder.

Nieuw

Spitsbergen 261505 EH

Bekijk kaart
1505 EH Zaandam (Bomenbuurt)
€ 295.000 k.k.
  • 70 m²
  • 3 kamers
  • 1965

Samenvatting

  • Deze woning wordt sinds 24 februari 2026 aangeboden door Makelaar1;
  • De galerijflat heeft een woonoppervlakte van 70 m² en beschikt over 3 kamers, waarvan 2 slaapkamers;
  • De woning is gebouwd In 1965 en ligt in de buurt Bomenbuurt in Zaandam.

Beschrijving

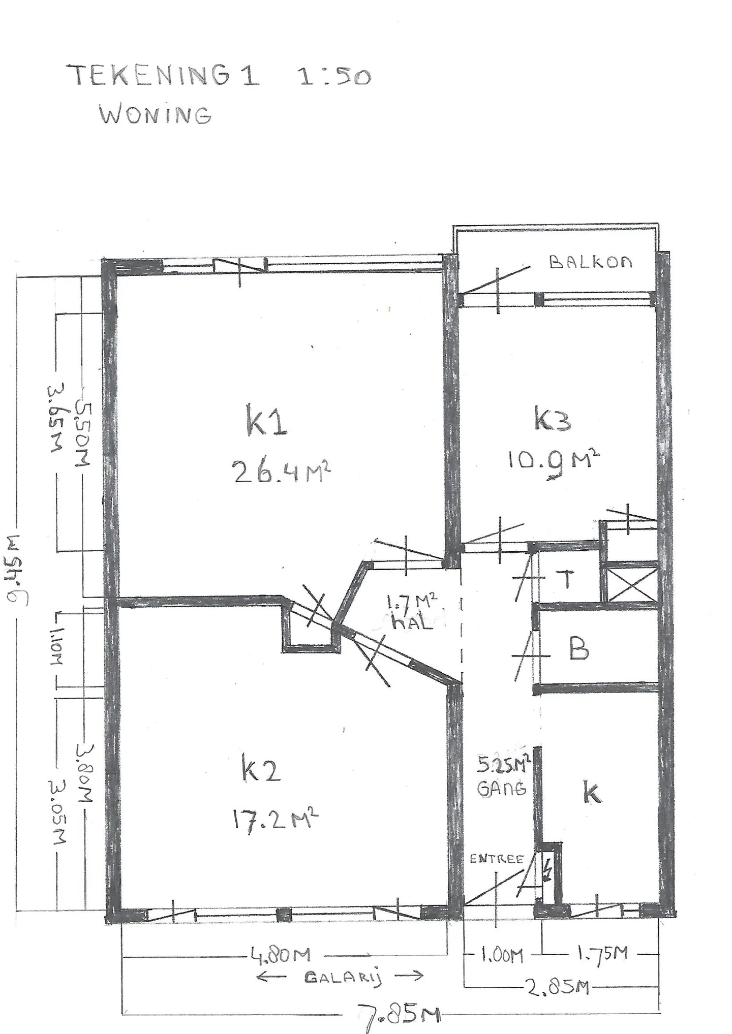
Dit ruime 3-kamerappartement op de derde etage aan de Spitsbergen in Zaandam is een renovatieproject met veel potentieel. De woning beschikt over een royale master bedroom van ongeveer 17 m², een tweede slaapkamer van circa 12 m² met toegang tot het balkon en een lichte woonkamer die met een extra 4 m² is vergroot. Het appartement heeft een balkon op het oosten, perfect voor de ochtendzon, en biedt uitzicht richting het centrum van Zaandam. Onder het complex is een inpandige berging van 6 m² aanwezig. De locatie is ideaal, vlakbij het centrum met winkels en openbaar vervoer. De VvE is professioneel beheerd, met een maandelijkse bijdrage van € 173,63. Dit appartement biedt een uitstekende basis om te moderniseren en te personaliseren.

Overdracht

Vraagprijs
€ 295.000 k.k.
Prijs per m²
€ 4.214
Aangeboden sinds
24-02-2026
Status
Beschikbaar
Beschikbaar
Per direct

Oppervlakte en inhoud

Woonoppervlakte
70 m²

Bouw

Type woning
Appartement
Soort woning
Galerijflat
Soort bouw
Bestaande bouw
Bouwjaar
1965

Indeling

Aantal kamers
3
Aantal slaapkamers
2
Aantal badkamers
1

Buitenruimte

Dakterras
Niet aanwezig

Energie

Energielabel
D
Meld een probleem met deze woning