Contact met de makelaar

Deze woning is gevonden buiten ons eigen netwerk. Met de knop hieronder kom je direct bij de aanbieder terecht.

Ministerlaan

Bekijk kaart
8014 XK Zwolle (Ittersumerlanden)
€ 330.000 k.k.
  • 70 m²
  • 3 kamers
  • 1993

Samenvatting

  • Deze woning wordt sinds 6 weken aangeboden door ZuidZijde Makelaars;
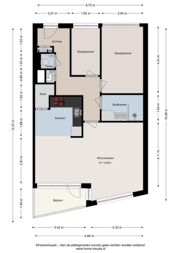
  • De galerijflat heeft een woonoppervlakte van 70 m² en beschikt over 3 kamers, waarvan 2 slaapkamers;
  • De woning is gebouwd In 1993 en ligt in de buurt Ittersumerlanden in Zwolle.

Beschrijving

Overdracht

Vraagprijs
€ 330.000 k.k.
Aangeboden sinds
27-10-2025
Status
Beschikbaar
Beschikbaar
In overleg

Oppervlakte en inhoud

Woonoppervlakte
70 m²

Bouw

Type woning
Appartement
Soort woning
Galerijflat
Soort bouw
Bestaande bouw
Bouwjaar
1993

Indeling

Aantal kamers
3
Aantal slaapkamers
2
Aantal badkamers
1

Buitenruimte

Dakterras
Niet aanwezig

Energie

Energielabel
A
Meld een probleem met deze woning