Woning verhuren

Contact met de makelaar

Deze woning is gevonden buiten ons eigen netwerk. Met de knop hieronder kom je direct bij de aanbieder terecht.

Nieuw

Te huur: Huis Van Boshuizenstraat in Amsterdam

Bekijk kaart
1082 AR (Buitenveldert-Oost)
€ 4.915 per maand
  • 173 m²
  • 6 kamers
  • Gestoffeerd

Beschrijving

Volledig gerenoveerde woning met A label

Niet geschikt voor delers

  • Volledig nieuw verbouwde woning
  • Modern verbouwd
  • Gestoffeerd
  • 3 woonlagen
  • Vloerverwarming op BG
  • Visgraat PVC vloer
  • Gordijnen in alle kamers
  • A energielabel
  • Nieuw geisoleerd dak

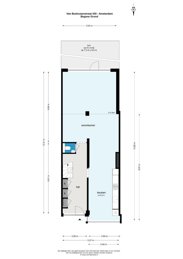
Begane grond:

  • Ruime entree met nieuwe meterkast en garderobe kasten
  • Open keuken met alle apparatuur ingebouwd
  • Toilet op begane grond
  • Ruime woonkamer
  • Dubbele deuren naar achtertuin
  • Vloerverwarming
  • Achtertuin met veel zon

1e verdieping:

  • Moderne badkamer met toilet
  • 2 ruime slaapkamers
  • Grote slaapkamer heeft kasten
  • Balkon aan beide zijde van de woning
  • Waskamer
  • CV ruimte

2e verdieping:

  • Moderne badkamer met ligbad
  • Aparte toilet
  • 3 slaapkamers
  • Balkon aan beide zijde woning

Disclaimer: Deze informatie is met de grootst mogelijke nauwkeurigheid samengesteld, echter kunnen er aan deze advertentie geen rechten worden ontleend.

Overdracht

Huurprijs
€ 4.915 per maand
Aangeboden sinds
01-12-2025
Status
Te huur
Beschikbaar
In overleg
Huurovereenkomst
Onbepaalde tijd
Looptijd
Minimaal 12 maanden
Borg
€ 9.800
Interieur
Gestoffeerd

Oppervlakte en inhoud

Woonoppervlakte
173 m²

Bouw

Type woning
Huis
Soort woning
Tussenwoning (rijtjeshuis), Eengezinswoning
Soort bouw
Bestaande bouw
Bouwjaar
1962
Ligging
Nabij het openbaar vervoer

Indeling

Aantal kamers
6
Aantal slaapkamers
5
Aantal badkamers
2
Aantal woonlagen
3
Voorzieningen
Bad

Buitenruimte

Balkon
Aanwezig
Tuin
Aanwezig
Dakterras
Niet aanwezig

Energie

Energielabel
A

Bergruimte

Schuur/Berging
Niet aanwezig

Parkeergelegenheid

Aanwezig
Ja
Soort parkeergelegenheid
Openbaar

Garage

Aanwezig
Nee

Huurvoorwaarden

Roken toegestaan
Nee
Huisdieren toegestaan
Ja
Inkomenseis
€ 10.000
Meld een probleem met deze woning