Contact met de makelaar

Deze woning is gevonden buiten ons eigen netwerk. Met de knop hieronder kom je direct bij de aanbieder terecht.

Nieuw

Karinthiëstraat 56

Bekijk kaart
1827 EP Alkmaar (Daalmeer-Zuidoost)
€ 425.000 k.k.
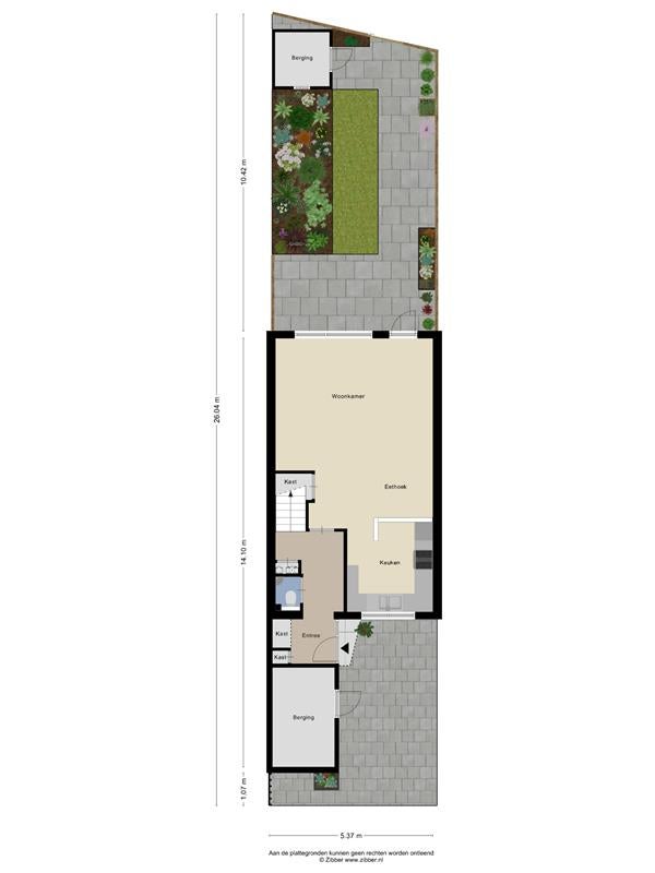
  • 112 m²
  • 7 kamers
  • 1987

Samenvatting

  • Deze woning wordt sinds 21 januari 2026 aangeboden door Hoekstra & van Eck Heerhugowaard;
  • De tussenwoning heeft een woonoppervlakte van 112 m² en beschikt over 7 kamers, waarvan 5 slaapkamers;
  • De woning is gebouwd In 1987 en ligt in de buurt Daalmeer-Zuidoost in Alkmaar.

Beschrijving

Direct online een bezichtiging inplannen? Ga naar onze website!

ONTDEK RUST EN RUIMTE IN EEN KINDVRIENDELIJKE BUURT
Ben je op zoek naar een comfortabele woning waar je prettig kunt wonen en ontspannen na een lange dag? Deze ruime tussenwoning biedt een praktische en fijne basis voor uiteenlopende woonwensen. Met vijf slaapkamers, een tuin op het westen en een eigen oprit is er een goede balans tussen ruimte, privacy en dagelijks gemak. De woning ligt in een rustige, kindvriendelijke buurt en is daardoor zeer geschikt voor gezinnen die waarde hechten aan comfortabel en functioneel wonen. Dankzij energielabel C woon je hier bovendien op een relatief energiezuinige manier.

DE HOOFDKENMERKEN VAN DEZE WONING
* Ruime tussenwoning: Met een woonoppervlakte van circa 112 m² beschikt de woning over voldoende ruimte en een logische, praktische indeling.
* Goed geïsoleerd met energielabel C: Zorgt voor een aangenaam binnenklimaat en beheersbare energiekosten.
* 5 slaapkamers: Geschikt voor een gezin, thuiswerken of het creëren van extra hobby- of bergruimte.
* Kindvriendelijke buurt: Rustige straten, speelgelegenheden in de omgeving en een prettige woonomgeving.
* Tuin op het westen: Fijne buitenruimte met zon in de middag en avond.
* Eigen oprit: Altijd parkeergelegenheid bij de woning.

GENIET VAN RUIMTE, COMFORT EN EEN PRETTIG THUISGEVOEL
Deze tussenwoning is gelegen in een rustige woonwijk en biedt een comfortabele leefomgeving. De woonkamer is licht en ruim opgezet en vormt een fijne plek voor dagelijks gebruik en momenten met familie of bezoek. De afwerking is neutraal, waardoor je de ruimte eenvoudig naar eigen smaak kunt inrichten. De open keuken sluit aan op de woonkamer en biedt voldoende werk- en kastruimte voor dagelijks koken.

De achtertuin ligt op het westen, wat betekent dat je hier vooral in de middag en avond van de zon kunt genieten. Een prettige plek om buiten te zitten, te eten of te ontspannen na een werk- of schooldag.

Op de eerste en tweede verdieping bevinden zich in totaal vijf slaapkamers. Deze ruimtes zijn flexibel in te delen en geschikt voor verschillende woonwensen, zoals slaapkamers voor kinderen, een werkplek aan huis of extra opbergruimte.

Ook op het gebied van duurzaamheid is de woning praktisch ingericht. De goede isolatie en het energielabel C dragen bij aan een comfortabel woonklimaat en een efficiënter energieverbruik. De indeling is logisch en maakt goed gebruik van de beschikbare ruimte.

De ligging is prettig en functioneel. In de directe omgeving vind je onder andere scholen, speeltuinen, winkels en openbaar vervoer. Dit maakt de woning geschikt voor wie op zoek is naar een rustige woonplek met dagelijkse voorzieningen binnen handbereik. Een fijne basis voor comfortabel en zorgeloos wonen.

DE HIGHLIGHTS UITGELICHT
* Bouwjaar: 1987
* Woonoppervlakte: 112 m2
* Perceeloppervlakte: 136 m2
* Prima geïsoleerd, energielabel C
* Eigen oprit en ruime berging
* Vijf slaapkamers
* Oplevering in overleg

Prik deze woning vast op je verlanglijstje of plan vandaag nog een bezichtiging. Wacht niet te lang, want deze parel smaakt gegarandeerd naar meer!

Overdracht

Vraagprijs
€ 425.000 k.k.
Aangeboden sinds
21-01-2026
Status
Beschikbaar
Beschikbaar
In overleg

Oppervlakte en inhoud

Woonoppervlakte
112 m²
Perceeloppervlakte
136 m²
Inhoud
421 m³

Bouw

Type woning
Huis
Soort woning
Tussenwoning (rijtjeshuis), Eengezinswoning
Soort bouw
Bestaande bouw
Bouwjaar
1987

Indeling

Aantal kamers
7
Aantal slaapkamers
5

Buitenruimte

Balkon
Niet aanwezig
Tuin
Aanwezig
Dakterras
Niet aanwezig

Energie

Energielabel
C

Garage

Aanwezig
Nee
Meld een probleem met deze woning