Contact met de makelaar

Deze woning is gevonden buiten ons eigen netwerk. Met de knop hieronder kom je direct bij de aanbieder terecht.

Verkocht onder voorbehoud

Krasseurstraat 207

Bekijk kaart
1033 DV Amsterdam (Tuindorp Oostzaan)
€ 779.500 k.k.
  • 120 m²
  • 5 kamers
  • 1990

Samenvatting

  • Deze woning wordt sinds 7 weken aangeboden door gewoon SIMPEL. makelaars;
  • De tussenwoning heeft een woonoppervlakte van 120 m² en beschikt over 5 kamers, waarvan 4 slaapkamers;
  • De woning is gebouwd In 1990 en ligt in de buurt Tuindorp Oostzaan in Amsterdam;
  • De woning beschikt onder andere over de volgende voorzieningen: Kabel TV, Dakkapel, Glasvezelaansluiting, Internetaansluiting, Mechanische ventilatie, Buitenzonwering, Douche, Dakraam, Toilet.

Beschrijving

Welkom bij Krasseurstraat 207 in Amsterdam – met afgekochte erfpacht!

In het bruisende hart van Amsterdam Noord, op de Krasseurstraat 207, staat deze verrassend ruime en volledig gemoderniseerde eengezinswoning te koop. Met een woonoppervlakte van circa 120 m² verdeeld over drie verdiepingen, biedt dit huis de perfecte combinatie van comfort, ruimte en duurzaamheid voor het moderne gezin.

Omgeving
De Krasseurstraat 207 is gelegen in het opkomende en dynamische Amsterdam Noord, een stadsdeel dat de afgelopen jaren een indrukwekkende transformatie heeft ondergaan. Deze straat in Tuindorp Oostzaan (nabij NDSM) biedt een perfecte mix van stedelijke vernieuwing en authentieke Amsterdamse charme.

Qua bereikbaarheid is de locatie uitstekend. Met de gratis pontverbinding bent u in 12 minuten aan de overkant van het IJ, midden in het centrum van Amsterdam. De Noord/Zuidlijn (metrolijn 52) heeft haltes in Noord, waardoor u snel in het centrum of op Amsterdam Zuid bent. Voor automobilisten is de ringweg A10 gemakkelijk te bereiken, wat zorgt voor een snelle verbinding met andere delen van de stad en de regio.

De woning aan de Krasseurstraat ligt aan een rustig hofje met een kindvriendelijke speelplaats voor de deur. De wijk kent een mix van jonge gezinnen en veel oorspronkelijke bewoners, wat zorgt voor een levendige buurt.
Er zijn verschillende scholen en kinderopvangcentra in de omgeving, wat de buurt zeer geschikt maakt voor gezinnen.

Deze woning op Krasseurstraat 207 biedt dus niet alleen een prachtig gemoderniseerd huis, maar ook een diverse en goed geconnecteerde omgeving die het beste van Amsterdam Noord samenbrengt. U geniet hier van de rust van een woonwijk, met alle voordelen van de stad binnen handbereik.

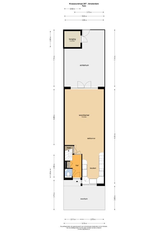
Indeling
Begane grond
Treed binnen in de ruime entree met garderobe en toiletruimte. De volledig gestucte woonkamer is het kloppende hart van het huis, in 2001 met 3 meter uitgebouwd door een gerenommeerde aannemer. Geniet van de overvloedige lichtinval en de aangename warmte van de vloerverwarming, eveneens in 2001 aangelegd.
De open U-vormige keuken uit hetzelfde jaar is een lust voor het oog en praktisch ingericht met grote ladekasten, een apothekerskast en een hoekkast met carrousel. In 2016 is een nieuwe inductiekookplaat geïnstalleerd en in 2023 een nieuwe oven, waardoor koken een waar genoegen wordt. Tevens is in 2023 een luxe Luxaflex dubbele hordeur bij de openslaande deuren naar de tuin geplaatst!

Eerste verdieping
Deze etage biedt plaats aan drie ruime slaapkamers en de in 2021 volledig vernieuwde badkamer. Deze moderne badkamer beschikt over een ruime inloopdouche en een tweede toilet, wat het comfort voor het hele gezin verhoogt.
De drie grote op maat gemaakte inbouwkasten geven veel kastruimte.

Tweede verdieping
De zolderverdieping is in 1996 uitgebreid met een onderhoudsvrije dakkapel voorzien van kunststof kozijn. In 2021 zijn hier drie Velux kunststof dakvensters geplaatst, die voor overvloedige lichtinval en ventilatie zorgen. Deze ruimte is perfect als extra slaapkamer, thuiskantoor of hobbyruimte. Ook hier bieden twee grote inbouwkasten veel opbergruimte.

Duurzaamheid
Deze woning is een toonbeeld van duurzaam wonen in Amsterdam. Met het nieuw toegekende Energielabel A in 2025 behoort dit huis tot de meest energiezuinige woningen in de buurt! De nieuwe Intergas HR-ketel 36/30A, geïnstalleerd in 2025, zorgt voor een efficiënte en milieuvriendelijke verwarming. De vloerverwarming op de begane grond draagt bij aan een gelijkmatige warmteverdeling en energiebesparing. Daarnaast zorgen de rolluiken op de eerste verdieping en de verduisterende rolgordijnen in de Velux dakvensters voor uitstekende isolatie. Met deze energiebesparende maatregelen geniet u niet alleen van een comfortabel binnenklimaat, maar draagt u ook bij aan een duurzamere toekomst.

Tuin
De woning beschikt over een verzorgde voor- en achtertuin. De voortuin biedt tevens ruimte aan 2 auto's. De achtertuin is een oase van rust, perfect voor ontspanning en buitenleven. In 2024 is een nieuw elektrisch zonnescherm geïnstalleerd, ideaal voor zomerse dagen. Er is een ruime schuur voorzien van een nieuwe deur in 2025.

Bijzonderheden

  • Vraagprijs: € 779.500 k.k.
  • Eeuwigdurende erfpacht afgekocht in 2020
  • Energielabel A (2025)
  • Kindvriendelijke speelplaats voor de deur (woonerf)
  • Ruime woonkamer met vloerverwarming en 3 meter uitbouw
  • Moderne open keuken met hoogwaardige apparatuur
  • Luxe badkamer (2021) met inloopdouche en tweede toilet
  • Zolderverdieping is perfect als extra slaapkamer, thuiskantoor of hobbyruimte

Met zijn gunstige ligging, duurzame aanpassingen en ruime indeling is dit het perfecte huis voor gezinnen die op zoek zijn naar een zorgeloze woonervaring in Amsterdam.

Ben jij ook enthousiast? Neem vandaag nog contact op voor een bezichtiging!

Overdracht

Vraagprijs
€ 779.500 k.k.
Aangeboden sinds
28-11-2025
Status
Verkocht onder voorbehoud
Beschikbaar
In overleg
Onderhoudsstaat
Zeer goed

Oppervlakte en inhoud

Woonoppervlakte
120 m²
Perceeloppervlakte
131 m²
Inhoud
406 m³

Bouw

Type woning
Huis
Soort woning
Tussenwoning (rijtjeshuis), Eengezinswoning
Soort bouw
Bestaande bouw
Bouwjaar
1990
Ligging
  • Aan een rustige weg
  • In een woonwijk
  • Nabij het openbaar vervoer
  • Nabij een winkelcentrum

Indeling

Aantal kamers
5
Aantal slaapkamers
4
Aantal badkamers
1
Aantal woonlagen
3
Voorzieningen
  • Kabel TV
  • Dakkapel
  • Glasvezelaansluiting
  • Internetaansluiting
  • Mechanische ventilatie
  • Buitenzonwering
  • Douche
  • Dakraam
  • Toilet

Buitenruimte

Balkon
Niet aanwezig
Tuin
Aanwezig (35 m², gelegen op het zuidoosten)
Tuinbeschrijving
achtertuin
Achterom
Aanwezig
Dakterras
Niet aanwezig

Energie

Isolatie
Dubbele beglazing, Dakisolatie, Muurisolatie
Verwarming
CV-ketel, Gedeeltelijke vloerverwarming
Warm water
CV-ketel
Cv-ketel
HR 36-30A (Gas, uit 2025, Eigendom)
Energielabel
A

Bergruimte

Schuur/Berging
Aanwezig

Parkeergelegenheid

Aanwezig
Ja
Soort parkeergelegenheid
Openbaar
Meld een probleem met deze woning