Contact met de aanbieder

Deze woning is gevonden buiten ons eigen netwerk. Via de knop hieronder ga je direct naar de website van de aanbieder.

Nieuw

Diponegorostraat 72

Bekijk kaart
1087 VZ Amsterdam (IJburg-Oost)
€ 1.250.000 k.k.
  • 241 m²
  • 7 kamers
  • 2022

Samenvatting

  • Deze woning wordt sinds 2 maart 2026 aangeboden door Vondel Makelaars;
  • De tussenwoning heeft een woonoppervlakte van 241 m² en beschikt over 7 kamers, waarvan 5 slaapkamers;
  • De woning is gebouwd In 2022 en ligt in de buurt IJburg-Oost in Amsterdam.

Beschrijving

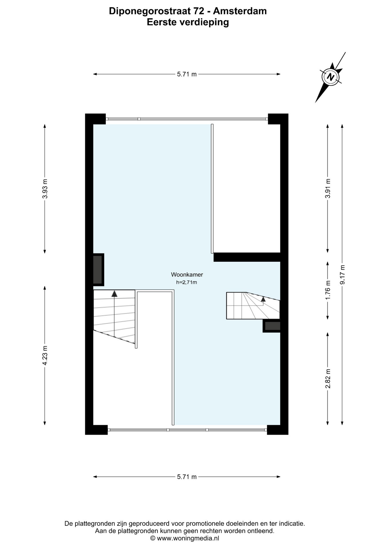
Dit energiezuinige en ruime herenhuis op Centrumeiland in IJburg, met een oppervlakte van circa 241 m² en een perceel van ongeveer 162 m², biedt alles wat u nodig heeft. Met vijf slaapkamers en twee badkamers is er voldoende ruimte voor iedereen. De begaande grond heeft een royale living die het hart van het huis vormt, met een tuin op het zuidoosten die volop mogelijkheden biedt. Op de eerste verdieping vindt u een open ruimte die als lounge of werkruimte kan dienen. De master bedroom heeft plek voor een groot bed en een kledingkast. De derde verdieping heeft twee slaapkamers met een extra badkamer. Het dakterras van 15 m² biedt uitzicht over water en stad. De woning is duurzaam en volledig geïsoleerd met vloerverwarming en zonnepanelen.

Overdracht

Vraagprijs
€ 1.250.000 k.k.
Prijs per m²
€ 5.187
Aangeboden sinds
02-03-2026
Status
Beschikbaar
Beschikbaar
Per direct

Oppervlakte en inhoud

Woonoppervlakte
241 m²
Perceeloppervlakte
162 m²

Bouw

Type woning
Huis
Soort woning
Tussenwoning (rijtjeshuis), Eengezinswoning
Soort bouw
Bestaande bouw
Bouwjaar
2022

Indeling

Aantal kamers
7
Aantal slaapkamers
5
Aantal badkamers
2

Buitenruimte

Dakterras
Niet aanwezig

Energie

Energielabel
A+++
Meld een probleem met deze woning