Contact met de makelaar

Deze woning is gevonden buiten ons eigen netwerk. Met de knop hieronder kom je direct bij de aanbieder terecht.

Verkocht onder voorbehoud

Govert Flinckstraat 2

Bekijk kaart
7312 RN Apeldoorn (Orden)
€ 400.000 k.k.
  • 99 m²
  • 4 kamers
  • 1963

Samenvatting

  • Deze woning wordt sinds 7 weken aangeboden door IQ Makelaars Apeldoorn;
  • De hoekwoning heeft een woonoppervlakte van 99 m² en beschikt over 4 kamers, waarvan 3 slaapkamers;
  • De woning is gebouwd In 1963 en ligt in de buurt Orden in Apeldoorn;
  • De woning beschikt onder andere over de volgende voorzieningen: Glasvezelaansluiting, Rookkanaal, Internetaansluiting, Douche, Bergruimte, Toilet.

Beschrijving

Govert Flinckstraat 2 Apeldoorn

Op een mooie en rustige locatie gelegen hoekwoning met carport en ruime tuin.
De woning ligt op steenworp afstand van de bossen en het vernieuwde Ordenplein met een keur aan winkelaanbod. Ook vele sportverenigingen, scholen en de uitvalswegen zijn eenvoudig te bereiken, terwijl het centrum en het station van Apeldoorn op slechts enkele fietsminuten liggen!
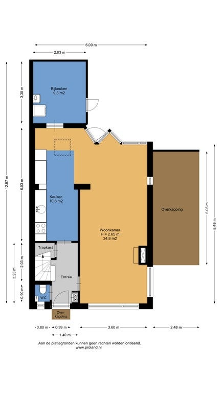
Indeling:
Begane grond: entree/hal, meterkast, toilet en kelderkast en trap naar de eerste verdieping. Ruime uitgebouwde woonkamer met allesbrander en veel lichtinval. Keuken met diverse apparatuur en aansluitend de bijkeuken met aansluiting voor de wasapparatuur.
1e verdieping: overloop, drie slaapkamers en een doucheruimte met wastafel en tweede toilet (Sanibroyeur)
2e verdieping: middels een vlizotrap te bereiken bergzolder.
Naast de woning is een praktische carport geplaatst zodat je de auto op eigen terrein en beschut kunt parkeren. De achtertuin is royaal met veel privacy en beschikt over een vijver. Door de prettige ligging op het zuidwesten is er altijd een plekje te vinden in de zon of schaduw.
Bijzonderheden:
• Bouwjaar: 1963
• Woonoppervlakte: 99 m2
• Perceel: 321 m2
• Energielabel D
• Muurisolatie
• Rustige buurt en een fijne woonomgeving
• Alle voorzieningen nabij gelegen
• Mooie woning die uitnodigt tot een frisse, eigentijdse herinrichting
Kortom: een woning met volop mogelijkheden op een fantastische locatie. Hier kunt u uw droomhuis realiseren in een groene en rustige omgeving, met alle voorzieningen binnen handbereik!
Vraagprijs: € 400.000,- k.k.
Aanvaarding: in overleg

Overdracht

Vraagprijs
€ 400.000 k.k.
Aangeboden sinds
12-12-2025
Status
Verkocht onder voorbehoud
Beschikbaar
In overleg
Onderhoudsstaat
Goed

Oppervlakte en inhoud

Woonoppervlakte
99 m²
Perceeloppervlakte
321 m²
Inhoud
403 m³

Bouw

Type woning
Huis
Soort woning
Hoekwoning, Eengezinswoning
Soort bouw
Bestaande bouw
Bouwjaar
1963
Ligging
  • Aan een rustige weg
  • In een woonwijk
  • In bosrijke omgeving
  • Nabij het openbaar vervoer
  • Nabij een school

Indeling

Aantal kamers
4
Aantal slaapkamers
3
Aantal badkamers
1
Aantal woonlagen
3
Voorzieningen
  • Glasvezelaansluiting
  • Rookkanaal
  • Internetaansluiting
  • Douche
  • Bergruimte
  • Toilet

Buitenruimte

Balkon
Niet aanwezig
Tuin
Aanwezig (143 m², gelegen op het zuidwesten)
Tuinbeschrijving
achtertuin
Achterom
Niet aanwezig
Dakterras
Niet aanwezig

Energie

Isolatie
Spouwmuurisolatie, Gedeeltelijk dubbele beglazing, Muurisolatie
Verwarming
CV-ketel
Warm water
CV-ketel
Cv-ketel
Remeha Avanta (Gas, uit 2017, Eigendom)
Energielabel
D

Parkeergelegenheid

Aanwezig
Ja
Soort parkeergelegenheid
Openbaar
Meld een probleem met deze woning