Contact met de makelaar

Deze woning is gevonden buiten ons eigen netwerk. Met de knop hieronder kom je direct bij de aanbieder terecht.

Verkocht onder voorbehoud

Tienwoningenweg 18

Bekijk kaart
7312 DM Apeldoorn (Driehuizen)
€ 515.000 k.k.
  • 91 m²
  • 5 kamers
  • 1929

Samenvatting

  • Deze woning wordt sinds 7 weken aangeboden door IQ Makelaars Apeldoorn;
  • De vrijstaande woning heeft een woonoppervlakte van 91 m² en beschikt over 5 kamers, waarvan 4 slaapkamers;
  • De woning is gebouwd In 1929 en ligt in de buurt Driehuizen in Apeldoorn;
  • De woning beschikt onder andere over de volgende voorzieningen: Glasvezelaansluiting, Internetaansluiting, Buitenzonwering, Douche, Toilet.

Beschrijving

TIENWONINGENWEG 18 APELDOORN

Op een mooie en gewilde locatie gelegen, karakteristieke vrijstaande jaren dertig woning met garage en ruime tuin!
U woont hier aan een rustige straat met de privacy van een diepe achtertuin, terwijl u om de hoek de levendige Asselsestraat binnen handbereik heeft. Hier vindt u supermarkten, speciaalzaken en gezellige eetgelegenheden, terwijl u met enkele minuten fietsen al in het centrum en bij het station van Apeldoorn bent.
Daarnaast ligt deze locatie centraal ten opzichte van scholen, zorgaanbieders, sportfaciliteiten, de Veluwse bossen en de uitvalswegen richting de snelwegen. Het is dan ook niet verwonderlijk dat de wijk Driehuizen zo’n geliefde plek is om te wonen.
Achter de keurig onderhouden buitenzijde schuilt een woning die van binnen uitnodigt tot een frisse, eigentijdse herinrichting—en dankzij de prima uitbouwmogelijkheden biedt zij volop ruimte om uw droomwoning volledig naar eigen inzicht vorm te geven.
Indeling:
Begane grond: entree/hal, ruime kelder, toilet en de trap naar de eerste verdieping. Ruime woonkamer met erker en voorzien van een massief houten vloer, een praktische kantoor/werkkamer met toegang tot de eerste badkamer met wasmachine aansluiting. Keuken met diverse apparatuur en aansluitend de bijkeuken met vloerverwarming en de deur naar de royale tuin.
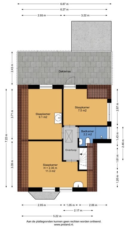
1e verdieping: overloop met toegang naar de drie slaapkamers en de tweede badkamer met tweede toilet. Aan de voorzijde ligt de ruime hoofdslaapkamer met wastafel en aan de achterzijde de twee andere slaapkamers, waarvan één met wastafel. De andere heeft een dakkapel en biedt toegang tot het plat dak.
2e verdieping: via een vlizotrap bereikbare vliering met de c.v. opstelling en veel bergruimte.
De royale achtertuin heeft, omdat er geen achtergelegen woningen zijn, volop privacy. Naast de stenen garage (met elektrische garagedeur) zijn er nog extra bergingen en een rietgedekt prieel. In de tuin zijn meerdere fruitbomen te vinden, waaronder diverse appelsoorten, peer, perzik, pruim, kers, druif en diverse bessenstruiken.

Overige kenmerken:
• Karakteristieke jaren dertig woning met fraaie glas in lood ramen
• Zeer degelijk gebouwd met mooi siermetselwerk in de gevels
• Woonoppervlakte: 92 m2
• Perceeloppervlakte: 445 m2
• Bouwjaar: 1929
• Energielabel: D
• 8 zonnepanelen
• Muurisolatie
• Beneden grotendeels dubbel glas en triple glas
• Op de eerste verdieping geheel enkel glas
• Royale stenen garage met vliering en smeerput

Aanvaarding in overleg

TIENWONINGENWEG 18 APELDOORN

Located in a beautiful and desirable location, this charming detached 1930s house features a garage and a spacious garden!

You'll live on a quiet street with the privacy of a deep back garden, while the lively Asselsestraat is just around the corner. Here you'll find supermarkets, specialty stores, and inviting restaurants, while the city center and Apeldoorn train station are just a few minutes' bike ride away.
Furthermore, this location is centrally located near schools, healthcare providers, sports facilities, the Veluwe forests, and highway access. It's no wonder the Driehuizen neighborhood is such a popular place to live.
Behind the well-maintained exterior lies a home that invites a fresh, contemporary interior—and thanks to excellent expansion options, it offers plenty of space to fully customize your dream home.
Layout:
Ground floor: entrance/hall, spacious cellar, toilet, and stairs to the first floor. Spacious living room with a bay window and solid wood flooring, a practical office/study with access to the first bathroom with a washing machine connection. Kitchen with various appliances and adjoining utility room with underfloor heating and a door to the spacious garden.
First floor: landing with access to the three bedrooms and the second bathroom with a second toilet. At the front is the spacious master bedroom with a washbasin, and at the rear are the two other bedrooms, one of which also has a washbasin. The other has a dormer window and provides access to the flat roof.
Second floor: Attic accessible via a loft ladder, housing the central heating system and ample storage space.
The spacious back garden offers plenty of privacy because there are no houses behind it. In addition to the brick garage (with electric garage door), there are additional storage areas and a thatched gazebo. The garden boasts several fruit trees, including various apple varieties, pears, peaches, plums, cherries, grapes, and various berry bushes.

Other features:
• Characteristic 1930s house with beautiful stained glass windows
• Very solidly built with attractive decorative brickwork in the facades
• Living area: 92 m²
• Plot area: 445 m²
• Year built: 1929
• Energy label: D
• 8 solar panels
• Wall insulation
• Mostly double and triple glazing downstairs
• Fully single-glazed on the first floor
• Spacious brick garage with attic and grease pit

Overdracht

Vraagprijs
€ 515.000 k.k.
Aangeboden sinds
12-12-2025
Status
Verkocht onder voorbehoud
Beschikbaar
In overleg
Onderhoudsstaat
Redelijk

Oppervlakte en inhoud

Woonoppervlakte
91 m²
Perceeloppervlakte
445 m²
Inhoud
380 m³

Bouw

Type woning
Huis
Soort woning
Vrijstaande woning, Eengezinswoning
Soort bouw
Bestaande bouw
Bouwjaar
1929
Ligging
  • Aan een rustige weg
  • In een woonwijk
  • Nabij het openbaar vervoer
  • Nabij een school

Indeling

Aantal kamers
5
Aantal slaapkamers
4
Aantal badkamers
2
Aantal woonlagen
4
Voorzieningen
  • Glasvezelaansluiting
  • Internetaansluiting
  • Buitenzonwering
  • Douche
  • Toilet

Buitenruimte

Balkon
Niet aanwezig
Tuin
Aanwezig (252 m², gelegen op het zuidwesten)
Tuinbeschrijving
achtertuin
Achterom
Aanwezig
Dakterras
Niet aanwezig

Energie

Isolatie
Gedeeltelijk dubbele beglazing, Muurisolatie
Verwarming
CV-ketel
Warm water
CV-ketel
Cv-ketel
remeha avanta (Gas, uit 2019, Eigendom)
Energielabel
D

Bergruimte

Schuur/Berging
Aanwezig

Parkeergelegenheid

Aanwezig
Ja
Soort parkeergelegenheid
Openbaar

Garage

Aanwezig
Ja
Meld een probleem met deze woning