Contact met de aanbieder

Deze woning is gevonden buiten ons eigen netwerk. Via de knop hieronder ga je direct naar de website van de aanbieder.

Nieuw

Frederik van Eedenstraat 11

Bekijk kaart
6824 PK Arnhem (Paasberg)
€ 550.000 k.k.
  • 107 m²
  • 6 kamers
  • 1933

Samenvatting

  • Deze woning wordt sinds 2 maart 2026 aangeboden door Moniek Koenders Makelaardij;
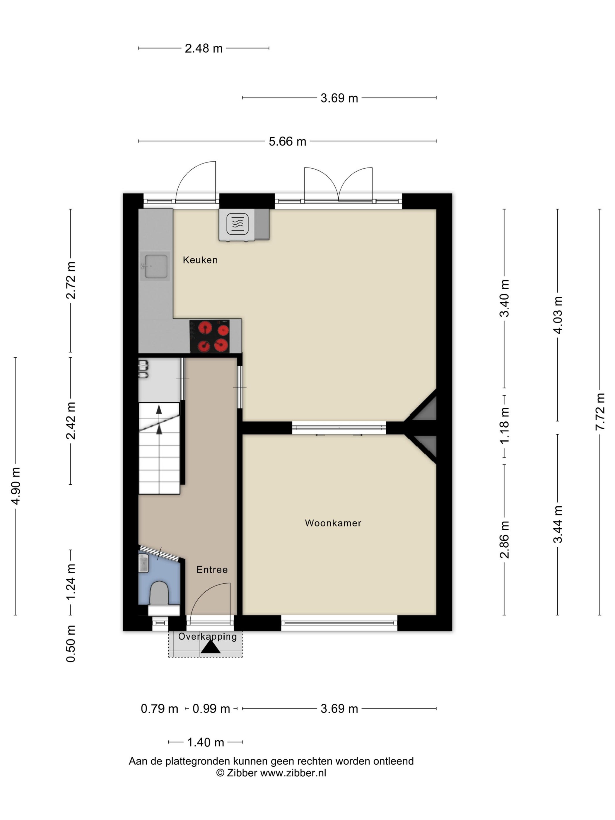
  • De tussenwoning heeft een woonoppervlakte van 107 m² en beschikt over 6 kamers, waarvan 4 slaapkamers;
  • De woning is gebouwd In 1933 en ligt in de buurt Paasberg in Arnhem.

Beschrijving

Frederik van Eedenstraat 11 in Arnhem biedt een instapklare woning op De Paasberg, met authentieke details, veel privacy en een zonnige, diepe tuin. Het huis is recent gerenoveerd en beschikt over een luxe open keuken en voldoende ruimte om te dineren. De gezellige woonkamer heeft klassieke elementen en moderne schuifdeuren die toegang geven tot het terras. Op de eerste verdieping zijn drie ruime slaapkamers en een nette badkamer met inloopdouche. De tweede verdieping herbergt een verrassende vierde slaapkamer met veel lichtinval. Buiten geniet je van een ruime achtertuin met een overkapping en een stenen schuur. De ligging is ideaal, dichtbij scholen, onder andere het bos, en met goede parkeermogelijkheden.

Overdracht

Vraagprijs
€ 550.000 k.k.
Prijs per m²
€ 5.140
Aangeboden sinds
02-03-2026
Status
Beschikbaar
Beschikbaar
Per direct

Oppervlakte en inhoud

Woonoppervlakte
107 m²
Perceeloppervlakte
205 m²

Bouw

Type woning
Huis
Soort woning
Tussenwoning (rijtjeshuis), Eengezinswoning
Soort bouw
Bestaande bouw
Bouwjaar
1933

Indeling

Aantal kamers
6
Aantal slaapkamers
4
Aantal badkamers
1

Buitenruimte

Dakterras
Niet aanwezig

Energie

Energielabel
B
Meld een probleem met deze woning