Contact met de makelaar

Deze woning is gevonden buiten ons eigen netwerk. Met de knop hieronder kom je direct bij de aanbieder terecht.

Nieuw

Zaagmolenweg 10

Bekijk kaart
5741 LT Beek en Donk (Beek)
€ 395.000 k.k.
  • 147 m²
  • 5 kamers
  • 1978

Samenvatting

  • Deze woning wordt sinds 29 januari 2026 aangeboden door Van den Hurk Makelaars;
  • De tussenwoning heeft een woonoppervlakte van 147 m² en beschikt over 5 kamers, waarvan 4 slaapkamers;
  • De woning is gebouwd In 1978 en ligt in de buurt Beek in Beek en Donk.

Beschrijving

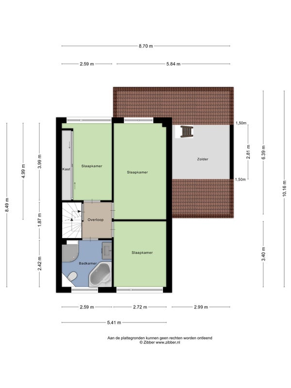
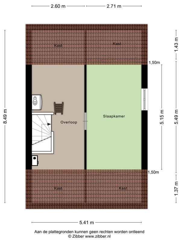
Deze ruime 2/1 kapwoning biedt een lichte living, een open keuken en een inpandige garage met een extra zolder. Met 3 slaapkamers op de 1e verdieping en een zolderkamer op de 2e verdieping, biedt deze woning veel ruimte. De achtertuin, met een tuinhuis, strekt zich uit over de volledige breedte van het perceel van 275 m². De woning heeft een inhoud van 551 m³ en een gebruiksoppervlakte van 147 m². In de hal vindt u een vernieuwde meterkast, een Z-vormige woonkamer met veel lichtinval en een open keuken uitgerust met moderne apparaten. De 1e verdieping omvat een ruime badkamer met ligbad en douche, en de 2e verdieping biedt ruimte voor wasapparatuur. De tuin is fraai aangelegd en de woning beschikt over zonnepanelen. Gelegen nabij het Heuvelplein met winkels en voorzieningen.

Overdracht

Vraagprijs
€ 395.000 k.k.
Aangeboden sinds
29-01-2026
Status
Beschikbaar
Beschikbaar
Per direct

Oppervlakte en inhoud

Woonoppervlakte
147 m²
Perceeloppervlakte
275 m²

Bouw

Type woning
Huis
Soort woning
Tussenwoning (rijtjeshuis), Eengezinswoning
Soort bouw
Bestaande bouw
Bouwjaar
1978

Indeling

Aantal kamers
5
Aantal slaapkamers
4
Aantal badkamers
1

Buitenruimte

Dakterras
Niet aanwezig

Energie

Energielabel
B
Meld een probleem met deze woning