Contact met de makelaar

Deze woning is gevonden buiten ons eigen netwerk. Met de knop hieronder kom je direct bij de aanbieder terecht.

Nieuw

Fabriekstraat 10

Bekijk kaart
4611 HH Bergen op Zoom (Havenkwartier)
€ 339.500 k.k.
  • 95 m²
  • 5 kamers
  • 1890

Samenvatting

  • Deze woning wordt sinds 27 januari 2026 aangeboden door Baas Makelaars;
  • De tussenwoning heeft een woonoppervlakte van 95 m² en beschikt over 5 kamers, waarvan 4 slaapkamers;
  • De woning is gebouwd In 1890 en ligt in de buurt Havenkwartier in Bergen op Zoom.

Beschrijving

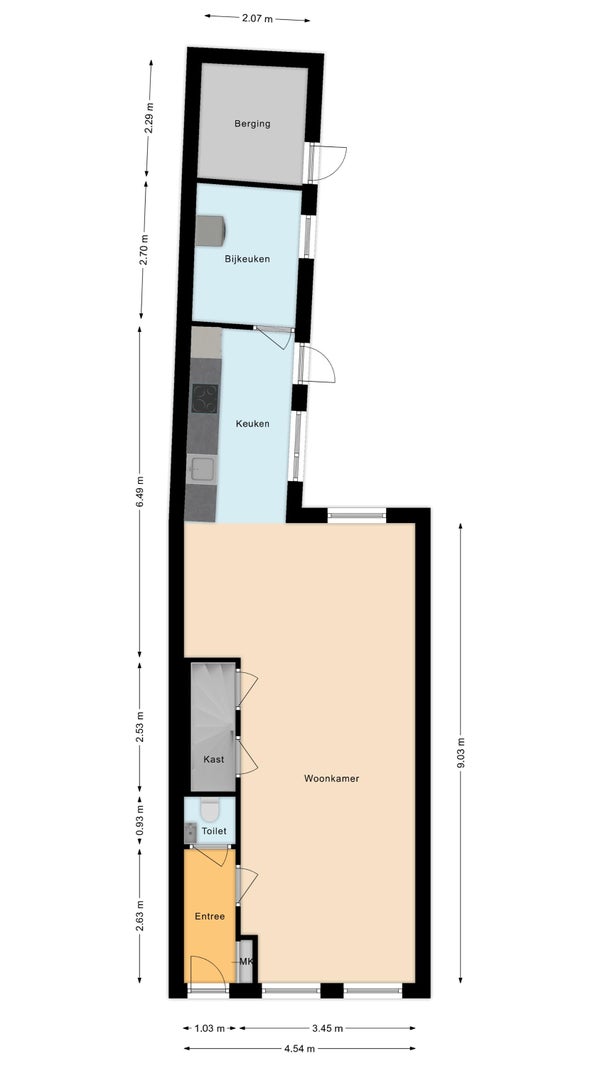
Deze woning, gebouwd in 1890 en gelegen aan een rustige weg in een woonwijk, biedt een totale oppervlakte van 88 m² en een woonoppervlakte van 95 m². Met een inhoud van 394 m³ beschikt de woning over vijf kamers, waaronder vier slaapkamers en één badkamer. De badkamer is uitgerust met een ligbad, douche en wastafel. Het huis is volledig geïsoleerd en verwarmd met een cv-ketel, wat bijdraagt aan het energielabel C. Buiten is er een normale achtertuin op het noorden en een aangebouwde stenen schuur met elektra. Openbaar parkeren is mogelijk, en er zijn parkeervergunningen beschikbaar. Met een goede tot uitstekende onderhoudstoestand is deze woning geschikt voor permanente bewoning.

Overdracht

Vraagprijs
€ 339.500 k.k.
Aangeboden sinds
27-01-2026
Status
Beschikbaar
Beschikbaar
Per direct

Oppervlakte en inhoud

Woonoppervlakte
95 m²
Perceeloppervlakte
88 m²

Bouw

Type woning
Huis
Soort woning
Tussenwoning (rijtjeshuis), Eengezinswoning
Soort bouw
Bestaande bouw
Bouwjaar
1890

Indeling

Aantal kamers
5
Aantal slaapkamers
4
Aantal badkamers
1

Buitenruimte

Dakterras
Niet aanwezig

Energie

Energielabel
C
Meld een probleem met deze woning