Contact met de makelaar

Deze woning is gevonden buiten ons eigen netwerk. Met de knop hieronder kom je direct bij de aanbieder terecht.

Nieuw

Roerdomp

Bekijk kaart
4822 RN Breda (Muizenberg)
€ 699.000 k.k.
  • 133 m²
  • 6 kamers
  • 1991

Samenvatting

  • Deze woning wordt sinds 9 januari 2026 aangeboden door Makelaarshuys Geraldine;
  • De tussenwoning heeft een woonoppervlakte van 133 m² en beschikt over 6 kamers, waarvan 5 slaapkamers;
  • De woning is gebouwd In 1991 en ligt in de buurt Muizenberg in Breda.

Beschrijving

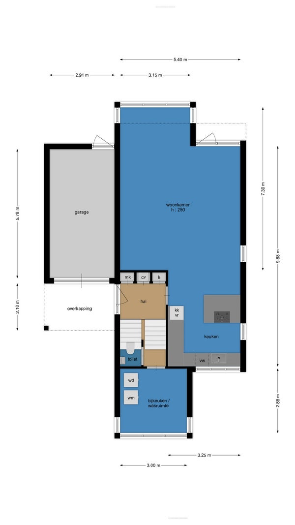
Deze luxe, instapklare vrijstaande woning in de groene wijk Paradijs (Haagse Beemden) is ideaal voor gezinnen. Het split-level huis heeft een woonoppervlak van 133 m² op een perceel van 299 m². De begane grond is recent verbouwd, met een open keuken en woonkamer, sfeervolle serre en toegang tot de zonnige achtertuin, die veel privacy biedt. De luxe keuken is uitgerust met hoogwaardige Miele apparaten. Beneden bevindt zich een multifunctionele kamer, perfect als extra slaapkamer of kantoor. Op de eerste verdieping zijn drie slaapkamers, waaronder een met drie zijden ramen, en een stijlvolle, gerenoveerde badkamer. De tweede verdieping heeft nog een slaapkamer en bergruimte. Daarnaast is er een garage met elektra, aansluitingen voor wasapparatuur en een laadpunt voor een elektrische auto. Energielabel B en gasloos met stadsverwarming. De woning is omringd door natuur en voorzieningen.

Overdracht

Vraagprijs
€ 699.000 k.k.
Aangeboden sinds
09-01-2026
Status
Beschikbaar
Beschikbaar
Per direct

Oppervlakte en inhoud

Woonoppervlakte
133 m²
Perceeloppervlakte
299 m²

Bouw

Type woning
Huis
Soort woning
Tussenwoning (rijtjeshuis), Eengezinswoning
Soort bouw
Bestaande bouw
Bouwjaar
1991

Indeling

Aantal kamers
6
Aantal slaapkamers
5
Aantal badkamers
1

Buitenruimte

Dakterras
Niet aanwezig

Energie

Energielabel
B
Meld een probleem met deze woning