Contact met de makelaar

Deze woning is gevonden buiten ons eigen netwerk. Met de knop hieronder kom je direct bij de aanbieder terecht.

Nieuw

Misterstraat 5 A

Bekijk kaart
7126 CA Bredevoort (Bredevoort)
€ 499.005 v.o.n.
  • 160 m²
  • 4 kamers
  • 2026

Samenvatting

  • Deze woning wordt sinds 17 februari 2026 aangeboden door Iets Anders Makelaars;
  • De 2-onder-1-kapwoning heeft een woonoppervlakte van 160 m² en beschikt over 4 kamers, waarvan 3 slaapkamers;
  • De woning is gebouwd In 2026 en ligt in de buurt Bredevoort in Bredevoort;
  • De woning beschikt onder andere over de volgende voorzieningen: Douche, Bergruimte, Toilet.

Beschrijving

BOUWEN IN BREDEVOORT
Waar eeuwenoude straatjes verhalen vertellen over vestingwerken, boeken en belegeringen, krijgt ook het gezinsleven hier alle ruimte. In het hart van historisch Bredevoort verrijst deze royale 2-onder-1-kap casco nieuwbouwwoning: een comfortabel en eigentijds familiehuis dat naadloos aansluit bij de sfeer van het vestingstadje. Met volop leefruimte, genoeg slaapkamers en een prettige indeling is dit een woning waarin het hele gezin zich direct thuis voelt. Een fijne plek om samen te leven, te groeien en herinneringen te maken en dat midden in de charme van toen, met het comfort van nu.

BINNENKIJKEN
In gedachten krijgt de rechterhelft van deze nieuwbouwwoning vorm, waarbij ruimte, comfort en vrijheid qua afwerking centraal staan. Parkeren gaat gemakkelijk aan de zijkant van de woning, waar tevens de entree is gesitueerd. Via de hal, met toilet en meterkast, lopen we door naar de woonkamer aan de voorzijde. Een fijne plek om uit te kijken over de straat en alvast na te denken over de ideale zithoek. Aan de achterzijde ontvouwt zich de gezellige woonkeuken met openslaande tuindeuren naar de tuin, waar binnen- en buitenleven moeiteloos in elkaar overlopen. De naastgelegen bijkeuken zal in de dagelijkse praktijk veel worden gebruikt als binnenkomst en biedt ruimte voor de opstelling van witgoed en de warmtepomp als kloppend hart van de woning.

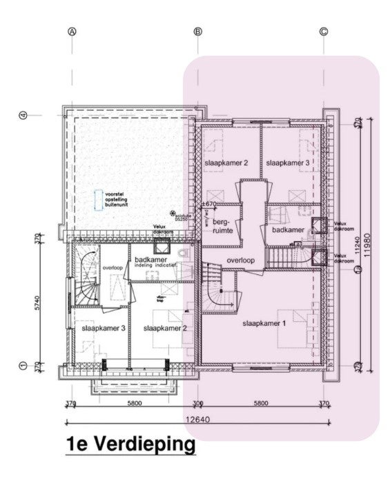
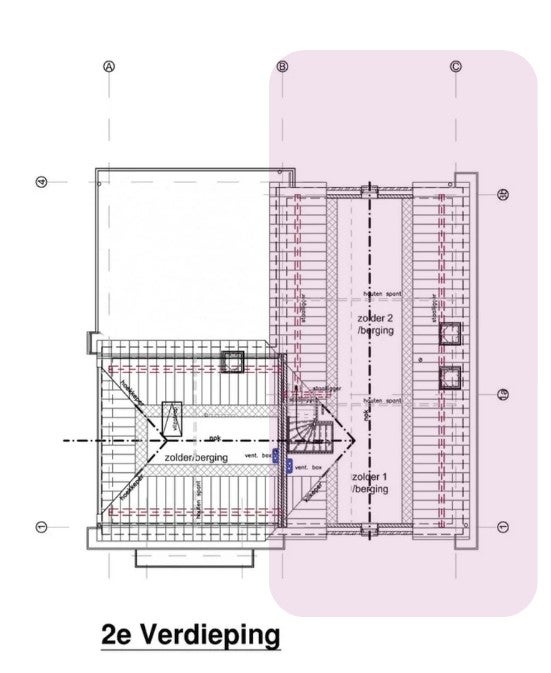
Op de eerste verdieping bevindt zich de masterslaapkamer aan de voorzijde en twee mooie slaapkamers aan de achterzijde, aangevuld met een praktische berging in het midden. De badkamer wordt in overleg ontworpen en is voorzien van een Velux-dakraam, waardoor ook hier volop mogelijkheden zijn voor een persoonlijke invulling. Via een vaste trap is de tweede verdieping bereikbaar; deze kan worden ingericht als bergzolder, maar biedt eveneens de mogelijkheid tot het creëren van een volwaardige vierde slaapkamer. Ook deze woning vormt daarmee een flexibel uitgangspunt om woonwensen verder uit te werken en volledig naar eigen smaak af te werken.

BUITEN GENIETEN
Achter de woning kabbelt de Slingebeek rustig voorbij en strekt zich een heerlijk ruime tuin van circa 318 m² uit. Een plek waar kinderen alle ruimte hebben om te spelen, waar de barbecue zonder moeite kan worden aangestoken en waar lange zomeravonden vanzelf ontstaan.. Een kop koffie in de ochtendzon, een boek in de schaduw en je voeten in het gras. En wie eropuit wil loopt gemakkelijk een rondje (met of zonder hond) om de Slingeplas. Sluit de dag af met een drankje op een van de gezellige terrasjes rondom de markt waar boeren en buitenlui samenkomen en verhalen als vanzelf ontstaan.

BIJZONDER BREDEVOORT
Zodra je dit voormalige vestingstadje binnenloopt, verandert er iets. Alsof de hectiek van alledag achter je blijft en je in een andere tijd stapt. Een tijd van rust, charme en karakter. Bredevoort is een plek die je uitnodigt om rond te dwalen, te kijken, te ontdekken. In het historische centrum is geen huis hetzelfde. Elk pand heeft een eigen gezicht, een eigen verleden. En dat voel je. Oude gevels, ambachtelijke details, kleine straatjes met klinkers en hofjes vol bloemen. Alsof je door een levend schilderij loopt.

BEPALEN EN BEGINNEN
Een nieuwe woning bouwen begint met een goed gesprek. Met jouw woonwensen, ideeën en toekomstplannen als uitgangspunt. Bel dus gerust met Iets Anders Makelaars voor meer informatie. We denken met plezier mee en verbinden je graag met Bouwgroep Heijnen zodat plannen concreet worden, dromen vorm krijgen en begonnen kan worden met de bouw van je toekomst!

Overdracht

Vraagprijs
€ 499.005 v.o.n.
Prijs per m²
€ 3.119
Aangeboden sinds
17-02-2026
Status
Beschikbaar
Beschikbaar
In overleg
Onderhoudsstaat
Zeer goed

Oppervlakte en inhoud

Woonoppervlakte
160 m²
Perceeloppervlakte
535 m²
Inhoud
500 m³

Bouw

Type woning
Huis
Soort woning
2-onder-1-kapwoning, Eengezinswoning
Soort bouw
Bestaande bouw
Bouwjaar
2026
Ligging
  • Aan een rustige weg
  • In het centrum

Indeling

Aantal kamers
4
Aantal slaapkamers
3
Aantal badkamers
1
Aantal woonlagen
3
Voorzieningen
  • Douche
  • Bergruimte
  • Toilet

Buitenruimte

Balkon
Niet aanwezig
Tuin
Aanwezig
Tuinbeschrijving
achtertuin, voortuin, zijtuin
Achterom
Niet aanwezig
Dakterras
Niet aanwezig

Energie

Isolatie
Volledig geïsoleerd, HR glas
Energielabel
A+++

Parkeergelegenheid

Aanwezig
Ja
Soort parkeergelegenheid
Op eigen terrein

Garage

Aanwezig
Nee
Meld een probleem met deze woning