Abel Tasmanstraat 32
Bekijk kaart- 149 m²
- 7 kamers
- 1999
Samenvatting
- Deze woning wordt sinds 16 januari 2026 aangeboden door Kok Makelaars;
- De tussenwoning heeft een woonoppervlakte van 149 m² en beschikt over 7 kamers, waarvan 6 slaapkamers;
- De woning is gebouwd In 1999 en ligt in de buurt Puccinibuurt in Capelle aan den IJssel;
- De woning beschikt onder andere over de volgende voorzieningen: Bad, Frans balkon, Mechanische ventilatie, Buitenzonwering, Rolluiken, Douche, Schuifdeuren, Toilet, Wasruimte.
Beschrijving
Een topper van een EENGEZINSWONING met royale uitgebouwde woonkamer, maar liefst 6 slaapkamers en een super fraaie ligging met vrij uitzicht op de grote vijver!
De ideale gezinswoning met zonnige achtertuin op het zuiden, gelegen op een centrale locatie op de grens van Capelle West en ’s-Gravenland!
Zie onderstaande hoofdkenmerken met nadere omschrijving en de uitgebreide fotoreportage. Zelf sfeer proeven in de woning? Bel met Kok Makelaars voor een bezichtiging!
Hoofdkenmerken:
- Royale en opvallend lichte woonkamer
- Open keuken met schiereiland en vrij uitzicht op de grote vijver
- Ruime badkamer met ligbad én inloopdouche
- 6 slaapkamers en separate witgoedruimte
- 2 grote/brede kunststof dakkapellen (2021)
- Zonnige achtertuin op het zuiden
- 8 zonnepanelen (2019)
- Energielabel A
- Woonoppervlakte ca. 149 m²
- Perceeloppervlakte ca. 143 m²
- Eigen grond
Gelegen op korte afstand van het winkelcentrum Puccinipassage, bus- en metrostation Capelsebrug, scholen, kinderdagopvang, gezondheidszorg, de Hollandsche IJssel, uitvalswegen, etc.
INDELING (voor de afmetingen, zie de plattegrondtekeningen)
Begane grond:
De begane grond is voorzien van fraaie Frans eikenhouten vloerdelen (2018) en vloerverwarming
Entree/hal, met toegang tot de woonkamer middels openslaande deuren, toilet, meterkast en trapopgang naar de eerste verdieping.
Woonkamer, een royale uitgebouwde woonkamer, met toegang tot de open keuken, vaste kast onder de trap en de achtertuin middels een grote/brede schuifpui.
Keuken, een open keuken met prachtig uitzicht over de grote vijver met rondom groen.
De keukenruime is voorzien van een recht keukenblok en een schiereiland
Het kook schiereiland is voorzien van gaskookplaat met afzuigkap, vaatwasser (2019), spoelbak, kasten en laden.
Het rechte keukenblok is voorzien van een grote koelkast, separate vriezer met 3 laden, koffieautomaat, en een combi-oven (2025).
Toilet (2018), geheel betegeld, voorzien van een hangend closet en mechanische ventilatie.
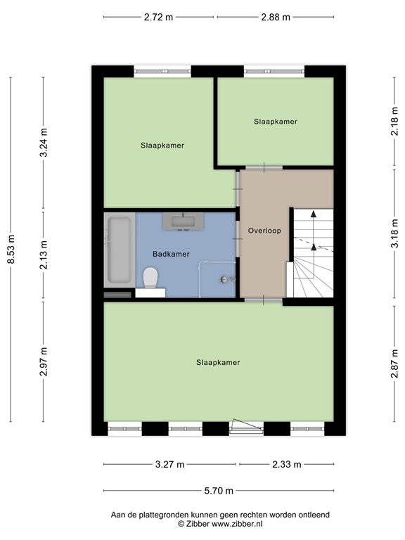
Eerste verdieping:
De eerste verdieping is (m.u.v. de badkamer) voorzien van laminaat vloerafwerking (2018).
Overloop, met toegang tot 3 slaapkamers, badkamer en trapopgang naar de tweede verdieping.
Slaapkamer 1, een royale kamer aan de voorzijde met super uitzicht over de vijver, voorzien van een Frans balkon. Hier is het heerlijk wakker worden!
Slaapkamer 2 + 3, beide prima formaat slaapkamers, gelegen aan de achterzijde.
Badkamer (2018), een royale en geheel betegelde ruimte, voorzien van een groot ligbad met thermostaatkraan en handdouche, inloopdouche met thermostaatkraan, badkamermeubel met een brede wastafel, voorzien van onderladen en een kolomkast. Verder beschikt de badkamer over een tweede toilet (hangend closet), elektrische vloerverwarming en mechanische ventilatie.
Tweede verdieping:
De tweede verdieping is grotendeels voorzien van laminaat vloerafwerking (2018) en in 2021 zijn er grote/brede kunststof dakkapellen met draai-kantelramen (HR++ glas) aan zowel de voor- als achterzijde geplaatst. Na de plaatsing van de dakkapellen zijn de zolderkamers voorzien van nieuw stucwerk en zijn er 2 vlizotrappen geplaatst naar de bergzolder.
Overloop, met toegang tot 3 slaapkamers, separate witgoedruimte, bergruimte achter de knieschotten en de bergzolder via een vlizotrap.
Slaapkamer 4, gelegen aan de achterzijde, voorzien van elektrische rolluiken.
Slaapkamer 5, gelegen aan de voorzijde, voorzien van een vaste kast en een technische ruimte/kast met de opstelling van de cv-ketel en mechanische ventilatie unit. Verder is er vanuit deze kamer een tweede toegang naar de bergzolder via een vlizotrap.
Slaapkamer 6, gelegen aan de voorzijde. Een heerlijke thuiswerkkamer met fraai uitzicht!
Witgoedruimte, gelegen aan de achterzijde, voorzien van elektrische rolluiken. Voorzien van de wasmachine- en drogeraansluiting en de opstelling van de omvormer voor de zonnepanelen. De vloer is afgewerkt met vinyl.
Tuinen:
Achtertuin, gelegen op het zuiden, waardoor heel de dag genieten van de zon! De tuin is voorzien van vernieuwde sierbestrating en schuttingen (2020), kunstgras, elektrische zonwering, buitenkraan, stenen berging met elektriciteit en verlichting, dubbele schommel en een achterom.
Voortuin, voorzien van sierbestrating (2020) en groen, grenzend aan het voetpad met daarachter de grote vijver en het groene parkje.
Bijzonderheden:
- Cv-ketel Vaillant ecoTEC (2019)
- Mechanische ventilatie unit (2019)
- Houten en kunststof kozijnen
- Dubbele beglazing (gedeeltelijk HR++)
- Betonnen vloeren
- Energielabel A
- 8 zonnepanelen (2019)
- Bouwjaar ca. 1999
Oplevering: in overleg met verkoper, vanaf halverwege mei 2026.
Bij het samenstellen van deze verkoopinformatie en (plattegrond)tekeningen zijn we nauwkeurig te werk gegaan, aan onjuistheden en/of onvolkomenheden kunt u echter geen rechten ontlenen. Daarnaast aanvaardt de makelaar of zijn opdrachtgever geen aansprakelijkheid voor de in de verkoopinformatie en (plattegrond)tekeningen verstrekte informatie.
Overdracht
- Vraagprijs
- € 625.000 k.k.
- Aangeboden sinds
- 16-01-2026
- Status
- Beschikbaar
- Beschikbaar
- In overleg
- Onderhoudsstaat
- Goed
Oppervlakte en inhoud
- Woonoppervlakte
- 149 m²
- Perceeloppervlakte
- 143 m²
- Inhoud
- 526 m³
Bouw
- Type woning
- Huis
- Soort woning
- Tussenwoning (rijtjeshuis), Eengezinswoning
- Soort bouw
- Bestaande bouw
- Bouwjaar
- 1999
- Ligging
-
- Aan het water
- In een woonwijk
- Nabij het openbaar vervoer
- Nabij een school
Indeling
- Aantal kamers
- 7
- Aantal slaapkamers
- 6
- Aantal badkamers
- 1
- Aantal woonlagen
- 3
- Voorzieningen
-
- Bad
- Frans balkon
- Mechanische ventilatie
- Buitenzonwering
- Rolluiken
- Douche
- Schuifdeuren
- Toilet
- Wasruimte
Buitenruimte
- Balkon
- Niet aanwezig
- Tuin
- Aanwezig (56 m², gelegen op het zuiden)
- Tuinbeschrijving
- achtertuin
- Achterom
- Aanwezig
- Dakterras
- Niet aanwezig
Energie
- Isolatie
- Dubbele beglazing
- Verwarming
- CV-ketel, Gedeeltelijke vloerverwarming
- Warm water
- CV-ketel
- Cv-ketel
- Vaillant ecoTEC (Gas, uit 2019, Eigendom)
- Energielabel
- A
Bergruimte
- Schuur/Berging
- Aanwezig
Parkeergelegenheid
- Aanwezig
- Ja
- Soort parkeergelegenheid
- Openbaar