Contact met de makelaar

Deze woning is gevonden buiten ons eigen netwerk. Met de knop hieronder kom je direct bij de aanbieder terecht.

Loverensestraat 11 R A4

Bekijk kaart
5266 AM Cromvoirt (Verspreide huizen Cromvoirt)
€ 215.000 k.k.
  • 52 m²
  • 3 kamers
  • 2018

Samenvatting

  • Deze woning wordt sinds 3 maanden aangeboden door SMASH Makelaars;
  • De vrijstaande woning heeft een woonoppervlakte van 52 m² en beschikt over 3 kamers, waarvan 2 slaapkamers;
  • De woning is gebouwd In 2018 en ligt in de buurt Verspreide huizen Cromvoirt in Cromvoirt.

Beschrijving

Loverensestraat 11-RA4, 5266AM Cromvoirt

Exclusieve recreatiewoning met twee slaapkamers.

Deze prachtige accommodatie biedt een oase van rust en ontspanning, compleet met eigen wellnessvoorziening. Locatie Midden in de bossen van het Noord-Brabantse Cromvoirt, op loopafstand van recreatieplas de IJzeren Man, vindt u Résidence de Leuvert. De omgeving kenmerkt zich door bossen, water, heide en rivierkleigebieden.

Vanaf Résidence de Leuvert ontdekt u de unieke natuurgebieden met de auto, fiets of te voet. Op loopafstand van recreatieplas 'De IJzeren Man'. Aan de rand van Nationaal Park De Loonse en Drunense Duinen en op 20 minuten van Den Bosch en de Efteling.

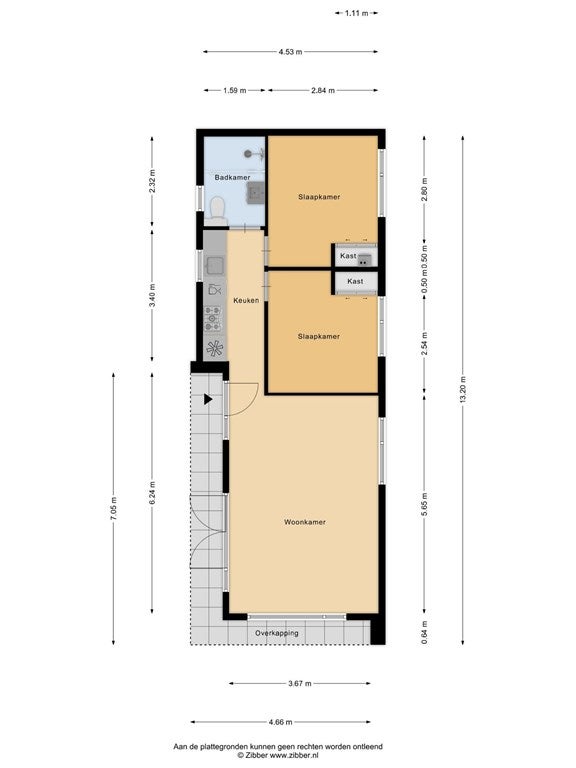
Indeling Begane grond Via de privéparkeerplaats krijgt u toegang tot het perceel, hier kunt u twee auto's naast elkaar kwijt. De entree geschiedt via de voordeur en geeft toegang tot de ruime woonkamer. De woning heeft een ruimtelijke indeling en grote raampartijen die veel natuurlijk lichtinval verzorgen. Daarnaast wordt het aangeboden inclusief inboedel en is daarmee dus direct klaar voor gebruik, ideaal voor zowel eigen gebruik als verhuur. Met openslaande deuren haalt u het buitenleven naar binnen en combineert u de tuin met het woongedeelte. De woning is voorzien van een lichtkleurige vloer in houtmotief en deze geeft comfort en sfeer in combinatie met de inbouwspots en het strakke afwerkingsniveau. De open keuken is in een neutrale maar moderne kleurstelling uitgevoerd en beschikt over een vaatwasser, oven, koelkast, gaskookplaat en afzuigkap. Een blad in marmerlook en uitzicht over de voortuin geven net even wat extra's mee. Beiden slaapkamers zijn met circa 7 m2 en 8 m2 van een goed formaat en voorzien van een vaste kast. Daarnaast beschikken deze ruimtes over raampartijen welke een balans van privacy en lichtinval geven. Tevens is hier genoeg ruimte voor 2 persoonsbedden en nachtkastjes waardoor de woning geschikt is voor een verblijf met vier personen. De badkamer is nabij de slaapkamers gelegen en voorzien van een toilet, breed wastafelmeubel en een zeer royale douche met glazen schuifdeur, afgewerkt met luxe details. Met brede wandtegels en antracietgrijze vloer heeft de badkamer een tijdloze stijl en is tevens onderhoudsvriendelijk.

Tuin:

De tuin, zorgvuldig aangelegd met oog voor architectuur, beschikt over een afgeschermde wellnesshoek. De welnesshoek is afgeschermd doormiddel van natuurlijke afscheidingen waardoor u hier met privacy gebruik van kan maken. U kunt ontspannen in de jacuzzi of uzelf verfrissen onder de buitendouche op warme dagen. Het aangelegde tegelterras biedt een mogelijkheid om te dineren of te genieten van de rust met een bak koffie. De verschillende terrassen bieden mogelijkheden tot meerdere zitplekken, de inbouwspots in de overstek en de buitenwandverlichting bieden extra details en sfeer in de avond.

Bijzonderheden:

  • Beschikt over hottub en buitendouche ten behoeve van betere bezetting bij verhuur;
  • Deze woning is helaas niet geschikt voor permanente bewoning, maar bedoeld om te verhuren;
    • Verhuur in samenwerking met professionele verhuurorganisatie Topparken;
  • Wordt gemeubileerd opgeleverd;
  • Oplevering in overleg;

Overdracht

Vraagprijs
€ 215.000 k.k.
Aangeboden sinds
14-10-2025
Status
Beschikbaar
Beschikbaar
In overleg
Bijzonderheden
Seniorenwoning
Onderhoudsstaat
Goed

Oppervlakte en inhoud

Woonoppervlakte
52 m²
Perceeloppervlakte
213 m²
Inhoud
183 m³

Bouw

Type woning
Huis
Soort woning
Vrijstaande woning, Bungalow
Soort bouw
Bestaande bouw
Bouwjaar
2018
Ligging
  • Aan een rustige weg
  • Aan een park
  • Open gebied
  • Beschut gelegen
  • Vrij uitzicht

Indeling

Aantal kamers
3
Aantal slaapkamers
2
Aantal badkamers
1
Aantal woonlagen
1

Buitenruimte

Balkon
Niet aanwezig
Tuin
Aanwezig (gelegen op het zuidwesten)
Tuinbeschrijving
tuin rondom
Dakterras
Niet aanwezig

Energie

Isolatie
Dubbele beglazing
Energielabel
C

Parkeergelegenheid

Aanwezig
Ja
Meld een probleem met deze woning