Contact met de makelaar

Deze woning is gevonden buiten ons eigen netwerk. Met de knop hieronder kom je direct bij de aanbieder terecht.

Rockanjelaan 21

Bekijk kaart
2554 BP Den Haag (Kijkduin)
€ 995.000 k.k.
  • 192 m²
  • 4 kamers
  • 1995

Samenvatting

  • Deze woning wordt sinds 6 weken aangeboden door Den Braber & Ram Vastgoed;
  • De tussenwoning heeft een woonoppervlakte van 192 m² en beschikt over 4 kamers, waarvan 3 slaapkamers;
  • De woning is gebouwd In 1995 en ligt in de buurt Kijkduin in Den Haag;
  • De woning beschikt onder andere over de volgende voorzieningen: Bad, Internetaansluiting, Mechanische ventilatie, Douche, Schuifdeuren, Toilet.

Beschrijving

Ruim herenhuis met garage, twee parkeerplaatsen en prachtig uitzicht richting de duinen!

Op een unieke locatie aan de rand van het duingebied van Kijkduin ligt dit goed onderhouden herenhuis met energielabel A, inpandige garage, twee eigen parkeerplaatsen, drie ruime slaapkamers, twee badkamers en een sfeervolle oranjerie/serre met uitzicht richting de duinen. Deze woning biedt volop leefruimte, comfort en een heerlijke woonomgeving op loopafstand van het strand, de vernieuwde boulevard en de natuur.

Wat deze woning bijzonder maakt, is de combinatie van fraaie uitstraling en uitstekend onderhoud met een ligging op één van de mooiste plekken van Den Haag. Dankzij de royale indeling, het vele licht en de fraaie serre met uitzicht over het duingebied is het hier heerlijk wonen in alle seizoenen.

Indeling van de woning
Entree via verzorgde oprit met ruimte voor twee auto’s en toegang tot de verwarmde garage met elektrische deur. Tochtportaal met meterkast en modern toilet met fontein.

De ruime woon-/eetkamer beslaat de volledige breedte van de woning en is voorzien van een fraaie parketvloer, convectorput en schuifpui naar de zonnige achtertuin op het zuidoosten met vrij uitzicht richting de duinen. De moderne eetkeuken aan de voorzijde is hoogwaardig afgewerkt en voorzien van diverse inbouwapparatuur van Siemens en ATAG, waaronder een 5-pits gasfornuis met wokbrander, afzuigkap, vaatwasser, koelkast, vriezer en elektrische oven. Vanuit de keuken kijkt u uit over het groene plantsoen.

Eerste verdieping
Overloop met toegang tot de eerste badkamer met inloopdouche, wastafel en toilet. Aan de achterzijde bevindt zich een ruime slaapkamer (origineel twee slaapkamers) met uitzicht over de duinen, lichte oranjerie/serre met zonwering.

Aan de voorzijde ligt de hoofdslaapkamer met walk-in-closet en tweede badkamer en-suite, voorzien van ligbad-/douchecombinatie, wastafel en toilet.

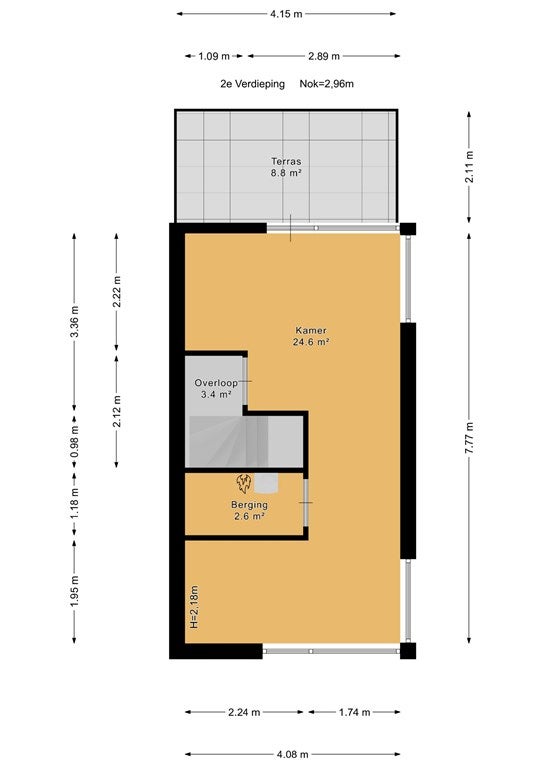
Tweede verdieping
Derde slaapkamer met aan beide zijden vrij uitzicht richting de duinen en toegang tot een zonnig dakterras. Tevens is hier een vaste kast met opstelplaats van de cv-ketel en mechanische ventilatie.

Bijzonderheden
• Energielabel A;
• Goed onderhouden; jaarlijks geschilderd;
• Gelegen op eeuwigdurend afgekochte erfpachtgrond;
• Verwarmde garage met water, elektra en elektrische deur;
• Parkeren op eigen terrein (twee plaatsen);
• Zonnige achtertuin op het zuidoosten met vrij uitzicht richting de duinen;
• Autoluwe, kindvriendelijke omgeving;
• Houten kozijnen met dubbel glas;
• Nabij strand, duinen en boulevard van Kijkduin;
• In de directe omgeving van winkels, openbaar vervoer, International School of The Hague en diverse sportverenigingen;
• Verkoopvoorwaarden Den Braber & Ram;
• Oplevering in overleg;

Spacious mansion with garage, two parking spaces, and beautiful views of the dunes!

This well-maintained mansion with energy label A, indoor garage, two private parking spaces, three spacious bedrooms, two bathrooms, and an attractive orangery/conservatory with a view of the dunes is situated in a unique location on the edge of the Kijkduin dune area. This property offers plenty of living space, comfort, and a wonderful living environment within walking distance of the beach, the renovated boulevard, and nature.

What makes this house special is the combination of its beautiful appearance and excellent maintenance with its location in one of the most beautiful spots in The Hague. Thanks to the spacious layout, the abundance of light, and the beautiful conservatory with a view over the dune area, this is a wonderful place to live in all seasons.

Layout of the house
Entrance via a well-maintained driveway with space for two cars and access to the heated garage with electric door. Vestibule with meter cupboard and modern toilet with washbasin.

The spacious living/dining room spans the entire width of the house and features beautiful parquet flooring, a convector pit, and sliding doors to the sunny southeast-facing backyard with unobstructed views of the dunes. The modern kitchen at the front has a high-quality finish and is equipped with various built-in appliances from Siemens and ATAG, including a 5-burner gas stove with wok burner, extractor hood, dishwasher, refrigerator, freezer, and electric oven. From the kitchen, you look out over the green park.

First floor
Landing with access to the first bathroom with walk-in shower, sink, and toilet. At the rear is a spacious bedroom (originally two bedrooms) with a view of the dunes, a bright orangery/conservatory with sun blinds.

At the front is the master bedroom with walk-in closet and second en-suite bathroom with bath/shower combination, sink, and toilet.

Second floor
Third bedroom with unobstructed views of the dunes on both sides and access to a sunny roof terrace. There is also a built-in closet with space for the central heating boiler and mechanical ventilation.

Details
• Energy label A
• Well maintained; painted annually
• Located on perpetually bought-off leasehold land
• Heated garage with water, electricity, and electric door
• Parking on own property (two spaces)
• Sunny southeast-facing backyard with unobstructed view of the dunes
• Low-traffic, child-friendly neighborhood
• Wooden window frames with double glazing
• Close to the beach, dunes, and boulevard of Kijkduin
• In the immediate vicinity of shops, public transportation, International School of The Hague, and various sports clubs
• Terms and conditions of sale Den Braber & Ram
• Delivery in consultation

Reageer op tijd op nieuw woningaanbod

Meer dan de helft van de reacties komt binnen 48 uur. Ontvang direct notificaties bij nieuw aanbod en reageer sneller met Pararius+.

Probeer Pararius+ 14 dagen € 0,01

Overdracht

Vraagprijs
€ 995.000 k.k.
Aangeboden sinds
25-11-2025
Status
Beschikbaar
Beschikbaar
In overleg
Onderhoudsstaat
Zeer goed

Oppervlakte en inhoud

Woonoppervlakte
192 m²
Perceeloppervlakte
212 m²
Inhoud
716 m³

Bouw

Type woning
Huis
Soort woning
Tussenwoning (rijtjeshuis), Eengezinswoning
Soort bouw
Bestaande bouw
Bouwjaar
1995
Ligging
  • Aan bosrand
  • Nabij de zee
  • Vrij uitzicht

Indeling

Aantal kamers
4
Aantal slaapkamers
3
Aantal badkamers
2
Aantal woonlagen
3
Voorzieningen
  • Bad
  • Internetaansluiting
  • Mechanische ventilatie
  • Douche
  • Schuifdeuren
  • Toilet

Buitenruimte

Balkon
Aanwezig
Tuin
Aanwezig (54 m², gelegen op het zuidoosten)
Tuinbeschrijving
achtertuin
Dakterras
Niet aanwezig

Energie

Isolatie
Dubbele beglazing, Volledig geïsoleerd
Verwarming
CV-ketel
Warm water
CV-ketel
Cv-ketel
HR ATAG (Gas, uit 2013, Eigendom)
Energielabel
A

Parkeergelegenheid

Aanwezig
Ja
Soort parkeergelegenheid
Openbaar

Garage

Aanwezig
Ja
Meld een probleem met deze woning