Contact met de aanbieder

Deze woning is gevonden buiten ons eigen netwerk. Via de knop hieronder ga je direct naar de website van de aanbieder.

It Plein 2

Bekijk kaart
8835 XB Easterlittens (Easterlittens)
€ 470.000 k.k.
  • 410 m²
  • 8 kamers
  • 1511

Samenvatting

  • Deze woning wordt sinds 6 weken aangeboden door Agricola Makelaardij - Bolsward;
  • De vrijstaande woning heeft een woonoppervlakte van 410 m² en beschikt over 8 kamers, waarvan 5 slaapkamers;
  • De woning is gebouwd In 1511 en ligt in de buurt Easterlittens in Easterlittens.

Beschrijving

" Open huis op zaterdag 7 maart 2026 tussen 12.00 - 15.00 uur met een heerlijk beschikbaar gesteld kop - " Erwtensoep " -- U bent van harte welkom !!

Prachtig en solide herontwikkelingsobject in goede staat van onderhoud op centrale locatie in dorp als in de regio ( Leeuwarden, Sneek, Bolsward en Franeker op korte afstand ). Ideaal voor jong of oud - voor appartementen/woningen jongeren of ouderen uit het dorp of regio, (zorg) dagbesteding, B & B , om wonen en werken te combineren ( centraal cq. hart van de regio ), kangoeroe wonen of gewoon het cafe/restaurant voortzetten - deze exploitatie voor een nieuw ondernemerspaar -of ander combinatie is nog steeds goed te noemen. U zegt het maar. Niks-voor-niks de naam Herbergh "Het Wapen van Friesland" er wordt nog steeds met de scepter gezwaaid voor prima eten en drinken voor een goed betaalbare prijs en waar het ook nog steeds bekend om staat, zijn goede naam en faam. We leiden dan u nog graag en vertrouwd rond, zodat u het zelf kan ervaren en mee kan krijgen. Eigen grond 300 m².

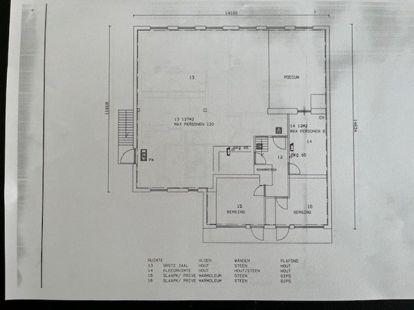
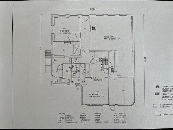
begane grond ca. 185 m² waaronder entree ca. 13 m², restaurant/café ca. 79,5 m², nette en verzorgde keuken/spoelkeuken ca.28,5 m², IJssalon/opslag ca. 28,5 m², toiletruimtes ca. 12 m², overig ca. 26 m² o.a. kelder ca. 2 m², voormalige ( in prima staat zijde ) badkamer met douche, wastafel en toilet - wanneer men in/bij het werk wil wonen ( huidige eigenaars hebben ook bij hun werk gewoond ); achterentree, achtertuin/zonneterras aan achterzijde, garage, voorzijde gevelterras ca. 15 m²

bovenverdieping ca. 175 m² waaronder bovenzaal ca. 127 m² en (pantry + opslag + toiletruimtes) ca. 48 m².

via vaste trap naar zolderetage ca. 50 m².

  • prachtig en degelijk pand ( zonder kleerscheuren ) uit 1511;
  • goede staat van onderhoud;
  • gezien ligging midden in het dorp ( hoogte ) droge fundering/kelder cq. geen grondwaterproblemen, kortom alles prima op orde;
  • veel authentieke sfeerelementen en karakter;
  • intern -- als ondernemer kan er ook prima gewoond worden, er is separate goede badkamer op begane grond, ook de huidige eigenaars hebben er ook gewoond;
  • gereinigde en opnieuw gevoegde gevels;
  • centrale locatie ( kruispunt ) in regio met de vele toeristische trekpleisters in nabije omgeving zoals de steden Franeker, Sneek, Leeuwarden en Bolsward o.a. Friese Elfsteden Fonteinenroute, de vele andere bezienswaardigheden en musea ( o.a. ook het geheim van de mummiekelder Wiewerd/Wiuwert - 1 dorp verder gelegen );
  • bij open doorgaand vaarwater ( route );
  • uitstekend gebied voor heerlijk fietsen, wandelen, gewoon varen of sloep varen ( sluit aan op Elfstedenroute ), kanovaren/kajakken, suppen enz. - het echte Friese Greiden gebied;
  • actieve en ondernemende dorpsgemeenschap;
  • vele prima invullingsmogelijkheden, maar een leuk en enthousiast ondernemerspaar ( met enig startkapitaal ) kan er prima de kost verdienen;
  • geen hoge energiekosten;
  • naastgelegen, een ook netjes verzorgd woonhuis It Plein 4 kan erbij gekocht worden ( maar is thans verhuurd );
  • energielabel C;
  • excl. exploitatiekosten;
  • instapklaar ! , met geen directe verplichtingen richting brouwerijen;
  • een uitstekende kans voor de liefhebber of herontwikkelaar;
  • u bent van harte welkom;
  • in gezamenlijke verkoop met Klaassen vastgped makelaardij - Amersfoort.

Overdracht

Vraagprijs
€ 470.000 k.k.
Prijs per m²
€ 1.146
Aangeboden sinds
10-01-2026
Status
Beschikbaar
Beschikbaar
In overleg
Onderhoudsstaat
Goed

Oppervlakte en inhoud

Woonoppervlakte
410 m²
Perceeloppervlakte
300 m²
Inhoud
1.250 m³

Bouw

Type woning
Huis
Soort woning
Vrijstaande woning, Herenhuis
Soort bouw
Bestaande bouw
Bouwjaar
1511
Ligging
  • Aan een rustige weg
  • In het centrum
  • Nabij het openbaar vervoer
  • Beschut gelegen

Indeling

Aantal kamers
8
Aantal slaapkamers
5
Aantal badkamers
1
Aantal woonlagen
3
Voorzieningen
  • Mechanische ventilatie
  • Toilet

Buitenruimte

Balkon
Niet aanwezig
Tuin
Aanwezig
Tuinbeschrijving
achtertuin
Achterom
Niet aanwezig
Dakterras
Niet aanwezig

Energie

Isolatie
Muurisolatie
Verwarming
CV-ketel
Warm water
Geiser
Cv-ketel
Nefit (Gas, uit 2001, Eigendom)
Energielabel
C

Parkeergelegenheid

Aanwezig
Ja
Soort parkeergelegenheid
Openbaar

Garage

Aanwezig
Ja
Meld een probleem met deze woning