Contact met de makelaar

Deze woning is gevonden buiten ons eigen netwerk. Met de knop hieronder kom je direct bij de aanbieder terecht.

Verkocht onder voorbehoud

Keenkestraat 2

Bekijk kaart
6247 EJ Gronsveld (Gronsveld)
€ 629.000 k.k.
  • 265 m²
  • 6 kamers
  • 1979

Samenvatting

  • Deze woning wordt sinds 3 maanden aangeboden door Goessens & Goessens Makelaardij;
  • De vrijstaande woning heeft een woonoppervlakte van 265 m² en beschikt over 6 kamers, waarvan 5 slaapkamers;
  • De woning is gebouwd In 1979 en ligt in de buurt Gronsveld in Gronsveld;
  • De woning beschikt onder andere over de volgende voorzieningen: Bad, Bergruimte, Toilet.

Beschrijving

DEZE WONING WORDT AANGEBODEN DOOR GOESSENS & GOESSENS MAKELAARDIJ.

-Beschrijving:
In het charmante en levendige dorp Gronsveld, op een rustige en prettige locatie, staat deze ruime vrijstaande woning met oprit en een prachtige tuin rondom. De volledig onderkelderde woning beschikt over een royale woonoppervlakte, vijf ruime slaapkamers (met de mogelijkheid tot een zesde) en een verzorgde tuin met zijingang. Een ideale woning voor wie op zoek is naar ruimte, comfort en een groene leefomgeving.

De woning biedt volop mogelijkheden om te wonen, te werken of hobby’s uit te oefenen aan huis. Dankzij de grote leefruimtes en praktische indeling is het huis geschikt voor zowel gezinnen als stellen die op zoek zijn naar extra wooncomfort.

De fraaie, volwassen tuin is een waar rustpunt. Volledig omsloten, met een combinatie van terras, gazon en volgroeide beplanting, vormt deze tuin een heerlijke plek om te ontspannen of gasten te ontvangen. De ligging rondom de woning zorgt voor veel privacy en een gevoel van vrijheid.

Ook de locatie is bijzonder aantrekkelijk: op korte afstand bevinden zich het Savelsbos en diverse wandel- en fietsroutes, ideaal voor natuurliefhebbers. Tegelijkertijd liggen Maastricht, het MUMC+ en de Universiteit Maastricht binnen circa tien autominuten. De uitvalswegen richting België en het Heuvelland zijn snel en gemakkelijk bereikbaar, waardoor deze woning de perfecte balans biedt tussen rustig wonen en centrale bereikbaarheid.

Een ruime, solide woning met karakter, uitstekende ligging en volop mogelijkheden voor wie royaal en comfortabel wil wonen in een geliefde omgeving.

-Indeling:

-Souterrain:
Via een trap in de entree bereikt u de hal in het ruime souterrain, van waaruit twee praktische ruimtes toegankelijk zijn:
• Ruimte 1: Deze ruimte is ca. 24 m² groot. Hier bevindt zich tevens een deur naar een berging, welke is voorzien van de cv-ketel (Eigendom, 2016, Vaillant).
• Ruimte 2: Deze ruimte is ca. 10 m² groot en praktisch te gebruiken als bergruimte.

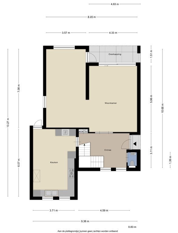
-Begane grond:
U wordt verwelkomd in een lichte en royale entree van ca. 14 m², afgewerkt met een lichtkleurige tegelvloer die direct een verzorgde indruk achterlaat. Vanuit de hal is er toegang tot de meterkast, het toilet, de woonkamer, de keuken en de trappen naar zowel de eerste verdieping als het souterrain.
De volledig betegelde toiletruimte is voorzien van een hangcloset en een fonteintje.

De ruime woonkamer van ca. 53 m² vormt het hart van de woning. De tegelvloer van de hal loopt naadloos door, wat zorgt voor een mooi geheel en een ruimtelijk gevoel. De gehele begane grond is voorzien van vloerverwarming, wat bijdraagt aan het wooncomfort. Grote raampartijen en een schuifpui naar de tuin zorgen voor veel natuurlijk licht en een fijne verbinding tussen binnen en buiten. Vanuit de woonkamer is er direct toegang tot de tuin.

De ruime keuken (ca. 23 m²) is gerealiseerd in de voormalige garage en is uitgevoerd in een praktische L-opstelling. De keuken beschikt over diverse inbouwapparatuur, waaronder een 5-pits gasfornuis, afzuigkap, oven, magnetron, vaatwasser en koelkast. Vanuit de keuken is eveneens toegang tot de tuin, waardoor ook hier het buitenleven dichtbij voelt.
Een vlizotrap in de keuken biedt toegang tot een praktische bergzolder, ideaal voor extra opslagruimte.

-Eerste verdieping:
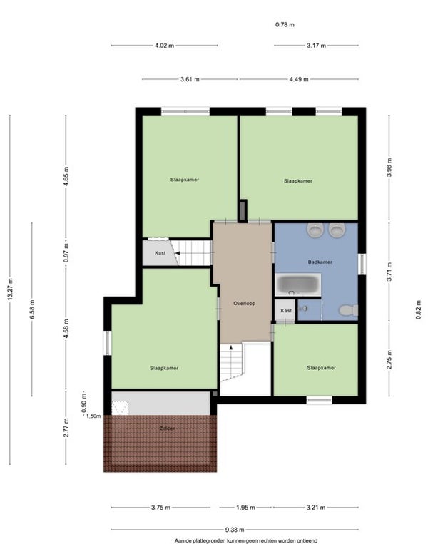
Via de trap in de entree bereikt u de eerste verdieping, met een ruime overloop van ca. 14 m² die toegang biedt tot vier slaapkamers, de badkamer en de vaste trap naar de tweede verdieping. De gehele verdieping is voorzien van vloerbedekking.
• Slaapkamer 1: Deze ruime slaapkamer is ca. 18 m² groot.
• Slaapkamer 2: Deze slaapkamer is ca. 17 m² groot.
• Slaapkamer 3: Deze comfortabele kamer is ca. 16 m² groot.
• Slaapkamer 4: Deze kamer is ca. 9 m² groot.
• Badkamer: Deze ruime, goed onderhouden en betegelde badkamer (ca. 11 m²) is uitgerust met een ligbad, een douchecabine, twee wastafels en een staand closet.

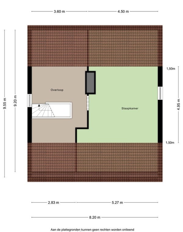
-Tweede verdieping:
Via de vaste trap op de eerste verdieping bereikt u de ruime overloop op de tweede verdieping. Vanuit hier heeft u toegang tot de vijfde slaapkamer.
• Slaapkamer 5: Deze royale slaapkamer heeft een vloeroppervlakte van ca. 43 m² groot met de mogelijkheid om na aanpassingen zelfs twee slaapkamers te creëren.

-Tuin:
De fraai aangelegde tuin rondom de woning vormt een ware oase van rust en privacy. Dankzij de zijingang en de directe toegang vanuit zowel de woonkamer als de keuken, is de tuin optimaal bij het wonen betrokken. De buitenruimte is sfeervol ingedeeld met een ruim terras, een verzorgd gazon en weelderige, volwassen beplanting.

Onder de overkapping en met de zonneschermen geniet u op elk moment van de dag van het buitenleven: van een ontspannen ochtend in de zon tot lange zomeravonden met familie en vrienden. Een praktische tuinberging van ca. 7 m² biedt extra opbergruimte voor tuingereedschap of andere benodigdheden.
Deze tuin is ideaal voor liefhebbers van natuur en tegelijkertijd perfect geschikt voor gezellige bijeenkomsten.

Nadere bijzonderheden
• Type woning: Vrijstaande woning met ruime oprit, vijf slaapkamers, royale woonoppervlakte en een groot souterrain, gelegen op een rustige en gewilde locatie in Gronsveld.
• Kozijnen: Houten kozijnen voorzien van dubbele beglazing.
• Bouwkundige keuring: De verkoper heeft een bouwkundige keuring laten uitvoeren; deze wordt na het inplannen van een bezichtiging ter inzage verstrekt.
• Centrale verwarming: HR-combiketel (Vaillant, eigendom, ca. 2016).
• Energielabel: In aanvraag.
• Opmerking: Alle vermelde afmetingen zijn indicatief en kunnen afwijken van de werkelijkheid.

-Omgeving:
Gronsveld: een pittoresk dorp met een rijke geschiedenis en een ideale ligging
Deze woning bevindt zich in het charmante Gronsveld, een dorp dat deel uitmaakt van de gemeente Eijsden-Margraten. Gelegen aan de rand van Maastricht, biedt Gronsveld het beste van twee werelden: de rust en charme van een landelijke omgeving én de nabijheid van de stad. Het dorp staat bekend om zijn gezellige dorpskern, de rijke tradities zoals de eeuwenoude schutterij en de prachtige natuur. Het nabijgelegen Savelsbos is een oase van rust en biedt talloze mogelijkheden voor wandelingen en buitenactiviteiten. Gronsveld beschikt over diverse voorzieningen, waaronder een bakker, basisschool en kinderopvang, waardoor het een ideale woonomgeving is voor zowel gezinnen, als rustzoekers. Dankzij de uitstekende verbinding met de A2 en andere uitvalswegen, bent u binnen 10 minuten in het centrum van Maastricht, terwijl steden als Luik en Aken eveneens goed bereikbaar zijn. Wonen in Gronsveld betekent genieten van een rustige, groene omgeving met alle gemakken binnen handbereik.

Graag verwijzen wij u naar onze website ******, waar meer verkoopinformatie, onze disclaimer en de verkoopvoorwaarden te vinden zijn. Deze presentatie is door Goessens & Goessens Makelaardij met de nodige zorg samengesteld. Onzerzijds wordt echter geen enkele aansprakelijkheid aanvaard voor enige onvolledigheid, onjuist of anderszins, dan wel de gevolgen daarvan. Alle opgegeven maten en oppervlakten zijn indicatief. Deze presentatie is slechts indicatief. Er is nagestreefd naar een zo zorgvuldig mogelijke informatie van de ter beschikking staande gegevens.

Overdracht

Vraagprijs
€ 629.000 k.k.
Aangeboden sinds
10-10-2025
Status
Verkocht onder voorbehoud
Beschikbaar
In overleg
Onderhoudsstaat
Goed

Oppervlakte en inhoud

Woonoppervlakte
265 m²
Perceeloppervlakte
535 m²
Inhoud
1.004 m³

Bouw

Type woning
Huis
Soort woning
Vrijstaande woning, Eengezinswoning
Soort bouw
Bestaande bouw
Bouwjaar
1979
Ligging
Aan een rustige weg

Indeling

Aantal kamers
6
Aantal slaapkamers
5
Aantal badkamers
1
Aantal woonlagen
4
Voorzieningen
  • Bad
  • Bergruimte
  • Toilet

Buitenruimte

Balkon
Niet aanwezig
Tuin
Aanwezig
Tuinbeschrijving
tuin rondom
Dakterras
Niet aanwezig

Energie

Verwarming
CV-ketel, Gedeeltelijke vloerverwarming
Warm water
CV-ketel
Cv-ketel
Vaillant (Gas, uit 2016, Eigendom)
Energielabel
C

Parkeergelegenheid

Aanwezig
Ja
Soort parkeergelegenheid
Openbaar
Meld een probleem met deze woning