Contact met de aanbieder

Deze woning is gevonden buiten ons eigen netwerk. Via de knop hieronder ga je direct naar de website van de aanbieder.

Verkocht onder voorbehoud

Rijksweg 8

Bekijk kaart
6247 AH Gronsveld (Gronsveld)
€ 689.000 k.k.
  • 238 m²
  • 7 kamers
  • 1938

Samenvatting

  • Deze woning wordt sinds 3 maanden aangeboden door Goessens & Goessens Makelaardij;
  • De halfvrijstaande woning heeft een woonoppervlakte van 238 m² en beschikt over 7 kamers, waarvan 5 slaapkamers;
  • De woning is gebouwd In 1938 en ligt in de buurt Gronsveld in Gronsveld;
  • De woning beschikt onder andere over de volgende voorzieningen: Bergruimte, Zwembad, Toilet.

Beschrijving

Deze woning wordt aangeboden door Goessens & Goessens Makelaardij

-Beschrijving:
Exclusief wonen in het hart van Gronsveld

Welkom in deze schitterende, karaktervolle woning, gelegen in de dorpskern van Gronsveld. Dit unieke huis combineert een royale woonoppervlakte met vijf volwaardige slaapkamers, een oprit aan de voor- en achterzijde, een prachtige leefkeuken, meerdere sfeervolle leefruimtes, twee badkamers en een uitgestrekte, fraai aangelegde tuin met inbouwzwembad. Het geheel staat op een indrukwekkend perceel van circa 1.437 m², wat een uitzonderlijke mate van privacy, rust en vrijheid biedt.

De woning ademt karakter: authentieke details, hoogwaardige materialen en een warme, uitnodigende atmosfeer maken dit huis tot een droom locatie.

Daarbij is de ligging ideaal. Het Savelsbos ligt op loopafstand en het MUMC+, de Universiteit Maastricht en het historische stadscentrum zijn in ongeveer tien minuten te bereiken. Een perfecte combinatie van rust, ruimte en bereikbaarheid.

-Indeling:

-Kelder:
De woning is voorzien van een ruime kelder van circa 18,5 m². Deze praktische provisieruimte is ideaal voor opslag en voorraad en vormt een waardevolle toevoeging aan het wooncomfort.

-Begane grond
Via de fraaie voordeur betreedt u de ruime entree van ca. 18 m². De combinatie van een stijlvolle tegelvloer, warme houten vloer en de authentieke trapopgang zorgt voor een uitnodigend welkom en benadrukt direct het karakter van de woning. Vanuit de hal heeft u toegang tot het toilet, de meterkast en beide woonkamers. Het toilet is volledig betegeld en voorzien van een hangcloset en fonteintje.

De royale woonkamer, samen met de keuken ca. 66 m², vormt het hart van het huis. Grote raampartijen en een schuifpui laten veel daglicht binnen en bieden een prachtig uitzicht op de tuin, waardoor een gevoel van ruimte ontstaat. De houten vloer en de centraal geplaatste houtkachel zorgen voor een warme, gezellige sfeer. Vanuit de woonkamer is zowel de tweede woonkamer als de keuken bereikbaar.

De ruime, landelijke keuken is voorzien van een tegelvloer en een prettige plafondhoogte. De keuken is volledig uitgerust met een 5-pits gasfornuis, afzuigkap, combi-oven, koelkast en vaatwasser. Vanuit de keuken is er toegang tot de tuin, de bijkeuken én de vide van de eerste verdieping.

De bijkeuken van ca. 18 m² is praktisch ingericht met aansluitingen voor wasmachine en droger, ruimte voor extra apparatuur en volop bergruimte. Daarnaast heeft de bijkeuken een eigen entree aan de voorzijde.

De tweede woonkamer van ca. 16 m² biedt een veelzijdige extra leefruimte. Deze kamer kan dienen als thuiskantoor, speelruimte, bibliotheek of tweede zitkamer en is bereikbaar via zowel de entree als de hoofdwoonkamer.

-Eerste verdieping:
De prachtige houten trap in de entree leidt naar de overloop op de eerste verdieping. Vanaf hier zijn drie slaapkamers en een badkamer bereikbaar, evenals de vaste trap naar de zolder.
• Slaapkamer 1: Deze ruime slaapkamer is ca. 16,5 m² groot en voorzien van veel kastruimte. Bovendien is deze slaapkamer voorzien van een badkamer en suite (badkamer 2) en geeft toegang tot de vide
• Slaapkamer 2: Deze comfortabele slaapkamer is ca. 15,5 m² groot.
• Slaapkamer 3: Deze slaapkamer is ca. 11,5 m² groot.
• Badkamer 1: De volledig betegelde badkamer is ca. 9 m² groot en is voorzien van een douchecabine en een wastafel.
• Badkamer 2: De betegelde badkamer is ca. 3 m² groot en is voorzien van een douchecabine, een ligbad, een wastafel en een hangcloset. Een fijne privévoorziening bij slaapkamer 1.

De vide boven de keuken is zowel via de trap in de keuken als via slaapkamer 1 bereikbaar. Deze prachtige open ruimte geeft toegang tot de vierde slaapkamer.
• Slaapkamer 4: Deze royale slaapkamer is ca. 18 m² groot en voorzien van prachtige, originele balkenpartijen aan het plafond en een vaste trap naar de vijfde slaapkamer.
• Slaapkamer 5: Deze fijne slaapkamer is ca. 19 m² groot.

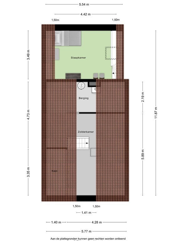
-Zolderverdieping:
Via de vaste trap op de overloop bereikt u de zolderverdieping. Deze bestaat uit een open ruimte van ca. 28 m² en een berging van ca. 12 m². Na aanpassingen is het mogelijk om hier bijvoorbeeld een of twee extra slaapkamers te creëren. Tevens bevindt zich in de berging de cv-installatie (Nefit, 2002, Eigendom).

-Tuin:
De tuin is bereikbaar via de schuifpui in de woonkamer en via de keukendeur. Deze weldadige, groene tuin is op het zuiden georiënteerd, waardoor u de hele dag van de zon kunt genieten. Het perceel is ingericht met een groot terras, een verzorgd gazon, volwassen beplanting en een prachtig ingebouwd zwembad met installatie. Hier geniet u van rust, privacy en een vakantiegevoel in eigen tuin. Op warme dagen biedt het uitschuifbare zonnescherm op het terras heerlijke schaduw.

Aan de zijkant van het huis bevindt zich een ruime berging met daaraan grenzend een grote carport/overkapping. Een perfecte plek voor het stallen van fietsen, het parkeren van een voertuig of het opbergen van tuinmaterialen. Prettig is ook de extra parkeerplaatsen aan de zijkant.

-Nadere bijzonderheden:
• Type woning: Exclusieve, karakteristieke, half vrijstaande woning met vijf slaapkamers en een royale woonoppervlakte, gelegen op een riant perceel van ca. 1.437 m² in de dorpskern van Gronsveld.
• Oprit aan de voorzijde maar ook aan de achterzijde.
• Woning met ontzettend veel charme
• Kozijnen: Hardhouten kozijnen met uitzondering van de schuifpui (kunststof). Volledig dubbele beglazing.
• Energielabel: D. Met nog voldoende mogelijkheden tot verduurzaming die de makelaar u graag toelicht.
• Centrale verwarming: HR combi-ketel (Nefit, 2002, Eigendom).
• Alle vermelde afmetingen zijn indicatief en kunnen afwijken van de werkelijkheid.

-Omgeving:
Gronsveld: een pittoresk dorp met een rijke geschiedenis en een ideale ligging
Deze woning bevindt zich in het charmante Gronsveld, een dorp dat deel uitmaakt van de gemeente Eijsden-Margraten. Gelegen aan de rand van Maastricht, biedt Gronsveld het beste van twee werelden: de rust en charme van een landelijke omgeving én de nabijheid van de stad. Het dorp staat bekend om zijn gezellige dorpskern, de rijke tradities zoals de eeuwenoude schutterij en de prachtige natuur. Het nabijgelegen Savelsbos is een oase van rust en biedt talloze mogelijkheden voor wandelingen en buitenactiviteiten. Gronsveld beschikt over diverse voorzieningen, waaronder een bakker, basisschool en kinderopvang, waardoor het een ideale woonomgeving is voor zowel gezinnen, als rustzoekers. Dankzij de uitstekende verbinding met de A2 en andere uitvalswegen, bent u binnen 10 minuten in het centrum van Maastricht, terwijl steden als Luik en Aken eveneens goed bereikbaar zijn. Wonen in Gronsveld betekent genieten van een rustige, groene omgeving met alle gemakken binnen handbereik.

Graag verwijzen wij u naar onze website ******, waar meer verkoopinformatie, onze disclaimer en de verkoopvoorwaarden te vinden zijn. Deze presentatie is door Goessens & Goessens Makelaardij met de nodige zorg samengesteld. Onzerzijds wordt echter geen enkele aansprakelijkheid aanvaard voor enige onvolledigheid, onjuist of anderszins, dan wel de gevolgen daarvan. Alle opgegeven maten en oppervlakten zijn indicatief. Deze presentatie is slechts indicatief. Er is nagestreefd naar een zo zorgvuldig mogelijke informatie van de ter beschikking staande gegevens.

Overdracht

Vraagprijs
€ 689.000 k.k.
Aangeboden sinds
27-11-2025
Status
Verkocht onder voorbehoud
Beschikbaar
In overleg
Onderhoudsstaat
Goed

Oppervlakte en inhoud

Woonoppervlakte
238 m²
Perceeloppervlakte
1.437 m²
Inhoud
993 m³

Bouw

Type woning
Huis
Soort woning
Halfvrijstaande woning, Eengezinswoning
Soort bouw
Bestaande bouw
Bouwjaar
1938
Ligging
Aan een rustige weg

Indeling

Aantal kamers
7
Aantal slaapkamers
5
Aantal badkamers
2
Aantal woonlagen
4
Voorzieningen
  • Bergruimte
  • Zwembad
  • Toilet

Buitenruimte

Balkon
Niet aanwezig
Tuin
Aanwezig
Tuinbeschrijving
tuin rondom
Achterom
Niet aanwezig
Dakterras
Niet aanwezig

Energie

Verwarming
CV-ketel
Warm water
CV-ketel, Gas boiler
Energielabel
D

Parkeergelegenheid

Aanwezig
Ja
Soort parkeergelegenheid
Openbaar
Meld een probleem met deze woning