Contact met de makelaar

Deze woning is gevonden buiten ons eigen netwerk. Met de knop hieronder kom je direct bij de aanbieder terecht.

Nieuw

Marktstraat 47

Bekijk kaart
6461 CZ Kerkrade (Kerkrade-Centrum)
€ 230.000 k.k.
  • 160 m²
  • 6 kamers
  • 1935

Samenvatting

  • Deze woning wordt sinds 29 januari 2026 aangeboden door Lassoo Makelaars & Taxateurs;
  • De tussenwoning heeft een woonoppervlakte van 160 m² en beschikt over 6 kamers, waarvan 4 slaapkamers;
  • De woning is gebouwd In 1935 en ligt in de buurt Kerkrade-Centrum in Kerkrade.

Beschrijving

Welkom in Marktstraat 47, een karaktervolle jaren ’30 woning in het hart van Kerkrade. Deze ruime woning op een perceel van 173 m² heeft een woonoppervlakte van ca. 160 m² en biedt veel mogelijkheden voor modernisering. De indeling met diverse woonlagen en royale ruimtes maakt het een ideaal huis voor wie op zoek is naar charme en veelzijdigheid.

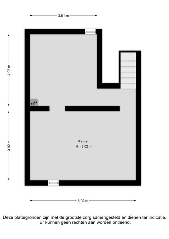
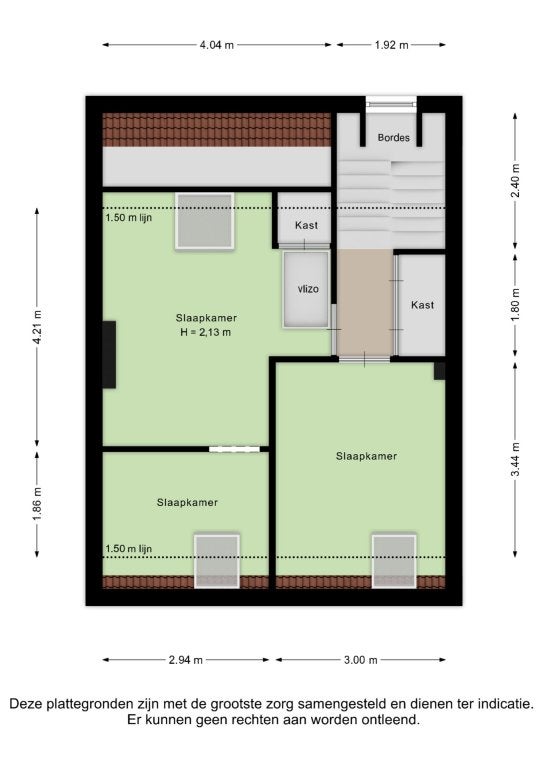
In het souterrain vindt u extra bergruimte en de cv-installatie. De begane grond heeft een sfeervolle woonkamer met een glas-in-loodraam, de keuken is praktisch ingericht en biedt toegang tot de serre en badkamer. Op de eerste verdieping zijn er een royale woonruimte met open keuken, een slaapkamer met wastafel, en toegang tot het dakterras. De tweede verdieping biedt twee slaapkamers en een muurkast. De garage beschikt over twee kantelpoorten en een keukenblok.

Overdracht

Vraagprijs
€ 230.000 k.k.
Aangeboden sinds
29-01-2026
Status
Beschikbaar
Beschikbaar
Per direct

Oppervlakte en inhoud

Woonoppervlakte
160 m²
Perceeloppervlakte
173 m²

Bouw

Type woning
Huis
Soort woning
Tussenwoning (rijtjeshuis), Eengezinswoning
Soort bouw
Bestaande bouw
Bouwjaar
1935

Indeling

Aantal kamers
6
Aantal slaapkamers
4
Aantal badkamers
2

Buitenruimte

Dakterras
Niet aanwezig

Energie

Energielabel
G
Meld een probleem met deze woning