- 260 m²
- 7 kamers
- 1911
Samenvatting
- Deze woning wordt sinds 29 januari 2026 aangeboden door Lassoo Makelaars & Taxateurs;
- De tussenwoning heeft een woonoppervlakte van 260 m² en beschikt over 7 kamers, waarvan 8 slaapkamers;
- De woning is gebouwd In 1911 en ligt in de buurt Bleijerheide in Kerkrade.
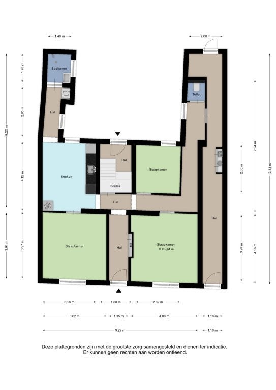
Beschrijving
Aan de Pricksteenweg in Kerkrade staat een grote halfvrijstaande eengezinswoning met een woonoppervlakte van 260 m², gebouwd in 1911. Deze woning biedt volop mogelijkheden voor modern woongenot, met drie woonlagen, meerdere badkamers en een tuin, wat het ideaal maakt voor een groot gezin of dubbele bewoning. Het perceel is 227 m² groot en de inhoud bedraagt ca. 988 m³.
In het souterrain vindt u een provisiekelder voor opslag. De eerste verdieping bevat drie slaapkamers, een aparte toiletruimte, keuken en badkamer. De tweede verdieping heeft vier slaapkamers en een woonkamer. De derde verdieping biedt extra leefruimte met een woonkamer, drie slaapkamers, keuken en badkamer, perfect voor inwonenden. De tuin achter de woning biedt ruimte voor een buitenplek.
Overdracht
- Vraagprijs
- € 299.000 k.k.
- Aangeboden sinds
- 29-01-2026
- Status
- Beschikbaar
- Beschikbaar
- Per direct
Oppervlakte en inhoud
- Woonoppervlakte
- 260 m²
- Perceeloppervlakte
- 227 m²
Bouw
- Type woning
- Huis
- Soort woning
- Tussenwoning (rijtjeshuis), Eengezinswoning
- Soort bouw
- Bestaande bouw
- Bouwjaar
- 1911
Indeling
- Aantal kamers
- 7
- Aantal slaapkamers
- 8
- Aantal badkamers
- 3
Buitenruimte
- Dakterras
- Niet aanwezig
Energie
- Energielabel
- E