Contact met de makelaar

Deze woning is gevonden buiten ons eigen netwerk. Met de knop hieronder kom je direct bij de aanbieder terecht.

Nieuw

Hertenweide 13

Bekijk kaart
6463 PA Kerkrade (Erenstein)
€ 685.000 k.k.
  • 175 m²
  • 5 kamers
  • 1999

Samenvatting

  • Deze woning wordt sinds 29 januari 2026 aangeboden door Lassoo Makelaars & Taxateurs;
  • De tussenwoning heeft een woonoppervlakte van 175 m² en beschikt over 5 kamers, waarvan 4 slaapkamers;
  • De woning is gebouwd In 1999 en ligt in de buurt Erenstein in Kerkrade.

Beschrijving

Aan de rand van het centrum van Kerkrade, in de wijk De Hertenweide, vindt u deze royale woning. Met een woonoppervlakte van 175 m² en een perceel van 671 m² biedt het huis veel ruimte en comfort. Voorzieningen zoals winkels, scholen en het treinstation zijn op loopafstand, en uitvalswegen bieden goede verbindingen met Aken, Heerlen en Maastricht.

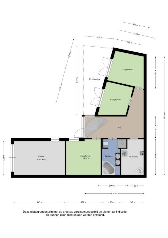
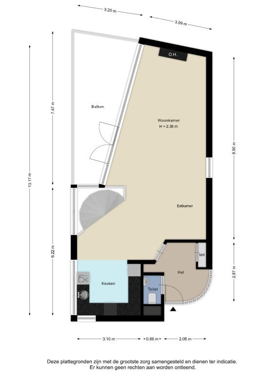
Deze woning beschikt over meerdere niveaus en heeft drie slaapkamers, twee badkamers, een royale tuin met overkapping, tuinhuis en garage. Op niveau -1 bevinden zich slaapkamers met toegang tot de tuin en een luxe badkamer. Het hoofdverdiep heeft een lichte woonkamer met open keuken, terwijl de master suite op niveau 1 een eigen dakterras biedt. Dit huis is perfect voor gezinnen die op zoek zijn naar ruimte en bereikbaarheid.

Overdracht

Vraagprijs
€ 685.000 k.k.
Aangeboden sinds
29-01-2026
Status
Beschikbaar
Beschikbaar
Per direct

Oppervlakte en inhoud

Woonoppervlakte
175 m²
Perceeloppervlakte
671 m²

Bouw

Type woning
Huis
Soort woning
Tussenwoning (rijtjeshuis), Eengezinswoning
Soort bouw
Bestaande bouw
Bouwjaar
1999

Indeling

Aantal kamers
5
Aantal slaapkamers
4
Aantal badkamers
2

Buitenruimte

Dakterras
Niet aanwezig

Energie

Energielabel
C
Meld een probleem met deze woning