Contact met de makelaar

Deze woning is gevonden buiten ons eigen netwerk. Met de knop hieronder kom je direct bij de aanbieder terecht.

Nieuw

Middelstegracht 19

Bekijk kaart
2312 TR Leiden (Pancras-Oost)
€ 395.000 k.k.
  • 66 m²
  • 3 kamers
  • 1750

Samenvatting

  • Deze woning wordt sinds 16 januari 2026 aangeboden door Hoekstra & Van Eck Leiden;
  • De tussenwoning heeft een woonoppervlakte van 66 m² en beschikt over 3 kamers, waarvan 1 slaapkamer;
  • De woning is gebouwd In 1750 en ligt in de buurt Pancras-Oost in Leiden.

Beschrijving

Direct online een bezichtiging inplannen? Ga naar onze website!

Charmant wevershuisje gelegen aan de rustige maar centraal gelegen Middelstegracht. De woning is verhuurd geweest en mogelijk gemaakt voor dubbele bewoning. Er zijn 2 keukens aanwezig en 2 badkamers.
De keuken en badkamer op de begane grond zijn gemoderniseerd. Op de eerste verdieping zijn de keuken en badkamer eenvoudig te noemen. Maar, er is hier dan wel een groot dakterras aanwezig.

Locatie
De Middelstegracht is een rustige straat met veel parkeergelegenheid (alleen voor vergunninghouders) in het hart van Leiden, een historische stad met een levendige sfeer. Hier geniet u van de rust van een woonwijk zonder horeca in de directe omgeving, terwijl u op loopafstand bent van winkels, musea, restaurants, en openbaar vervoer. Leiden staat bekend om zijn rijke historie, schilderachtige grachten en prachtige parken, ideaal voor iedereen die het beste van stadse allure en rust zoekt.

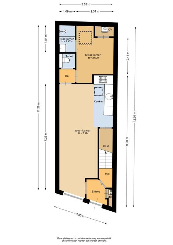
Indeling:
Begane grond: Ruime hal met meterkast.

Toegang tot de woonkamer met open keuken. De open keuken is gemoderniseerd en voorzien van diverse inbouwapparatuur waaronder een koelkast met vriesvak, 4 pits gasfornuis, afzuigkap en vaatwasser. Verder is de woonkamer voorzien van een ruime trapkast. Daglichttoetreding komt via het raamkozijn aan de voorzijde van de woning en een lichtkoepel in de slaapkamer.

Modern apart toilet met fonteintje.
(Slaap)kamer met vaste kast met hierin de cv opstelplaats (Remeha). Via de kamer is er toegang tot de gemoderniseerde badkamer. De badkamer is voorzien van een douche en wastafelmeubel.

Eerste verdieping:
Via een (af te sluiten) deur gaat u met de trap naar de eerste verdieping.

Hier vindt u een woon/slaapkamer met open keuken met keukenblok.
De badkamer is voorzien van een eenvoudige douche en toilet.

Het dakterras is bereikbaar via de keuken.

Bijzonderheden:
- Dakterras aanwezig
- De woning is verhuurd geweest voor dubbele bewoning. Niet bewoningsclausule van toepassing
- Asbest- en ouderdomsclausule van toepassing
- Notariskeuze voorbehouden aan verkoper
- Gelegen in beschermd stads/dorpsgezicht
- Oplevering 31 maart 2026

Overdracht

Vraagprijs
€ 395.000 k.k.
Aangeboden sinds
16-01-2026
Status
Beschikbaar
Beschikbaar
In overleg

Oppervlakte en inhoud

Woonoppervlakte
66 m²
Perceeloppervlakte
51 m²
Inhoud
256 m³

Bouw

Type woning
Huis
Soort woning
Tussenwoning (rijtjeshuis), Eengezinswoning
Soort bouw
Bestaande bouw
Bouwjaar
1750

Indeling

Aantal kamers
3
Aantal slaapkamers
1

Buitenruimte

Balkon
Niet aanwezig
Tuin
Niet aanwezig
Dakterras
Niet aanwezig

Energie

Energielabel
E

Garage

Aanwezig
Nee
Meld een probleem met deze woning