- 261 m²
- 8 kamers
- 2006
Samenvatting
- Deze woning wordt sinds 28 oktober 2025 aangeboden door FYN Makelaardij;
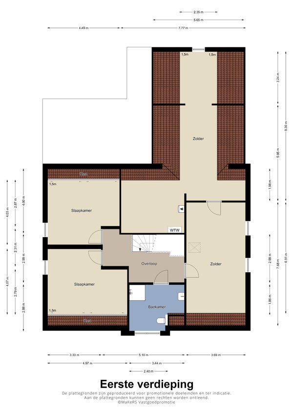
- De tussenwoning heeft een woonoppervlakte van 261 m² en beschikt over 8 kamers, waarvan 4 slaapkamers;
- De woning is gebouwd In 2006 en ligt in de buurt Maria Hoop in Maria Hoop.
Beschrijving
Overdracht
- Vraagprijs
- € 695.000 k.k.
- Aangeboden sinds
- 28-10-2025
- Status
- Beschikbaar
- Beschikbaar
- In overleg
Oppervlakte en inhoud
- Woonoppervlakte
- 261 m²
- Perceeloppervlakte
- 880 m²
Bouw
- Type woning
- Huis
- Soort woning
- Tussenwoning (rijtjeshuis), Eengezinswoning
- Soort bouw
- Bestaande bouw
- Bouwjaar
- 2006
Indeling
- Aantal kamers
- 8
- Aantal slaapkamers
- 4
- Aantal badkamers
- 2
Buitenruimte
- Dakterras
- Niet aanwezig
Energie
- Energielabel
- A