Contact met de makelaar

Deze woning is gevonden buiten ons eigen netwerk. Met de knop hieronder kom je direct bij de aanbieder terecht.

Verkocht onder voorbehoud

Pastoor Joannes Aussemsstraat 39

Bekijk kaart
6231 JL Meerssen (Meerssen)
€ 369.000 k.k.
  • 90 m²
  • 6 kamers
  • 1964

Samenvatting

  • Deze woning wordt sinds 6 weken aangeboden door Piet Stohr Makelaardij;
  • De hoekwoning heeft een woonoppervlakte van 90 m² en beschikt over 6 kamers, waarvan 4 slaapkamers;
  • De woning is gebouwd In 1964 en ligt in de buurt Meerssen in Meerssen.

Beschrijving

BEZICHTIGINGEN:
woensdagmiddag 10 december en donderdagochtend 11 december UITSLUITEND OP AFSPRAAK. Bel of mail Piet!

Prachtige instapklare hoekwoning in Meerssen-West.

Typering:
De woning is in 1964 gebouwd en heeft in 2022 een complete renovatie ondergaan. Meerssen-West ligt op een ideale locatie nabij het gezellige centrum van Meerssen. Binnen slechts enkele minuten wandelen ben je op de markt, waar je heerlijk kunt shoppen of een terrasje kunt pakken. In de directe omgeving vind je basisscholen en een middelbare school, ideaal voor gezinnen met kinderen. Met de auto ben je zo op de A2 richting Maastricht, Luik, of Eindhoven en de A79 naar Heerlen en Aken. De buurt kenmerkt zich door een mix van jonge gezinnen en stellen, wat zorgt voor een levendige en dynamische samenstelling.

Souterrain:
In het souterrain bevindt zich een handige provisiekelder van circa 8 m². Perfect voor het opslaan van voorraad en andere spullen die je uit het zicht wilt houden.

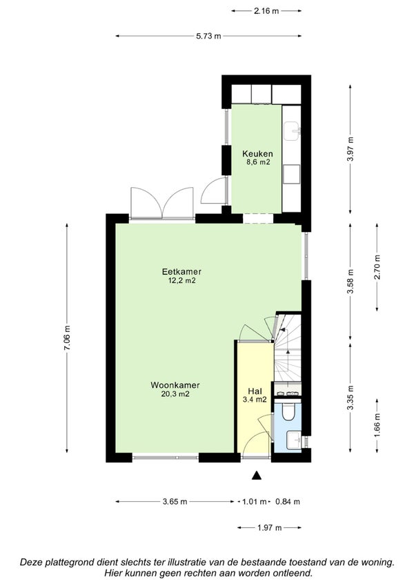
Begane grond:
Bij binnenkomst betreed je een centrale alwaar het modern toilet en de meterkast. De hal biedt toegang tot de royale lichte L-woon/eetkamer. Hier kijk je uit op de tuin. De woonkamer (met vloerverwarming) heeft een stijlvolle laminaatvloer en fraaie wandverlichting. De aangrenzende moderne keuken is van alle gemakken voorzien met alle benodigde apparatuur zoals een inductiekookplaat, heteluchtoven, magnetron, koel/vriescombinatie, afzuigkap en vaatwasser. De royale tuin is ideaal voor gezinnen en heeft een heerlijk terras om in de zomermaanden van te genieten. Via de nieuwe poort heb je ook een handige achterom.

1e verdieping:
Op deze verdieping vind je een prachtige badkamer uitgerust met een ruime inloopdouche en een luxe wastafelmeubel. Er zijn hier twee, eventueel drie, slaapkamers met veel daglicht. De masterbedroom heeft een eigentijdse dressingroom ensuite, een must voor een moderne leefstijl.

2e verdieping:
De zolderverdieping biedt een knusse slaapkamer met een kleine dakkapel. Daarnaast vind je hier een overloop met cv-hok en plaatsing van de cv-combiketel (Hesi, huur, 2023).

Algemeen:
Bouwjaar 1964, gerenoveerd in 2022, perceelgrootte: 337 m2, gebruiksoppervlakte wonen: ca. 90 m2, overige ruimten (zolder en kelder): ca. 20 m2, inhoud ca. 400 m3, spouwmuurisolatie (nageïsoleerd), dakisolatie en vloerisolatie (bieden nageisoleerd) , nieuwe kunststof kozijnen met dubbele beglazing, vloerverwarming begane grond; geheel gemoderniseerd en instapklaar; 3, mogelijk 4 slaapkamers; modern interieur met oog voor detail; ligging in een kinderrijke buurt; woning in nieuwstaat.

Aanvaarding in onderling overleg.

Ter bescherming van de belangen van zowel koper als verkoper, wordt uitdrukkelijk gesteld dat een koopovereenkomst met betrekking tot deze onroerende zaak eerst dan tot stand komt nadat koper en verkoper de koopovereenkomst hebben getekend (“schriftelijkheidsvereiste”).

De termijn die wordt opgenomen voor eventuele (overeengekomen) ontbindende voorwaarden (bv. financiering) is in de regel 4 tot 6 weken na het sluiten van de mondelinge wilsovereenkomst.

Koper is te allen tijde gerechtigd voor eigen rekening een bouwkundige keuring te (laten) verrichten dan wel andere adviseurs te raadplegen teneinde een goed inzicht te verkrijgen over de staat van onderhoud.

De waarborgsom/bankgarantie is 10% van de koopsom. De koper dient deze 2 weken ná het vervallen van de ontbindende voorwaarden bij de desbetreffende notaris te deponeren.

Deze informatie is door ons met de nodige zorgvuldigheid samengesteld. Onzerzijds wordt echter geen enkele aansprakelijkheid aanvaard voor enige onvolledigheid, onjuist of anderszins, dan wel de gevolgen daarvan. Alle opgegeven maten en oppervlakten zijn indicatief.

Ben je nieuwsgierig geworden en wil je deze woning met eigen ogen bewonderen? Neem gerust contact op voor een bezichtiging. We laten je graag zien wat deze woning in Meerssen te bieden heeft!

Overdracht

Vraagprijs
€ 369.000 k.k.
Aangeboden sinds
04-12-2025
Status
Verkocht onder voorbehoud
Beschikbaar
Per direct
Onderhoudsstaat
Zeer goed

Oppervlakte en inhoud

Woonoppervlakte
90 m²
Perceeloppervlakte
337 m²
Inhoud
396 m³

Bouw

Type woning
Huis
Soort woning
Hoekwoning, Eengezinswoning
Soort bouw
Bestaande bouw
Bouwjaar
1964
Ligging
In een woonwijk

Indeling

Aantal kamers
6
Aantal slaapkamers
4
Aantal woonlagen
4

Buitenruimte

Balkon
Niet aanwezig
Tuin
Aanwezig (120 m², gelegen op het noordwesten)
Tuinbeschrijving
achtertuin, voortuin
Dakterras
Niet aanwezig

Energie

Verwarming
CV-ketel
Warm water
CV-ketel
Cv-ketel
HR (uit 2023, Gehuurd)
Energielabel
E

Parkeergelegenheid

Aanwezig
Ja
Soort parkeergelegenheid
Openbaar

Garage

Aanwezig
Nee
Meld een probleem met deze woning