Contact met de makelaar

Deze woning is gevonden buiten ons eigen netwerk. Met de knop hieronder kom je direct bij de aanbieder terecht.

Nieuw

Van 't Santstraat 28

Bekijk kaart
6523 BG Nijmegen (Hengstdal)
Prijs op aanvraag
  • 104 m²
  • 4 kamers
  • 1911

Samenvatting

  • Deze woning wordt sinds 31 januari 2026 aangeboden door Van Breukelen Makelaardij;
  • De tussenwoning heeft een woonoppervlakte van 104 m² en beschikt over 4 kamers, waarvan 3 slaapkamers;
  • De woning is gebouwd In 1911 en ligt in de buurt Hengstdal in Nijmegen;
  • De woning beschikt onder andere over de volgende voorzieningen: Zolder, Kelder, Mechanische ventilatie, Douche, Toilet.

Beschrijving

In Nijmegen-Oost gelegen karakteristiek, instapklaar, uitgebouwd en uitstekend onderhouden woonhuis met ruime kelder (42 m²), veranda en achtertuin op het zuiden.

Kelder: (berg)ruimte met opstelplaats omvormer, waterontharder, wasmachineaansluiting en deur naar buitentrap aan de voorzijde.

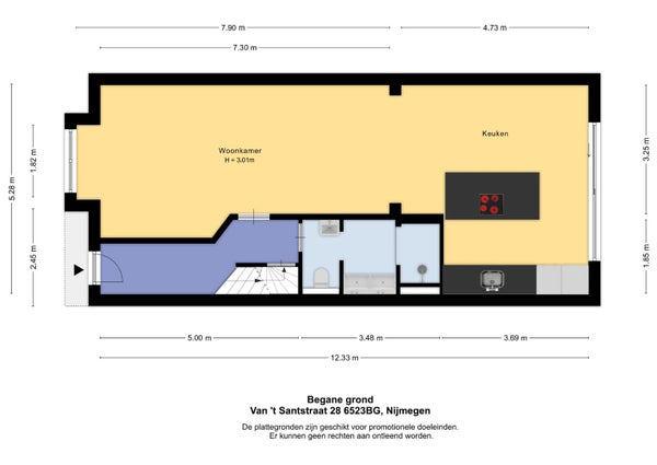
Begane grond: entree, gang, trapopgang, deur naar kelder, badkamer met fontein, wandcloset, wastafelmeubel en inloopdouche, lichte woonkamer met hoog plafond en erker, luxe keuken (2022) in uitbouw met kookeiland, keukeninrichting in lengteopstelling, inbouwapparatuur en aluminium schuifpui naar de veranda (2023).

Eerste verdieping: overloop met entree zolder, slaapkamer aan de voorzijde met dakkapel, slaapkamer aan de voorzijde, slaapkamer aan de achterzijde met dakkapel, toilet met fontein, vaste kast met opstelplaats cv-combiketel.

Zolder: bergruimte.

Bijzonderheden:

  • de begane grond is voorzien van vloerverwarming;
  • voorzien van mechanische ventilatie t.b.v. van badkamer en toilet;
  • voorzien van elektrisch zonnescherm;
  • voorzien van 14 zonnepanelen;
  • de groepenkast is vernieuwd en voorbereid op een 3-fasenaansluiting;
  • het betreft een stadsbeeldobject;
  • het gebied is aangewezen als gemeentelijk beschermd stadsbeeld;
  • nabij stadscentrum, voorzieningen, Radboudumc, Radboud Universiteit, HAN en bossen.

Overdracht

Vraagprijs
Prijs op aanvraag
Aangeboden sinds
31-01-2026
Status
Beschikbaar
Beschikbaar
In overleg
Bijzonderheden
Beschermd stads- of dorpsgezicht

Oppervlakte en inhoud

Woonoppervlakte
104 m²
Perceeloppervlakte
162 m²
Inhoud
533 m³

Bouw

Type woning
Huis
Soort woning
Tussenwoning (rijtjeshuis), Eengezinswoning
Soort bouw
Bestaande bouw
Bouwjaar
1911
Ligging
In een woonwijk

Indeling

Aantal kamers
4
Aantal slaapkamers
3
Aantal badkamers
1
Voorzieningen
  • Zolder
  • Kelder
  • Mechanische ventilatie
  • Douche
  • Toilet

Buitenruimte

Balkon
Niet aanwezig
Tuin
Aanwezig (gelegen op het zuiden)
Dakterras
Niet aanwezig

Energie

Isolatie
Dubbele beglazing, Vloerisolatie, Dakisolatie, Enkele beglazing
Verwarming
CV-ketel, Gedeeltelijke vloerverwarming
Warm water
CV-ketel
Energielabel
B

Parkeergelegenheid

Aanwezig
Nee

Garage

Aanwezig
Nee
Meld een probleem met deze woning