Contact met de makelaar

Deze woning is gevonden buiten ons eigen netwerk. Met de knop hieronder kom je direct bij de aanbieder terecht.

Nieuw

Alexanderpark 109

Bekijk kaart
3253 MX Ouddorp (Ouddorp klepperstee klarebeek)
€ 225.000 k.k.
  • 60 m²
  • 4 kamers
  • 1973

Samenvatting

  • Deze woning wordt sinds 28 januari 2026 aangeboden door Bezuijen Bemiddeling;
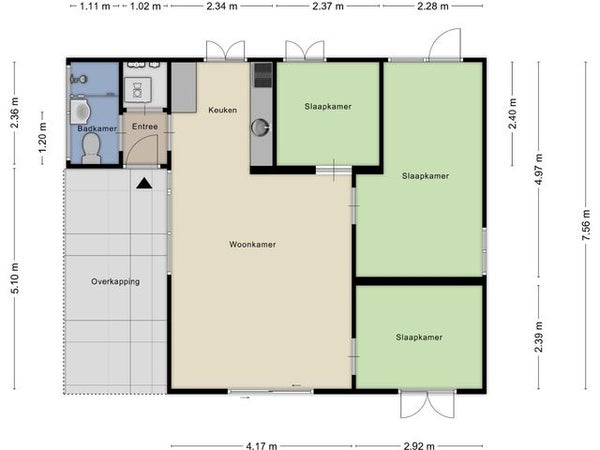
  • De tussenwoning heeft een woonoppervlakte van 60 m² en beschikt over 4 kamers, waarvan 3 slaapkamers;
  • De woning is gebouwd In 1973 en ligt in de buurt Ouddorp klepperstee klarebeek in Ouddorp.

Beschrijving

In het rustige Alexanderpark in Ouddorp aan zee bevindt zich een charmante vakantiewoning. Met een woonoppervlakte van circa 60 m² biedt dit huis voldoende ruimte voor familie of vrienden. De lichte woonkamer heeft een schuifpui naar de groene tuin, waar volop privacy is. De woning beschikt over drie slaapkamers en een badkamer met douche, toilet en wastafel. Buiten geniet je van een veranda, perfect voor ontbijten in de zon of ontspannen met een glas wijn. Gelegen op 265 m² grond met een houten berging voor fietsen en strandspullen, is dit de ideale uitvalsbasis nabij de natuur en het dorpscentrum. De woning is goed geïsoleerd met dubbel glas en heeft recentelijk een nieuw dak gekregen.

Overdracht

Vraagprijs
€ 225.000 k.k.
Aangeboden sinds
28-01-2026
Status
Beschikbaar
Beschikbaar
Per direct

Oppervlakte en inhoud

Woonoppervlakte
60 m²
Perceeloppervlakte
265 m²

Bouw

Type woning
Huis
Soort woning
Tussenwoning (rijtjeshuis), Eengezinswoning
Soort bouw
Bestaande bouw
Bouwjaar
1973

Indeling

Aantal kamers
4
Aantal slaapkamers
3
Aantal badkamers
1

Buitenruimte

Dakterras
Niet aanwezig
Meld een probleem met deze woning