Contact met de makelaar

Deze woning is gevonden buiten ons eigen netwerk. Met de knop hieronder kom je direct bij de aanbieder terecht.

Nieuw

Klarebeekweg 1

Bekijk kaart
3253 LC Ouddorp (Ouddorp klepperstee klarebeek)
€ 314.500 k.k.
  • 50 m²
  • 3 kamers
  • 2025

Samenvatting

  • Deze woning wordt sinds 28 januari 2026 aangeboden door Bezuijen Bemiddeling;
  • De tussenwoning heeft een woonoppervlakte van 50 m² en beschikt over 3 kamers, waarvan 2 slaapkamers;
  • De woning is gebouwd In 2025 en ligt in de buurt Ouddorp klepperstee klarebeek in Ouddorp.

Beschrijving

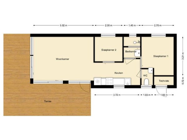
Welkom bij Recreatieoord Duynhof, een exclusief recreatiepark in Ouddorp aan Zee, waar rust en natuur samenkomen. Deze vrijstaande New Bay chalet op eigen grond bevindt zich op een kleinschalig park met slechts acht woningen. Bij binnenkomst in de gelijkvloerse chalet valt de open en lichte leefruimte op. De ruime woonkamer heeft grote schuifpuien naar het houten terras. De moderne keuken is van hoogwaardige inbouwapparatuur en biedt ruimte voor gezellige diners. Er zijn twee slaapkamers, waarbij de master bedroom extra comfort biedt. De badkamer is voorzien van een inloopdouche en wastafelmeubel. Het zonnige terras en de speelse tuin bieden privacy en ruimte. Duynhof biedt een ideale balans tussen ontspanning en de nabijheid van natuur en het strand.

Overdracht

Vraagprijs
€ 314.500 k.k.
Aangeboden sinds
28-01-2026
Status
Beschikbaar
Beschikbaar
Per direct

Oppervlakte en inhoud

Woonoppervlakte
50 m²

Bouw

Type woning
Huis
Soort woning
Tussenwoning (rijtjeshuis), Eengezinswoning
Soort bouw
Bestaande bouw
Bouwjaar
2025

Indeling

Aantal kamers
3
Aantal slaapkamers
2
Aantal badkamers
1

Buitenruimte

Dakterras
Niet aanwezig
Meld een probleem met deze woning