Contact met de makelaar

Deze woning is gevonden buiten ons eigen netwerk. Met de knop hieronder kom je direct bij de aanbieder terecht.

Nieuw

Klarebeekweg 3

Bekijk kaart
3253 LC Ouddorp (Ouddorp klepperstee klarebeek)
€ 349.500 k.k.
  • 50 m²
  • 3 kamers
  • 2025

Samenvatting

  • Deze woning wordt sinds 28 januari 2026 aangeboden door Bezuijen Bemiddeling;
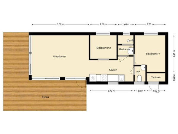
  • De tussenwoning heeft een woonoppervlakte van 50 m² en beschikt over 3 kamers, waarvan 2 slaapkamers;
  • De woning is gebouwd In 2025 en ligt in de buurt Ouddorp klepperstee klarebeek in Ouddorp.

Beschrijving

Welkom op Recreatieoord Duynhof, een exclusief recreatiepark in Ouddorp aan Zee, met een vrijstaande chalet van het type New Bay. Dit park, met slechts acht recreatiewoningen, biedt een rustige en natuurrijke omgeving, dicht bij de zee en het strand.

De volledig gelijkvloerse chalet heeft een open en lichte leefruimte met een royale woonkamer die grote schuifpuien naar het houten terras heeft. De moderne keuken is voorzien van hoogwaardige apparatuur en biedt ruimte voor gezellig tafelen. Er zijn twee slaapkamers, een master bedroom met extra comfort, en een moderne badkamer met inloopdouche.

Buiten is er een ruim zonnig terras en een speelse tuin met privacy. Parkeren kan op het verharde terrein nabij de woning. Ideaal voor ontspanning, met schitterende natuur en diverse watersportmogelijkheden in de omgeving.

Overdracht

Vraagprijs
€ 349.500 k.k.
Aangeboden sinds
28-01-2026
Status
Beschikbaar
Beschikbaar
Per direct

Oppervlakte en inhoud

Woonoppervlakte
50 m²

Bouw

Type woning
Huis
Soort woning
Tussenwoning (rijtjeshuis), Eengezinswoning
Soort bouw
Bestaande bouw
Bouwjaar
2025

Indeling

Aantal kamers
3
Aantal slaapkamers
2
Aantal badkamers
1

Buitenruimte

Dakterras
Niet aanwezig
Meld een probleem met deze woning