Contact met de makelaar

Deze woning is gevonden buiten ons eigen netwerk. Met de knop hieronder kom je direct bij de aanbieder terecht.

Nieuw

Horrelshoogte 43

Bekijk kaart
3253 PR Ouddorp (Ouddorp oude nieuwlandseweg)
€ 170.000 k.k.
  • 41 m²
  • 3 kamers
  • 1971

Samenvatting

  • Deze woning wordt sinds 28 januari 2026 aangeboden door Bezuijen Bemiddeling;
  • De tussenwoning heeft een woonoppervlakte van 41 m² en beschikt over 3 kamers, waarvan 2 slaapkamers;
  • De woning is gebouwd In 1971 en ligt in de buurt Ouddorp oude nieuwlandseweg in Ouddorp.

Beschrijving

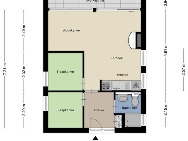
Dit vrijstaande vakantiehuis aan Horrelshoogte 43 in Ouddorp biedt de perfecte plek voor rust en ontspanning. Op een perceel van 275 m² vind je een zonnige tuin die uitnodigt om te tuinieren, buiten te eten of gewoon van de zon te genieten. Bij binnenkomst krijg je toegang tot een lichte woonkamer met open keuken, die direct aansluit op de tuin. Er zijn twee slaapkamers en een badkamer met douche, toilet en wastafel. De woning is goed onderhouden en heeft een praktische berging in de tuin voor extra opbergruimte. Met een woonoppervlakte van 41 m² en een inhoud van 152 m³, biedt het voldoende ruimte voor persoonlijke inrichting. De locatie is ideaal, vlakbij het strand en natuurgebieden, en perfect voor een vakantie of als tweede huis.

Overdracht

Vraagprijs
€ 170.000 k.k.
Aangeboden sinds
28-01-2026
Status
Beschikbaar
Beschikbaar
Per direct

Oppervlakte en inhoud

Woonoppervlakte
41 m²
Perceeloppervlakte
275 m²

Bouw

Type woning
Huis
Soort woning
Tussenwoning (rijtjeshuis), Eengezinswoning
Soort bouw
Bestaande bouw
Bouwjaar
1971

Indeling

Aantal kamers
3
Aantal slaapkamers
2
Aantal badkamers
1

Buitenruimte

Dakterras
Niet aanwezig
Meld een probleem met deze woning