Nieuw
Noordzeepark-Doggersbank 15
Bekijk kaart3253 MZ Ouddorp (Ouddorp buitengebied)
€ 418.000
k.k.
- 63 m²
- 4 kamers
- 1991
Samenvatting
- Deze woning wordt sinds 28 januari 2026 aangeboden door Bezuijen Bemiddeling;
- De tussenwoning heeft een woonoppervlakte van 63 m² en beschikt over 4 kamers, waarvan 3 slaapkamers;
- De woning is gebouwd In 1991 en ligt in de buurt Ouddorp buitengebied in Ouddorp.
Beschrijving
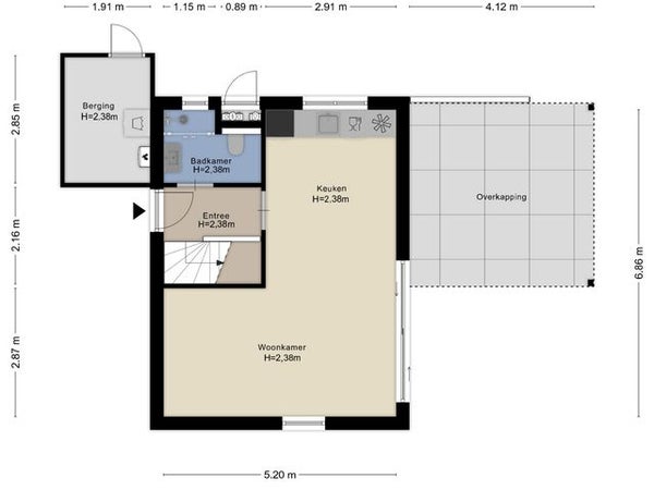
Deze vrijstaande recreatiewoning is gelegen op een idyllische plek in het Noordzeepark, op een perceel van 720 m² eigen grond. Op loop- en fietsafstand van de prachtige stranden van de Noordzee, biedt deze woning een entreehal met trapopgang en een gemoderniseerde badkamer met inloopdouche en toilet. De living met pvc-laminaatvloer leidt via een schuifpui naar een terras met natuursteen en overkapping. De open keuken is van alle gemakken voorzien zoals een gasfornuis en vaatwasser. Op de bovenverdieping zijn drie ruime slaapkamers. De omliggende tuin is zonnig, volledig omheind en geschikt voor honden, met extra berging en buitenkraan. Dit alles maakt het tot een fijne woning in een rustige omgeving, dicht bij de natuur van Ouddorp.
Overdracht
- Vraagprijs
- € 418.000 k.k.
- Aangeboden sinds
- 28-01-2026
- Status
- Beschikbaar
- Beschikbaar
- Per direct
Oppervlakte en inhoud
- Woonoppervlakte
- 63 m²
- Perceeloppervlakte
- 720 m²
Bouw
- Type woning
- Huis
- Soort woning
- Tussenwoning (rijtjeshuis), Eengezinswoning
- Soort bouw
- Bestaande bouw
- Bouwjaar
- 1991
Indeling
- Aantal kamers
- 4
- Aantal slaapkamers
- 3
- Aantal badkamers
- 1
Buitenruimte
- Dakterras
- Niet aanwezig