Contact met de makelaar

Deze woning is gevonden buiten ons eigen netwerk. Met de knop hieronder kom je direct bij de aanbieder terecht.

Dreesstraat 11

Bekijk kaart
5121 AJ Rijen (Vijf Eiken)
€ 449.000 k.k.
  • 138 m²
  • 4 kamers
  • 1971

Samenvatting

  • Deze woning wordt sinds 5 januari 2026 aangeboden door Roland Jansen Makelaars;
  • De geschakelde 2-onder-1-kapwoning heeft een woonoppervlakte van 138 m² en beschikt over 4 kamers, waarvan 3 slaapkamers;
  • De woning is gebouwd In 1971 en ligt in de buurt Vijf Eiken in Rijen;
  • De woning beschikt onder andere over de volgende voorzieningen: Bad, Glasvezelaansluiting, Schuifdeuren, Toilet.

Beschrijving

Deze ruime 2-onder-1 kapwoning ligt aan een rustige gelegen straatje. De woonkamer heeft een aanbouw, over de hele breedte van de woning, aan de achterzijde. Zowel de woonkamer als keuken zijn v.v. vloerverwarming. Er zijn 3 ruime slaapkamers (voorheen 4). De woning is verder voorzien van witte aluminium kozijnen met dubbel glas. Er is een tuin op het zuidwesten, eigen oprit met carport en garage. Bossen, basisscholen en uitvalswegen vindt u op korte afstand. U moet wel rekening houden met modernisering.

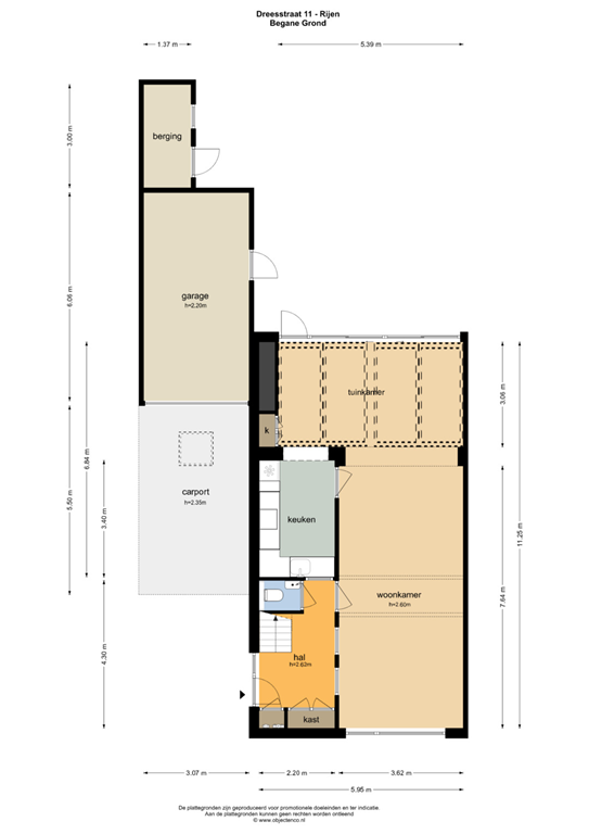
Entree/Hal
De entree is voorzien van een tegelvloer, garderobe, meterkast (7 groepen, 2 aardlekschakelaars) en toiletruimte met fonteintje. U vindt hier ook de trap naar de eerste etage.

De woonkamer:
De woonkamer (7,64 m. x 3,62 m.) is aan de achterzijde uitgebouwd (5,39 m. x 3,06 m.). Aan de voorzijde zijn er enkele sierbalken aangebracht. De gehele tegelvloer is v.v. vloerverwarming. Aan de achterzijde vindt u een loopdeur en schuifpui naar de achtertuin. Het dak van de aanbouw is van polycarbonaat waar veel licht doorheen valt. Alle witte aluminium kozijnen zijn v.v. dubbel glas.

De keuken
De half open keuken (3,40 m. x 2,20 m.) heeft een wit keukenblok v.v. een 4-pits inductie kookplaat met extra warmhoudpit, RVS afzuigkap, een koelkast, een vaatwasser en een combimagnetron. De lades zijn v.v. soft close. Er zijn onder- en bovenkasten en er is een praktisch apothekerskast. Er ligt een granieten werkblad. Ook hier is de tegelvloer v.v. vloerverwarming.

Overloop met toegang tot 2 ruime slaapkamers (voorheen 3), de badkamer en de trapopgang naar de 2e verdieping. De gehele 1e verdieping heeft witte aluminium kozijnen v.v. dubbel glas.

Slaapkamer 1:
Aan de achterzijde gelegen slaapkamer (5,95 m. x 4,40/2,82 m.) heeft nog 2 deuren. Dit waren voorheen 2 slaapkamers.

Slaapkamer 2
Aan de voorzijde van de woning gelegen ruime slaapkamer (3,63 m. x 3,63/2,71 m.).

De badkamer
De geheel betegelde badkamer (3,07 m. x 1,80 m.) is uitgerust met een ligbad, een staand toilet en een wastafelmeubel.

Middels een vaste trap te bereiken zolderverdieping. Op de overloop
(6,10 m. x 2,20 m.) vindt u de cv-ketel (Nefit, 2009). Er liggen tapijttegels. Het witte aluminium kozijn van de dakkapel is v.v. dubbel glas.

Slaapkamer 3
Deze ruime slaapkamer (5,10 m. x 3,64 m.) heeft een dakkapel aan de achterzijde v.v. witte aluminium kozijnen met dubbel glas.

De achtertuin
De tuin (ca. 15 m. x 9 m.) ligt op het (zuid)westen. De tuin is v.v. sierbestrating en vaste beplanting. U heeft toegang tot de garage en er staat een houten opslag (4 m²).

De garage
De garage (6,06 m. x 3,07 m. x 2,20 m. hoog) is v.v. elektra en er is een stalen kanteldeur en loopdeur naar de tuin. Voor de garage vindt u de oprit met carport (5,50 m. x 3,07 m. x 2,35 m. hoog) met v.v. een lichtkoepel. U kunt in de garage 1 auto parkeren en op de oprit nog eens 2 auto’s. U vindt hier ook een buitenkraan.

  • uitgebouwde 2 onder 1 kapwoning
  • met garage, carport en oprit
  • woonkamer en keuken zijn v.v. vloerverwarming
  • alle witte aluminium kozijnen zijn v.v. dubbel glas
  • 3 slaapkamers (voorheen 4)
  • Energielabel C
  • Nabij bosgebied, basisschool en uitvalswegen
  • U dient rekening te houden met modernisering

Reageer op tijd op nieuw woningaanbod

Meer dan de helft van de reacties komt binnen 48 uur. Ontvang direct notificaties bij nieuw aanbod en reageer sneller met Pararius+.

Probeer Pararius+ 14 dagen € 0,01

Overdracht

Vraagprijs
€ 449.000 k.k.
Aangeboden sinds
05-01-2026
Status
Beschikbaar
Beschikbaar
In overleg
Onderhoudsstaat
Redelijk

Oppervlakte en inhoud

Woonoppervlakte
138 m²
Perceeloppervlakte
273 m²
Inhoud
546 m³

Bouw

Type woning
Huis
Soort woning
Geschakelde 2-onder-1-kapwoning, Eengezinswoning
Soort bouw
Bestaande bouw
Bouwjaar
1971
Ligging
  • Aan een rustige weg
  • In een woonwijk
  • In bosrijke omgeving

Indeling

Aantal kamers
4
Aantal slaapkamers
3
Aantal badkamers
1
Aantal woonlagen
3
Voorzieningen
  • Bad
  • Glasvezelaansluiting
  • Schuifdeuren
  • Toilet

Buitenruimte

Balkon
Niet aanwezig
Tuin
Aanwezig (135 m², gelegen op het zuidwesten)
Tuinbeschrijving
achtertuin
Achterom aanwezig
Niet aanwezig
Dakterras
Niet aanwezig

Energie

Isolatie
Volledig geïsoleerd
Verwarming
CV-ketel, Gedeeltelijke vloerverwarming
Warm water
CV-ketel
Cv-ketel
Nefit (Gas, uit 2009, Eigendom)
Energielabel
C

Parkeergelegenheid

Aanwezig
Ja
Soort parkeergelegenheid
Openbaar

Garage

Aanwezig
Ja
Meld een probleem met deze woning