Contact met de makelaar

Deze woning is gevonden buiten ons eigen netwerk. Met de knop hieronder kom je direct bij de aanbieder terecht.

Nieuw

Zuider Kerkedijk 194

Bekijk kaart
3079 PB Rotterdam (Groot IJsselmonde)
€ 674.500 k.k.
  • 111 m²
  • 4 kamers
  • 1927

Samenvatting

  • Deze woning wordt sinds 28 januari 2026 aangeboden door Mijn Huis Verkoop Ik Zelf;
  • De vrijstaande woning heeft een woonoppervlakte van 111 m² en beschikt over 4 kamers;
  • De woning is gebouwd In 1927 en ligt in de buurt Groot IJsselmonde in Rotterdam.

Beschrijving

Uniek wonen aan de Zuider Kerkedijk – gerenoveerde dijkwoning met ca. 800 m² eigen grond

Uniek wonen aan de Zuider Kerkedijk: een karaktervolle, volledig gerenoveerde dijkwoning (2019–2022) met een uitzonderlijk groot perceel van circa 800 m². Deze woning combineert rust, ruimte en privacy met uitstekende bereikbaarheid en voorzieningen in de directe omgeving. Met een royale tuin, flinke schuur met krachtstroom, recent uitgevoerd funderingsherstel, zonnepanelen, luxe badkamer en een balkon met uitzicht over het gehele perceel, is dit een bijzonder compleet en toekomstbestendig huis binnen Rotterdam.

De woning ligt aan een doodlopende straat en is daardoor uitsluitend toegankelijk voor bestemmingsverkeer. Dit zorgt voor rust, veiligheid en een prettige woonomgeving, zeer geschikt voor gezinnen met kinderen. Parkeergelegenheid is ruim aanwezig, zowel op eigen terrein als in de straat.

Ondanks de rustige ligging is de ontsluiting uitstekend. Binnen enkele minuten bent u op de uitvalswegen en snelweg. Openbaar vervoer is op loopafstand (tram, bus, trein) aanwezig, een winkelcentrum voor de dagelijkse boodschappen ligt op circa drie minuten lopen, en ook het Maasstad Ziekenhuis bevindt zich in de directe nabijheid. De combinatie van rust, bereikbaarheid en voorzieningen maakt deze locatie bijzonder aantrekkelijk.

Kenmerken in het kort

Perceel van ca. 800 m² met veel privacy
Mogelijkheid tot diverse uitbreidingen, waaronder plaatsing van een mantelzorgwoning (conform geldende regelgeving)

  • Volledig gerenoveerd tussen 2019 en 2025
  • Deels nieuwe kozijnen (2025) met triple glas
  • Luxe, tijdloze badkamer met vloerverwarming
  • Open keuken met moderne inductieplaat met geïntegreerde afzuiging
  • Massieve eikenhouten vloer
  • Balkon van ca. 14 m² met uitzicht over de tuin
  • Funderingsherstel in 2021: stalen palen (22 m diep), volgestort met beton en constructief verbonden met de
    fundering
  • Recent gebouwde schuur van ca. 24 m² met krachtstroom, water en afvoer
  • 11 zonnepanelen
  • Parkeren op eigen terrein
  • Souterrain van ca. 24 m² met buiteningang

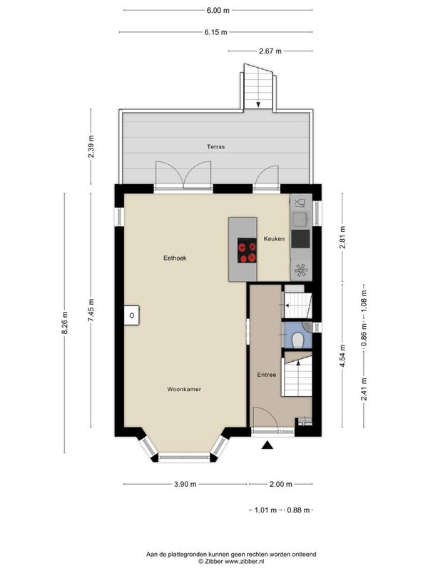
Indeling
Begane grond – sfeervol en functioneel

Via de hal met toilet, vernieuwde meterkast (2020, 3-fasen incl. krachtstroomgroep) en trapopgang bereikt u de woonkamer, keuken en het souterrain.

De woonkamer heeft een warme, huiselijke uitstraling dankzij de massieve eikenhouten vloer en de houtkachel met nieuw rookkanaal. De ruimte ontvangt prettig daglicht en voelt vooral intiem en sfeervol. Aan de achterzijde geven openslaande deuren toegang tot het balkon van circa 14 m², met vrij uitzicht over de diepe tuin.

De open keuken is praktisch en modern ingericht en voorzien van een grote inductieplaat met geïntegreerde afzuiging, ruimte voor een royale koelkast en een inbouwoven (aanwezig, momenteel defect). De kozijnen aan deze zijde zijn in 2025 vernieuwd en uitgevoerd met triple glas.

Eerste verdieping – drie kamers en luxe badkamer

Deze verdieping is volledig vernieuwd tussen 2019 en 2022 en beschikt over:

Een ruime slaapkamer met Velux dakraam

Een tweede slaapkamer, eveneens met Velux dakraam

Een derde kamer aan de voorzijde met kozijn uit 2021 (HR++), ideaal als kantoor, inloopkast of logeerkamer

De badkamer is modern en tijdloos afgewerkt met een regendouche en losse handdouche, een tweede toilet, Beton Cire vloerafwerking, elektrische vloerverwarming, badkamermeubel en handdoekkast. Twee Velux dakramen zorgen voor daglicht en ventilatie.

Souterrain – praktisch en veelzijdig

Onder de woning bevindt zich een souterrain van circa 24 m² met een hoogte van ca. 1,80 m. Deze ruimte is niet afgewerkt, maar zeer geschikt als werkplaats, opslag of technische ruimte. Hier bevinden zich de HR-cv-ketel (2020), extra bergruimte, toegang tot de kruipruimte en een deur naar buiten onder het balkon.
Alle installaties (elektra, water en afvoer) zijn hier uitstekend bereikbaar.

Tuin – ruimte, groen en toekomstmogelijkheden

De tuin is uitzonderlijk groot en groen, met volwassen beplanting, twee royale terrassen en veel privacy. Door de omvang en indeling biedt het perceel ruimschoots mogelijkheden voor toekomstgericht wonen.

Mogelijkheid mantelzorgwoning

Het perceel is meer dan groot genoeg om een mantelzorgwoning te plaatsen, zonder afbreuk te doen aan privacy of leefruimte van de hoofdwoning. Dit maakt de woning zeer geschikt voor gezinnen die vooruit willen denken en wonen willen combineren met zorg nabij. Realisatie is uiteraard onder voorbehoud van geldende wet- en regelgeving.

Bijgebouwen

Achter in de tuin staat een schuur van ca. 24 m², wind- en waterdicht en voorzien van krachtstroom, water, afvoer, binnen- en buitenverlichting en de mogelijkheid voor een internetaansluiting. Met dubbele openslaande deuren en een aparte loopdeur is deze ruimte ideaal als werkplaats, atelier, tuinkantoor of hobbyruimte.
Deze schuur behoeft nog wat afwerking (schilderwerk en dakgoten)

Naast de woning bevindt zich een eenvoudig tuinhuisje met stroomvoorziening, geschikt voor extra opslag.

Funderingsherstel en duurzaamheid

In 2021 is de woning professioneel gestabiliseerd met vijf stalen palen van 22 meter diep, volgestort met beton en constructief gekoppeld aan de bestaande fundering. Hiermee is de woning blijvend gestabiliseerd.
Daarnaast is de woning voorzien van 11 zonnepanelen, een HR-cv-ketel (2019), HR++/triple beglazing, wat bijdraagt aan lagere energielasten en comfortabel wonen.

De huidige maandelijkse energielasten zijn ca. 185 euro p/m
Huidig Energielabel: E

Een zeldzame combinatie

Een gerenoveerde dijkwoning met een perceel van circa 800 m², balkon, souterrain, schuur met krachtstroom, zonnepanelen, funderingsherstel, uitstekende ontsluiting én een rustige, kindvriendelijke woonomgeving — dit type woning komt zelden op de markt in Rotterdam.

Neem contact op voor een bezichtiging en ervaar zelf de ruimte, rust en mogelijkheden die deze woning biedt.

Gevonden op ******

Overdracht

Vraagprijs
€ 674.500 k.k.
Aangeboden sinds
28-01-2026
Status
Beschikbaar
Beschikbaar
In overleg

Oppervlakte en inhoud

Woonoppervlakte
111 m²
Perceeloppervlakte
800 m²
Inhoud
415 m³

Bouw

Type woning
Huis
Soort woning
Vrijstaande woning, Eengezinswoning
Soort bouw
Bestaande bouw
Bouwjaar
1927

Indeling

Aantal kamers
4

Buitenruimte

Tuin
Aanwezig
Dakterras
Niet aanwezig

Energie

Energielabel
E

Garage

Aanwezig
Nee
Meld een probleem met deze woning