Contact met de makelaar

Deze woning is gevonden buiten ons eigen netwerk. Met de knop hieronder kom je direct bij de aanbieder terecht.

Nieuw

Rekerdijk 31

Bekijk kaart
3079 TK Rotterdam (Groot IJsselmonde)
€ 349.500 k.k.
  • 70 m²
  • 4 kamers
  • 1963

Samenvatting

  • Deze woning wordt sinds 28 januari 2026 aangeboden door Mijn Huis Verkoop Ik Zelf;
  • De tussenwoning heeft een woonoppervlakte van 70 m² en beschikt over 4 kamers;
  • De woning is gebouwd In 1963 en ligt in de buurt Groot IJsselmonde in Rotterdam.

Beschrijving

Charmante woning in een rustige, groene omgeving van Rotterdam.

Aan de Rekerdijk ligt deze prettig ingedeelde woning op een praktische perceel, gelegen in een rustige straat met alle stedelijke voorzieningen van Rotterdam binnen handbereik. Een ideale combinatie van rust, bereikbaarheid en wooncomfort.
De woning bied een lichte en functionele leefruimte, met een logische indeling die zich uitstekend leent voor zowel starters als kleine gezinnen.
De omgeving kenmerkt zich door veel groen, water en ruimte wat zorgt voor een aangename woonbeleving.

Kortom: een verzorgde woning op een fijne locatie, met volop potentie om een comfortabel thuis te maken.

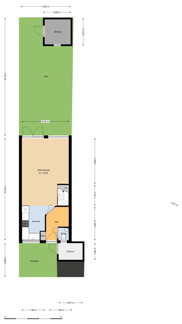
Indeling:

Begane grond,

Een redelijk ruime entree waarin zich de meterkast en de toilet bevind voorzien van een antraciet kleur laminaat met deur wat toegang bied tot de sfeervolle woonkamer met open keuken voorzien van inbouw apparatuur zoals de vaatwasser.
De woonkamer bied toegang tot de tuin middels openslaande deuren met hr+ beglazing wat zorgt voor voldoende licht inval en de warme sfeer.

Eerste verdieping:

Hier bevinden zich 3 slaapkamers waarvan 2 aan de achterzijde van de woning en een aan de voorzijde die aan de voorzijde is de grootste slaper.
In de voorhal bevind zich mooi afgewerkt de CV ketel en de opstelling van de wasmachine en droger. Hoewel de badkamer klein is, is deze praktisch ingericht en bied de kamer achter nog mogelijkheden voor uitbreiding.
De volledige verdieping is voorzien van een lichte laminaat vloer als ook de trap naar boven is mooi afgewerkt met laminaat .

Tuin:

Volledig onderhoudsvriendelijke achtertuin en gezien de lengte schikt voor plaatsen serre of overkapping met toegang tot achterom.

Bijzonderheden:

  • volledig HR+ beglazing
  • 12 zonnepanelen
  • airco
  • in de achtertuin is de mogelijkheid tot een maken van serre/ overkapping daar is voldoende ruimte voor

    Gevonden op ******

Overdracht

Vraagprijs
€ 349.500 k.k.
Aangeboden sinds
28-01-2026
Status
Beschikbaar
Beschikbaar
In overleg

Oppervlakte en inhoud

Woonoppervlakte
70 m²
Perceeloppervlakte
99 m²
Inhoud
245 m³

Bouw

Type woning
Huis
Soort woning
Tussenwoning (rijtjeshuis), Eengezinswoning
Soort bouw
Bestaande bouw
Bouwjaar
1963

Indeling

Aantal kamers
4

Buitenruimte

Tuin
Aanwezig
Dakterras
Niet aanwezig

Garage

Aanwezig
Nee
Meld een probleem met deze woning