Contact met de makelaar

Deze woning is gevonden buiten ons eigen netwerk. Met de knop hieronder kom je direct bij de aanbieder terecht.

Noordsingel 135 B

Bekijk kaart
3035 EN Rotterdam (Oude Noorden)
€ 840.000 k.k.
  • 224 m²
  • 7 kamers
  • 1888

Samenvatting

  • Deze woning wordt sinds 6 weken aangeboden door Mijn Huis Verkoop Ik Zelf;
  • De tussenwoning heeft een woonoppervlakte van 224 m² en beschikt over 7 kamers;
  • De woning is gebouwd In 1888 en ligt in de buurt Oude Noorden in Rotterdam.

Beschrijving

Unieke kans: 2 huisnummers in 1 koop!

Dit statig herenhuis van maar liefst 224 m2 biedt een zee aan ruimte en mogelijkheden.
De woning bevat in totaal 4 woonlagen en is gelegen op ruim 190 m2 eigen grond in de binnenstad van Rotterdam.

Je kunt heerlijk vertoeven in de 14 meter diepe zonnige voortuin (zuidwesten), of juist de koelte opzoeken in de achtertuin van 10 meter diep. Mede door de diepe voortuin biedt deze stadwoning een unieke combinatie van stadsleven, privacy en groen.

Het brede uitzicht over de Noordsingel is in elk seizoen prachtig. De singel is een beschermd stadsgezicht en op loopafstand van het stadscentrum en Centraal Station Rotterdam.

Er bevinden zich veel bijzondere winkel- en horecagelegenheden en voorzieningen in het bruisende Oude Noorden, alles binnen een paar minuten loop- en fietsafstand. De woning is dichtbij de snelweg en het openbaar vervoer stopt op de hoek. Kortom, de ideale ligging.

INDELING
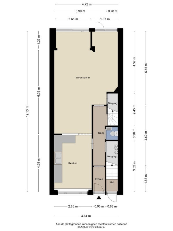
De begane grond wordt betreden via de voortuin van 70 m2.
Op de begane grond bevinden zich de entree, een gangpad, de ruime keuken (12 m2), de woonkamer (28 m2) en het 1e toilet. De woonkamer biedt toegang tot de achtertuin van 53 m2.

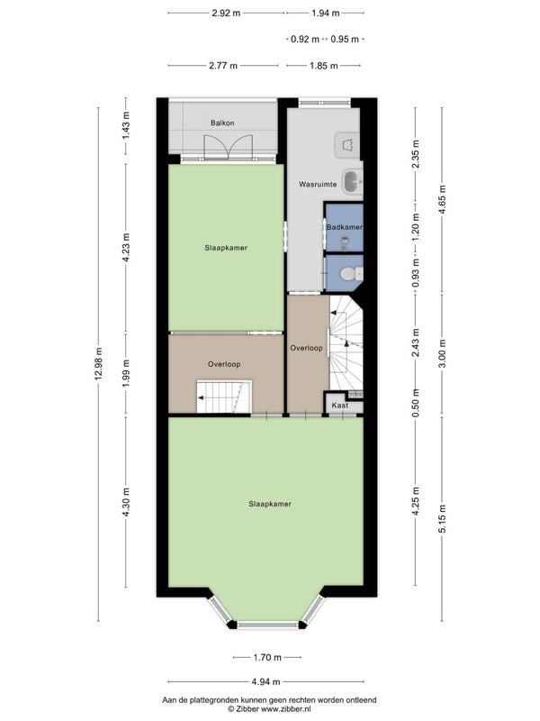
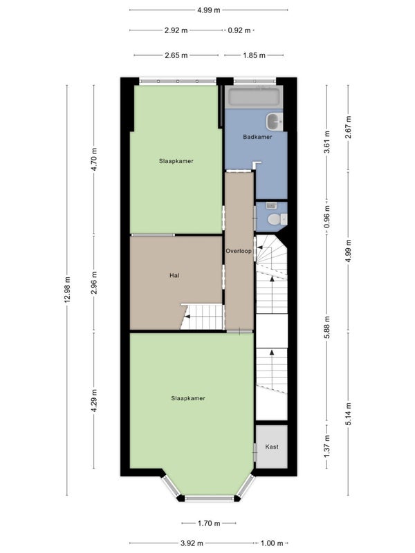
Op de 1e verdieping bevinden zich een overloop, 2 ruime slaapkamers (19 m2 en 14 m2), een hal / opslagruimte van 9 m2, een badkamer en het 2e toilet.

Op de 2e verdieping bevinden zich een overloop, 2 ruime slaapkamers (24 m2 en 13 m2), een achterbalkon (4 m2), een hal / opslagruimte van 6 m2, een wasruimte, een 2e badkamer en het 3e toilet. De 2e verdieping kan bereikt worden via een eigen voordeur/trappengang vanuit de voortuin of via een interne vaste trap vanuit de 1e verdieping.

Op de zolderverdieping bevinden zich een overloop, een woongedeelte met keuken (21 m2), een ruime slaapkamer (15 m2) en de 3e badkamer met daarin het 4e toilet.

BIJZONDERHEDEN

  • Woonoppervlakte circa 224 m2, meetrapport aanwezig
  • 2 huisnummers met eigen voordeuren (135A+135B), 4 woonlagen
  • Wonen aan de prachtige Noordsingel, beschermd stadsgezicht
  • Eigen grond, ruime en zonnige voortuin
  • Vlakbij Rotterdam Centraal, het centrum en vele voorzieningen
  • Vooroorlogse woning met hoge plafonds en authentieke elementen
  • Ruime slaapkamers met veel lichtinval
  • Direct beschikbaar en direct te betrekken
  • Uitgebreid funderingsrapport aanwezig

Alle verstrekte informatie moet beschouwd worden als een uitnodiging voor een bezichtiging. Er kunnen geen rechten of verplichtingen worden ontleend aan de informatie.

Gevonden op ******

Overdracht

Vraagprijs
€ 840.000 k.k.
Aangeboden sinds
30-11-2025
Status
Beschikbaar
Beschikbaar
In overleg

Oppervlakte en inhoud

Woonoppervlakte
224 m²
Perceeloppervlakte
187 m²
Inhoud
793 m³

Bouw

Type woning
Huis
Soort woning
Tussenwoning (rijtjeshuis), Herenhuis
Soort bouw
Bestaande bouw
Bouwjaar
1888

Indeling

Aantal kamers
7

Buitenruimte

Tuin
Aanwezig
Dakterras
Niet aanwezig

Energie

Energielabel
D

Garage

Aanwezig
Nee
Meld een probleem met deze woning